Реєстрація /

Оренда Офіс вул. Липківського Василя митрополита (Урицького) 45 в Києві / W-7398891

Комерційна нерухомість
Ціна:
58 000 грн.
/місяць
$
1 380 $ (1$ = 41.95 грн.)
1 180 € (1€ = 49.2 грн.)
К-сть кімнат:
8
Профіль:
Площа:
145.96 м²
Площа ділянки:
14000 сот.
Поверх/К-сть поверхів:
8/9
Ціна за м²:
397 грн.
Ремонт (стан):
з косметичним ремонтом
Парковка:
так
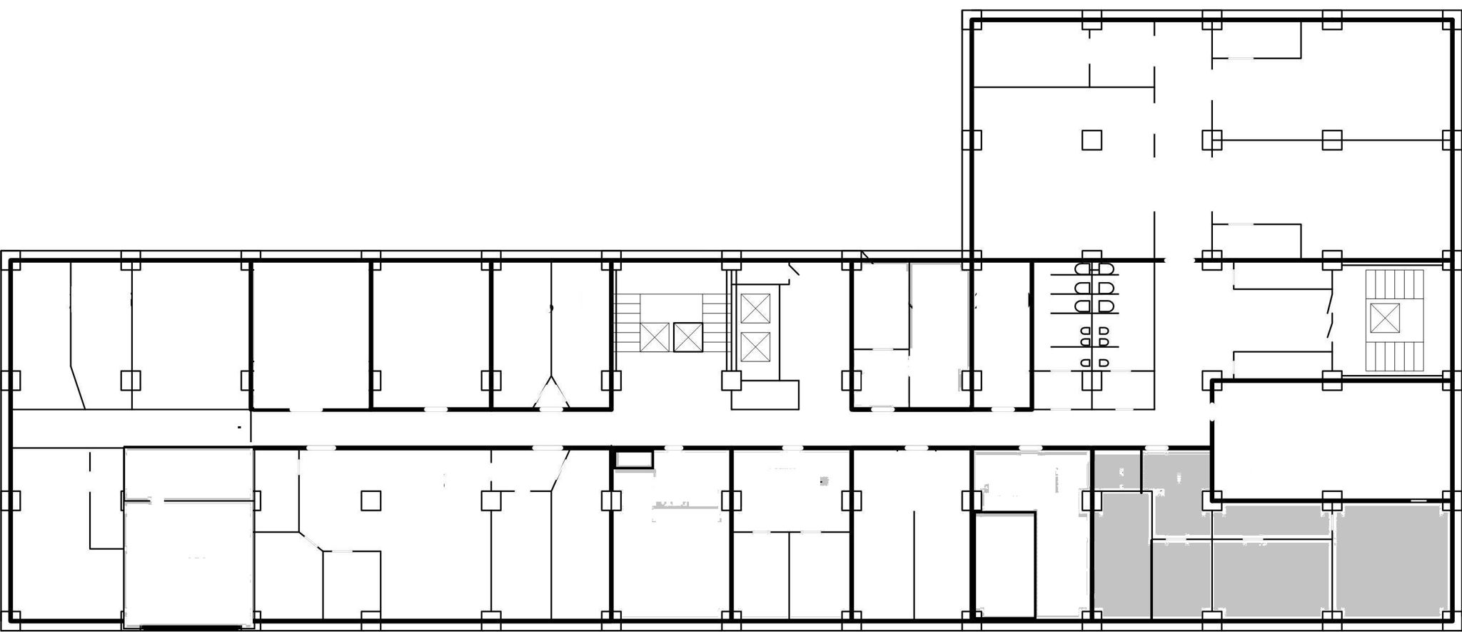
Пропонуємо оренду офісу в бізнес-центрі на Солом’янській площі. Пряма оренда від власника, без сплати комісії. Характеристики: - Загальна площа: 145,96 м2 - Поверх: 4 з 9 - Планування – кабінетне - Ресепшн - Серверна - Ліфти: 3 пасажирські, 2 вантажні Оснащення: - Безперебійна електрична система - Опалення та кондиціонування - Водопостачання та водовідведення Локація: - Зручний доступ на громадському транспорті - Паркінг на 100 паркомісць Інфраструктура: - Банк, нотаріус, супермаркет NOVUS, кав’ярня, ресторан GAGA, фітнес-зал, - Поруч парк ім. Зерова Безпека: - Ресепшн сервіс - Карткова система пропусків - Охорона 24/7 - Пожежеоповіщення - Укриття на цокольному поверсі з двома входами - Система оповіщення під час повітряної тривоги Умови оренди: - Ставка: 400 грн/м2 - Комунальні послуги додатково Записуйтесь на перегляд за телефоном (або в месенджерах): Менеджер Олена Співпрацюємо з посередниками.
Завантажити .pdf

Посередник

Олена

Оновлено: 1 Жовтня 2025
Код об'єкта: W-7398891
CAPTCHA Фото Капча
Введіть символи, зображені на малюнку.

Поскаржитися на оголошення

W-7398891 |

Вкажіть причину скарги

Максимальна кількість символів 500
CAPTCHA Фото Капча
Введіть символи, зображені на малюнку.

Схожі оголошення