Реєстрація /

Продаж квартири вул. Шолуденка 24 в новобудові Вишгород / W-7261566

1-кімнатна квартира
Ціна:
1 677 000* грн.
$
38 600 $ (1$ = 43.45 грн.)
32 600 € (1€ = 51.5 грн.)
К-сть кімнат:
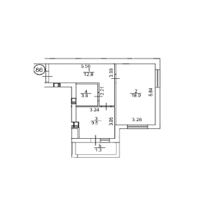
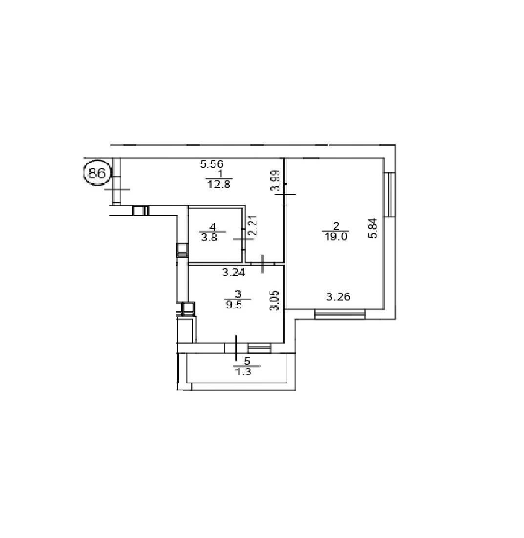
Площа (загальна/житлова/кухні):
46.4/19/9.5
Поверх/К-сть поверхів:
9/11
Матеріал стін:
Цегла
Матеріал підлоги:
Стяжка
Матеріал перекриття:
Залізобетон
Кількість, тип санвузлів:
1, Сумісний
Парковка:
так
балкон
Продаж 1-кімнатної квартири фактичною площею 46,2м2 ЖК “Французький бульвар”, вул.Шолуденка,24, корп.5 9/11 поверх Продаж квартири здійснюється по переуступці! ЕКСПЛІКАЦІЯ КВАРТИРИ: ️Загальна площа – 46,4м2 ️Житлова кімната – 19м2 ️Кухня – 9.5м2 ️Санвузол – 3.8м2 ️Коридор – 12.8м2 ️Балкон Характеристика квартири: ️Стіни червона цегла ️Перегородки – газоблок ️Опалення індивідуальне 2-х контурний газовий котел ️Вікна з двокамерним склопакетом ️2 ліфти (грузовий та пасажирський ) На території комплексу благоустрій, дитячі майданчики,наземна парковка На території комплексу продуктові магазини, кав’ярні, кондитерська студія. Біля комплексу зупинки громадського транспорту Дізнайтесь більш детальну інформацію та завітайте до нашого відділу продажу для огляду квартири.
Завантажити .pdf

Посередник

ТОВ Prof-Group

Оновлено: 21 Лютого 2026
Код об'єкта: W-7261566
CAPTCHA Фото Капча
Введіть символи, зображені на малюнку.

Поскаржитися на оголошення

W-7261566 |

Вкажіть причину скарги

Максимальна кількість символів 500
CAPTCHA Фото Капча
Введіть символи, зображені на малюнку.

Схожі оголошення

  • Продаж квартири вул. Шолуденка 24 в новобудові Вишгород / W-7376755 (вул. Шолуденка, 24) 1 608 000* грн.

    Продаж квартири вул. Шолуденка 24 в новобудові Вишгород / W-7376755

  • Продаж квартири вул. Шолуденка 24 в новобудові Вишгород / W-7435326 (вул. Шолуденка, 24) 1 521 000* грн.

    Продаж квартири вул. Шолуденка 24 в новобудові Вишгород / W-7435326