Реєстрація /

Продаж квартири вул. Річкова (Річна) 4 в новобудові в Києві / W-7448569

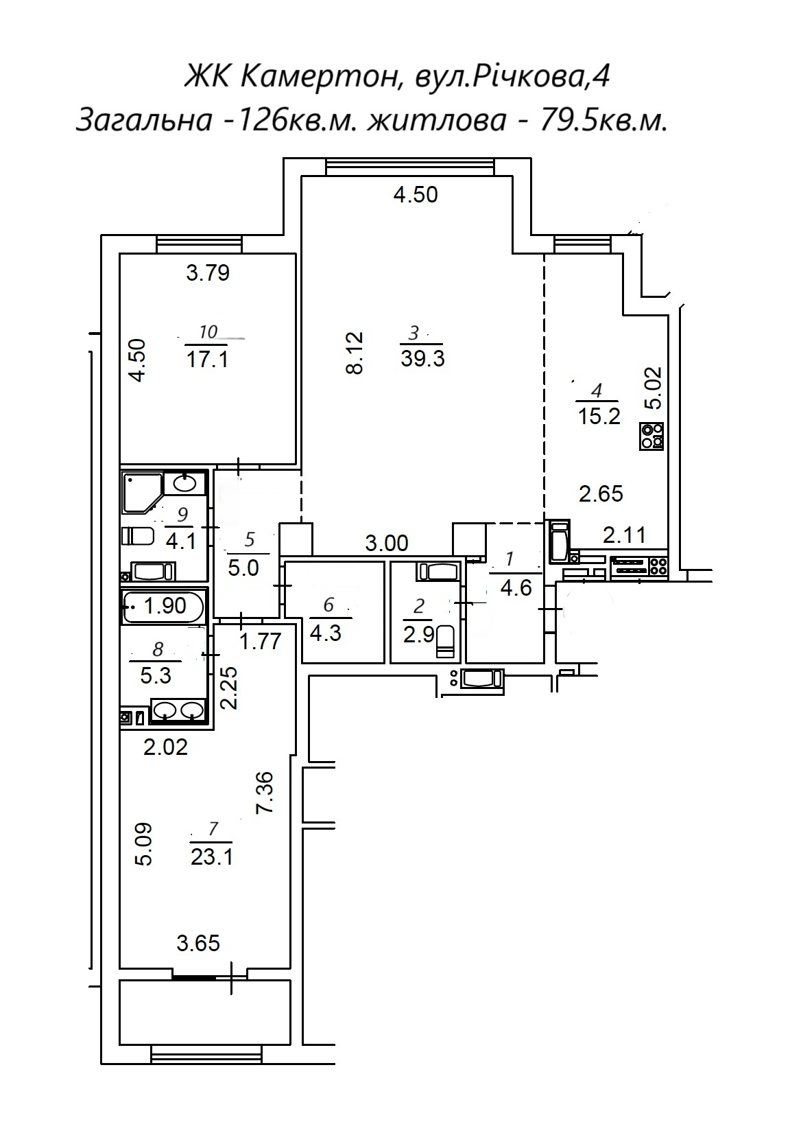
3-кімнатна квартира
Ціна:
10 750 000* грн.
$
243 000 $ (1$ = 44.25 грн.)
207 000 € (1€ = 51.9 грн.)
Житловий комплекс:
К-сть кімнат/Розташування:
Площа (загальна/житлова/кухні):
126.6/85/15.3
Поверх/К-сть поверхів:
17/26
Тип (серія) будинку:
Спецпроект 2021-2025 рр
Матеріал стін:
Моноліт
Матеріал підлоги:
Стяжка
Матеріал перекриття:
Залізобетон
Кількість, тип санвузлів:
2, Розд.
Парковка:
так
АКТУАЛЬНО! ВИДОВА двостороння 3к квартира. Будинок бізнес рівня, розташований у Шевченківському районі, на перетині двох вулиць - Дмитрівська та Річкова, в тихому центрі міста. ЗАГАЛЬНА - 126.6кв.м. Н -3м Кухня - 15.3кв.м. Житлова - 85.1кв.м ТРИ кімнати - 39.6кв.м., 16.9кв.м., 28.6кв.м. Три санвузли - 2.9кв.м. + 5.3кв.м. +4.0кв.м. Пральня- 4.3кв.м. Монол.-каркасний будинок, утеплений фасад Затишний хол першого поверху з каміном, Будинок має внутрішній сквер. Цілодобова охорона, система відеонагляду. З поверху на ліфті можна потрапити в 2-поверховий паркінг, - станція зарядки для автомобілів, велопарковка Сучасні безшумні три ліфти *Kone* Розвинена інфраструктура. Поруч розташовані супермаркет, кафе, банки, д/садок, гімназія. Найближчі ст.метро - Лук'янівська, Вокзальна, Політехнічний інститут . Будинок введено в експлуатацію, частково заселений, можливість відразу зайти на ремонт квартири... Перегляд по домовленості, телефонуйте у будь який час. Вартість - 2.000y.о/кв.м. ТОРГ
Завантажити .pdf

Посередник

Tatyana

Оновлено: 28 Квітня 2026
Код об'єкта: W-7448569
CAPTCHA Фото Капча
Введіть символи, зображені на малюнку.

Поскаржитися на оголошення

W-7448569 |

Вкажіть причину скарги

Максимальна кількість символів 500
CAPTCHA Фото Капча
Введіть символи, зображені на малюнку.

Схожі оголошення

  • Продаж квартири вул. Салютна 2 в Києві / W-7447689 (вул. Салютна, 2) 11 730 000* грн.

    Продаж квартири вул. Салютна 2 в Києві / W-7447689

  • Продаж квартири вул. Володимирська 5 в Києві / W-7285417 (вул. Володимирська, 5) 11 510 000* грн.

    Продаж квартири вул. Володимирська 5 в Києві / W-7285417

  • Продаж квартири вул. Ґарета Джонса (Хохлових Сім'ї) 12 в Києві / I-38189 (вул. Ґарета Джонса (Хохлових Сім'ї), 12) 11 510 000* грн.

    Продаж квартири вул. Ґарета Джонса (Хохлових Сім'ї) 12 в Києві / I-38189

  • Продаж квартири вул. В.Житомирська 27 в Києві / K-33674 (вул. В.Житомирська, 27) 11 730 000* грн.

    Продаж квартири вул. В.Житомирська 27 в Києві / K-33674

  • Продаж квартири вул. Чорновола Вячеслава 2 в Києві / R-72717 (вул. Чорновола Вячеслава, 2) 11 060 000* грн.

    Продаж квартири вул. Чорновола Вячеслава 2 в Києві / R-72717

  • Продаж квартири вул. Золотоустівська 25 в Києві / W-7436288 (вул. Золотоустівська, 25) 10 090 000* грн.

    Продаж квартири вул. Золотоустівська 25 в Києві / W-7436288

  • Продаж квартири Берестейський просп. (Перемоги просп.) 42а в Києві / A-115005 (Берестейський просп. (Перемоги просп.), 42а) 9 757 000* грн.

    Продаж квартири Берестейський просп. (Перемоги просп.) 42а в Києві / A-115005

  • Продаж квартири Шевченка Т.бул. 33б в Києві / G-753004 (Шевченка Т.бул., 33б) 10 660 000* грн.

    Продаж квартири Шевченка Т.бул. 33б в Києві / G-753004

  • Продаж квартири вул. Золотоустівська 10/12 в Києві / W-7436279 (вул. Золотоустівська, 10/12) 10 180 000* грн.

    Продаж квартири вул. Золотоустівська 10/12 в Києві / W-7436279

  • Продаж квартири вул. Дегтярівська 17 корпус 1 в Києві / D-40958 (вул. Дегтярівська, 17 корпус 1) 10 400 000* грн.

    Продаж квартири вул. Дегтярівська 17 корпус 1 в Києві / D-40958

  • Продаж квартири вул. Франка Івана 24а в Києві / W-7393674 (вул. Франка Івана, 24а) 10 620 000* грн.

    Продаж квартири вул. Франка Івана 24а в Києві / W-7393674