Реєстрація /

Продаж квартири Лобачевського пров. 7 в Києві / W-7447138

1-кімнатна квартира
Ціна:
2 171 000* грн.
$
49 000 $ (1$ = 44.3 грн.)
41 500 € (1€ = 52.25 грн.)
К-сть кімнат:
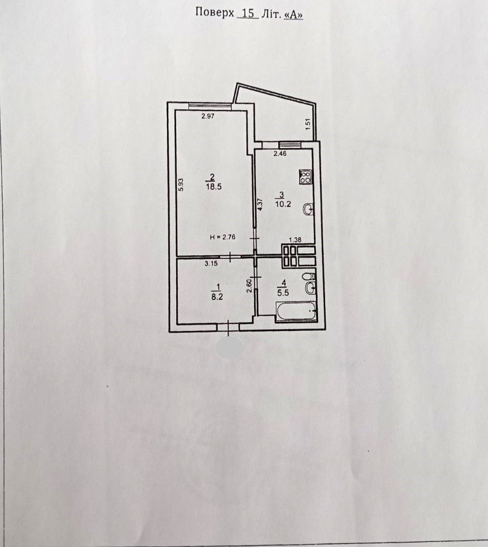
Площа (загальна/житлова/кухні):
44.9/18.5/10.2
Поверх/К-сть поверхів:
15/25
Кількість, тип санвузлів:
1, Сумісний
Ремонт (стан):
з євроремонтом
меблі
балкон
Продається стильна та затишна 1-кімнатна квартира в сучасному житловому комплексі «Флагман» за адресою провулок Лобачевського, 7, поруч із Дарницькою площею. Квартира розташована на 15 поверсі 27-поверхового будинку 2015 року побудови, що зведений за надійною монолітно-каркасною технологією та утеплений, що забезпечує комфорт у будь-яку пору року. Загальна площа квартири становить 44,9 м², продумане планування включає простору житлову кімнату площею 18,57 м², світлу кухню 10,2 м² з вбудованими меблями та технікою, організована обідня зона, є вихід на великий засклений балкон. Коридор площею 8,2 м². Висота стелі 2,76 м. У квартирі виконано якісний сучасний ремонт, вона повністю мебльована та оснащена необхідною технікою, повністю готова до проживання. Окрема кімната світла і простора, обладнана кондиціонером. Санвузол суміжний площею 5,5 м², встановлено бойлер і пральну машину. Будинок розташований у районі з розвиненою інфраструктурою. Окремо сплачується кормісія АН.
Завантажити .pdf

Посередник

Сергій

Оновлено: 20 Квітня 2026
Код об'єкта: W-7447138
CAPTCHA Фото Капча
Введіть символи, зображені на малюнку.

Поскаржитися на оголошення

W-7447138 |

Вкажіть причину скарги

Максимальна кількість символів 500
CAPTCHA Фото Капча
Введіть символи, зображені на малюнку.

Схожі оголошення

  • Продаж квартири вул. Сірожупанників (Сєрова Валентина) 36 в Києві / W-7446775 (вул. Сірожупанників (Сєрова Валентина), 36) 2 233 000* грн.

    Продаж квартири вул. Сірожупанників (Сєрова Валентина) 36 в Києві / W-7446775

  • Продаж квартири вул. Тампере 1/22 в Києві / W-7446809 (вул. Тампере, 1/22) 2 304 000* грн.

    Продаж квартири вул. Тампере 1/22 в Києві / W-7446809

  • Продаж квартири вул. Березняківська 14а в Києві / W-7423969 (вул. Березняківська, 14а) 2 348 000* грн.

    Продаж квартири вул. Березняківська 14а в Києві / W-7423969

  • Продаж квартири вул. Березняківська 14а в Києві / D-40487 (вул. Березняківська, 14а) 2 348 000* грн.

    Продаж квартири вул. Березняківська 14а в Києві / D-40487

  • Продаж квартири вул. Малишка А. 3 в Києві / W-7444106 (вул. Малишка А., 3) 2 215 000* грн.

    Продаж квартири вул. Малишка А. 3 в Києві / W-7444106

  • Продаж квартири вул. Шумського Юрія 6 в Києві / A-115938 (вул. Шумського Юрія, 6) 2 025 000* грн.

    Продаж квартири вул. Шумського Юрія 6 в Києві / A-115938