Реєстрація /

Оренда Офіс вул. Шолуденка 3 в Києві / W-7446837

Комерційна нерухомість
Ціна:
900 000* грн.
/місяць
$
20 400 $ (1$ = 44.1 грн.)
17 300 € (1€ = 52.05 грн.)
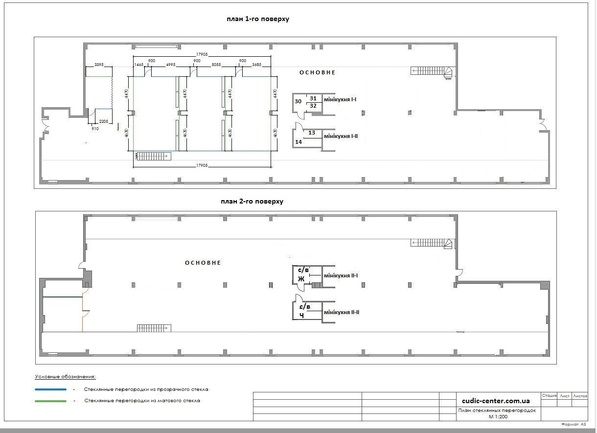
БЦ "Кубик" має сучасні інженерні системи, 4 ліфта, припливно-витяжна вентиляція, оптоволоконні лінії зв'язку, швидкісний інтернет (5 провайдерів на вибір). Опалення та ГВП автономне. Електроенергія без перебою, генератор. Укриття в підземному паркінгу. Забезпечимо цілодобовою фізичною охороною: працює пропускна система, відеоспостереження, пожежна сигналізація. Дворівневе офісне приміщення в Бізнес-Центрі "Cubic-Center" по вул. Шолуденка 3, в стилі Loft — сучасний інтер’єр з естетикою відкритих просторів Планування: Площа: 1-й поверх + 2-й рівень = 1712,00 кв.м. (відповідно 1000,00 м кв + 712,00 м кв). Є можливість розділити/здавати це приміщення, як 2 окремих, а саме: Офіс 1= 937,4 м2, офіс 2= 739,2 м2 (За потреби планування і фото надішлю додатково) Оренда: еквівалент 12 $/м2 (курс НБУ) + ПДВ, ОРЕХ включено , додатково тільки електроенергія. Коефіцієнт загальних приміщень не застосовується!
Завантажити .pdf

Посередник

Юрій

Оновлено: 11 Травня 2026
Код об'єкта: W-7446837
CAPTCHA Фото Капча
Введіть символи, зображені на малюнку.

Поскаржитися на оголошення

W-7446837 |

Вкажіть причину скарги

Максимальна кількість символів 500
CAPTCHA Фото Капча
Введіть символи, зображені на малюнку.

Схожі оголошення