Реєстрація /

Оренда Офіс вул. Сім'ї Прахових (Гайдара) 58 в Києві / W-7446632

Комерційна нерухомість
Ціна:
379 000 грн.
/місяць
$
8 650 $ (1$ = 43.85 грн.)
7 320 € (1€ = 51.85 грн.)
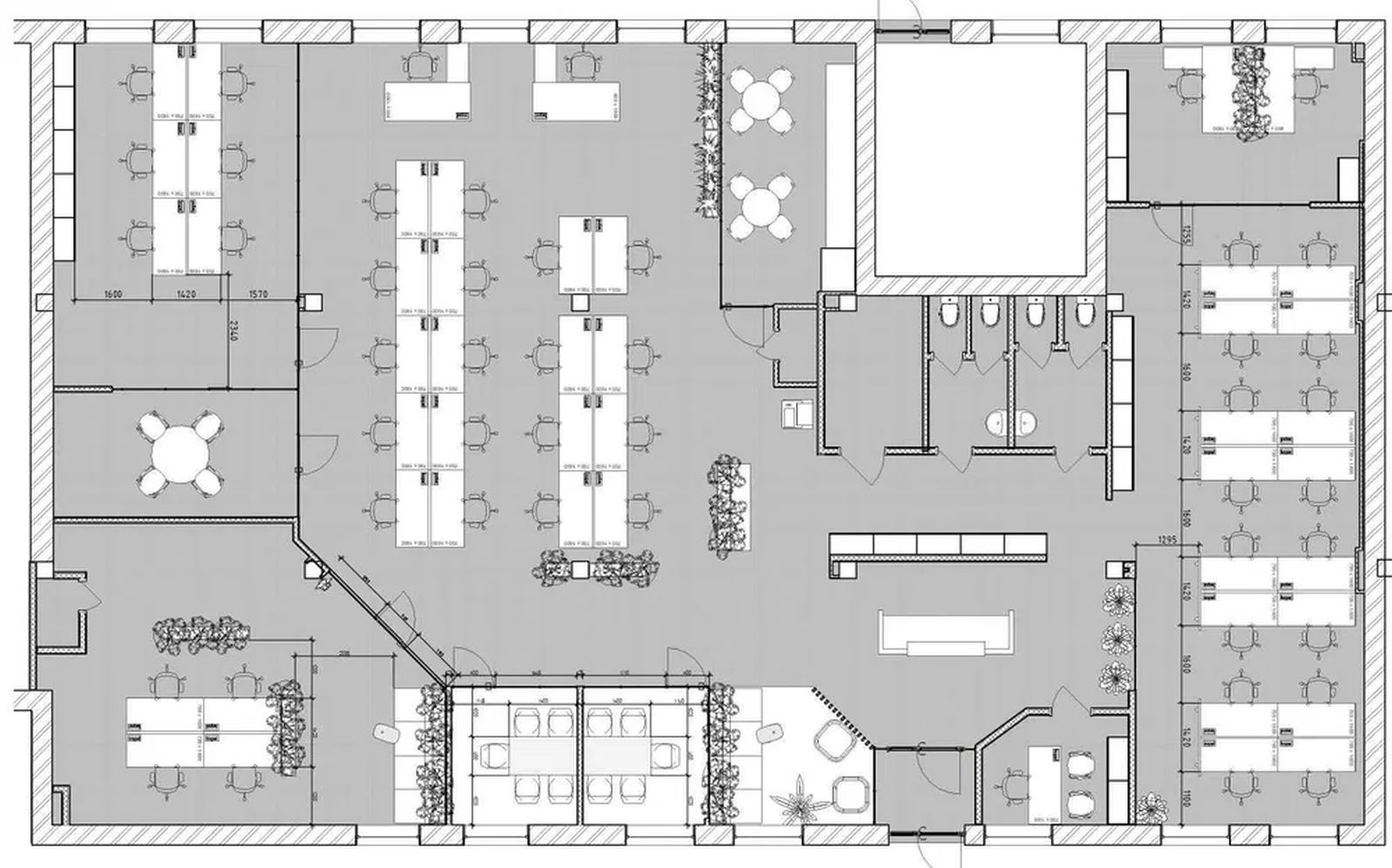
Бізнес парк “Європасаж”, вул. Сім’ї Прахових, 58/10 (1 поверх). Зручне розташування — лише 10 хвилин пішки до двох станцій метро: Олімпійська та Вокзальна. Офіс 372,93 кв.м. + 14% коефіцієнт. Планування: - простора зона open space; - окремі кабінети та переговорні кімнати; - скайпрум, серверна, кухня, WC. Переваги локації: На території бізнес парку — трирівневий критий паркінг на 450 місць, 4 точки харчування, внутрішній двір із зоною відпочинку, 2 тераси, салон краси, арт-студія, конференц-зал, а також паркування з електрозарядками для самокатів та велосипедів. Інженерія будівлі: забезпечено тривала безперебійна робота будівлі у разі відсутності міського електропостачання, автономне опалення, система кондиціювання чилер-фанкойл, вентиляція з передпідготовкою повітря — усе для стабільної роботи команди. 379 313 грн
Завантажити .pdf

Посередник

Юрій

Оновлено: 16 Квітня 2026
Код об'єкта: W-7446632
CAPTCHA Фото Капча
Введіть символи, зображені на малюнку.

Поскаржитися на оголошення

W-7446632 |

Вкажіть причину скарги

Максимальна кількість символів 500
CAPTCHA Фото Капча
Введіть символи, зображені на малюнку.

Схожі оголошення