Реєстрація /

Оренда Офіс вул. Польова 21 в Києві / W-7445331

Комерційна нерухомість
Ціна:
243 000* грн.
/місяць
$
5 460 $ (1$ = 44.45 грн.)
4 690 € (1€ = 51.8 грн.)
Профіль:
Площа:
390 м²
Ціна за м²:
622 грн.
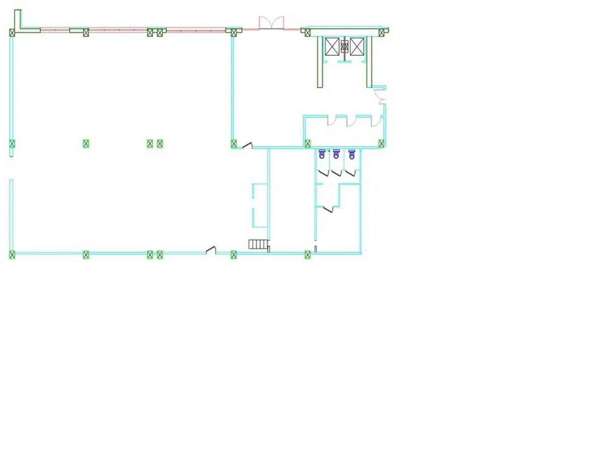
м. Київ, вул. Польова 21. біля метро Політехнічний інститут/Шулявська. - Площа: 390 кв.м - Поверх: 1 поверх /3- поверхового - Функціональне планування: open space, Готовий санвузол, кімнати під кухню з мокрою точкою, кабінет. Висота стелі 4,3 м. Інтерєр в стилі LOFT, наливна підлога. - Меблі: Є можливість здавати приміщення, як з меблями так і без них. Меблі нові, (оренда меблів за домовленістю, в залежності від комплектації). - Сучасні інженерні системи, автономне опалення / кондиціонування (чиллер-фанкойл) оптоволоконні лінії зв’язку, швидкісний інтернет, пожежна сигналізація. - Вартість оренди: 14 $/кв.м з ОРЕХ та ПДВ, додатково тільки фактично спожита електроенергія. Коефіцієнт загальних приміщень не застосовується! Інфраструктура: Територія з зеленими оазисами, зонами відпочинку на траві, вело- і мото-паркуваннями, зарядна станція для електромобілів, спортивним майданчиком, кафе, барбекю, лобі-зоною і конференц-сервісом. Власна сервісна компанія, цілодобова служба охорони. 5460дол
Завантажити .pdf

Посередник

Юрій

Оновлено: 21 Травня 2026
Код об'єкта: W-7445331
CAPTCHA Фото Капча
Введіть символи, зображені на малюнку.

Поскаржитися на оголошення

W-7445331 |

Вкажіть причину скарги

Максимальна кількість символів 500
CAPTCHA Фото Капча
Введіть символи, зображені на малюнку.

Схожі оголошення