Реєстрація /

Оренда Офіс Оболонський просп. 26 в Києві / W-7443697

Комерційна нерухомість
Ціна:
155 000* грн.
/місяць
$
3 500 $ (1$ = 44.4 грн.)
2 970 € (1€ = 52.35 грн.)
Житловий комплекс:
Профіль:
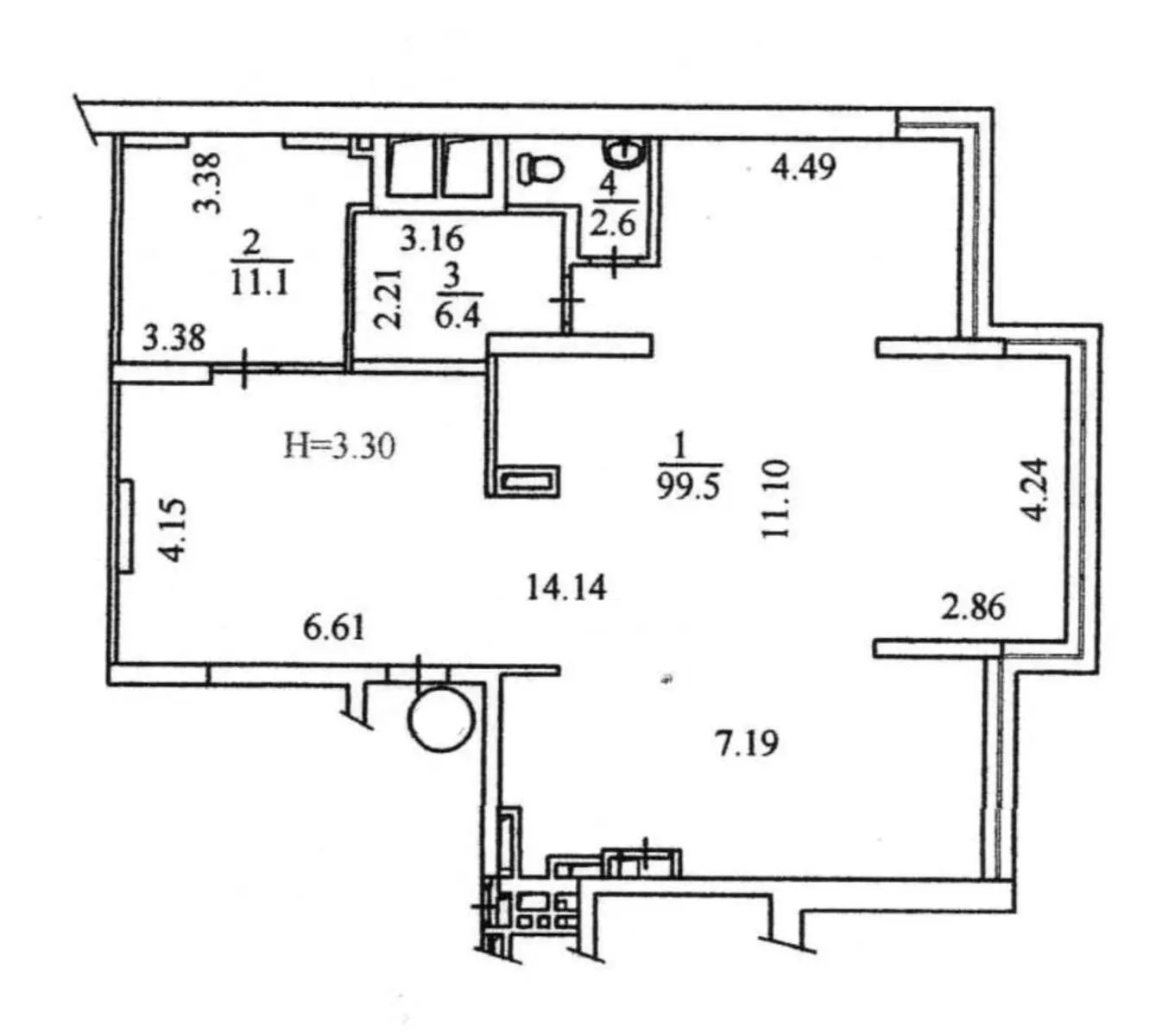
Площа:
120 м²
Поверх/К-сть поверхів:
2/27
Ціна за м²:
1 290 грн.
Ремонт (стан):
з ремонтом
Оренда преміального офісного приміщення від власника (без комісії). м. Київ, просп. Оболонський, 26 (ЖК Obolon Residences) Загальна площа – 119,6 м² (корисна – 99,5 м²) Окремий ВХІД З ЦЕНТРАЛЬНОГО ФАСАДУ безпосередньо зі сторони Оболонського проспекту. Без комісії для орендаря. Пропонується в оренду сучасне, стильне та повністю мебльоване офісне приміщення у престижному житлово-діловому комплексі Obolon Residences бізнес-класу. Локація ідеально підходить для компаній, які цінують статус, комфорт і представницький рівень офісного приміщення. Планування: - простора вхідна група із зоною очікування; - переговорна кімната; - опенспейс із 4 зонованими робочими місцями; - окрема кухня; - санвузол. Ідеальний варіант для юридичних, консалтингових та ІТ-компаній, а також нотаріальних офісів. Для орендарів безперешкодний доступ до всієї інфраструктури комплексу, а саме: - лаунж-зона на даху з джакузі та панорамним видом на місто; - сучасний спортзал; - конференц-зал; - дитяча кімната та пральня.
Завантажити .pdf

Власник

Оновлено: 31 Березня 2026
Код об'єкта: W-7443697
CAPTCHA Фото Капча
Введіть символи, зображені на малюнку.

Поскаржитися на оголошення

W-7443697 |

Вкажіть причину скарги

Максимальна кількість символів 500
CAPTCHA Фото Капча
Введіть символи, зображені на малюнку.

Схожі оголошення