Реєстрація /

Продаж квартири Берестейський просп. (Перемоги просп.) в новобудові в Києві / W-7442862

3-кімнатна квартира
Ціна:
11 040 000* грн.
$
250 000 $ (1$ = 44.15 грн.)
215 000 € (1€ = 51.25 грн.)
К-сть кімнат/Розташування:
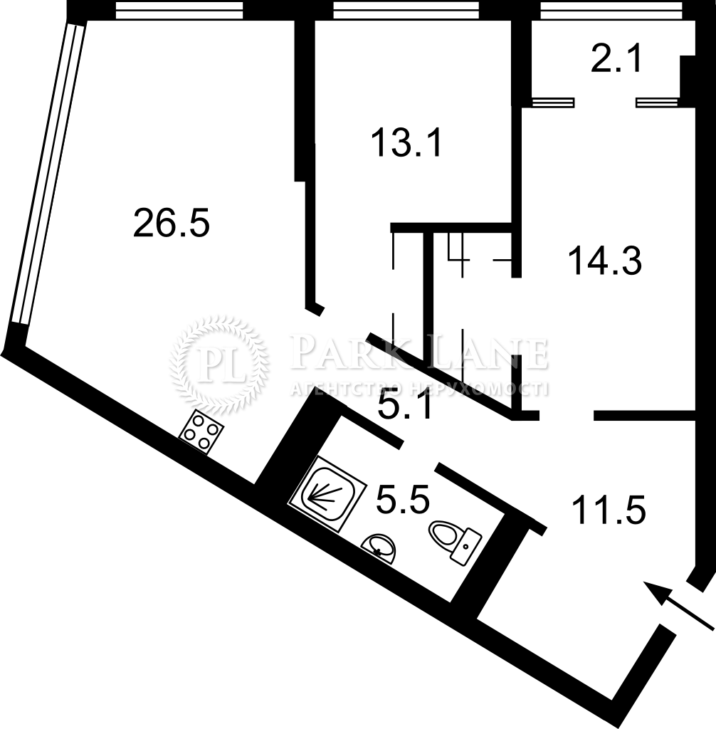
Площа (загальна/житлова/кухні):
82/32/27
Поверх/К-сть поверхів:
21/25
Тип (серія) будинку:
Спецпроект 2021-2025 рр
Матеріал стін:
Цегла
Матеріал підлоги:
Комбінов.
Матеріал перекриття:
Залізобетон
Кількість, тип санвузлів:
2, Сумісний
Ремонт (стан):
з євроремонтом
меблі
балкон
• Київ, Берестейський просп. (Перемоги просп.), 11корп.3, Manhattan city; Спецпроект 2021-2025 рр;3 будинок,біля дороги,ліфт, магазин,нове, під'їзди охайні, парковка/плат., парковка/безкошт., поруч Спеціалізована школа 41 Гімназія 153 ім. О.С. Пушкіна, клініка Охматдит та Synevo, Національний цирк України, Універмаг Україна, зоопарк, парк КПІ, гімназіі , поліклініки, торгівельно-разважальні комплекси. • 3с-р, 21-й поверх, площа: 81,7\31,3\26,5, с/в-2роздільний, балкон засклений, телефон, паркетна дошка, з євроремонтом; Пропонується світла, сучасна квартира з новим дизайнерським ремонтом. Квартиру робили для себе, якісно і з душею. Меблі та техніка відомих світових виробників. Додатково: є паркомісце (за окрему плату) відразу біля ліфта та комора (встановлене сучасне обладнання для безперебійного живлення квартири: Літій-іонні акумуляторні батареї на 15 кВт та трифазний інвертор на 8 кВт/год, що дозволяє користуватися всіма електроприладами у випадку відсутності електроенергії).
Завантажити .pdf

Посередник

Марина

Оновлено: 25 Березня 2026
Код об'єкта: W-7442862
CAPTCHA Фото Капча
Введіть символи, зображені на малюнку.

Поскаржитися на оголошення

W-7442862 |

Вкажіть причину скарги

Максимальна кількість символів 500
CAPTCHA Фото Капча
Введіть символи, зображені на малюнку.

Схожі оголошення

  • Продаж квартири Лобановського просп. (Червонозоряний пр) 128 в Києві / W-7441888 (Лобановського просп. (Червонозоряний пр), 128) 10 380 000* грн.

    Продаж квартири Лобановського просп. (Червонозоряний пр) 128 в Києві / W-7441888

  • Продаж квартири вул. Звіринецька 70а в Києві / F-48551 (вул. Звіринецька, 70а) 10 760 000* грн.

    Продаж квартири вул. Звіринецька 70а в Києві / F-48551

  • Продаж квартири вул. Річкова (Річна) 4 в Києві / W-7441876 (вул. Річкова (Річна), 4) 10 930 000* грн.

    Продаж квартири вул. Річкова (Річна) 4 в Києві / W-7441876

  • Продаж квартири вул. Аболмасова Андрія (Панельна) 6 в Києві / R-50391 (вул. Аболмасова Андрія (Панельна), 6) 10 550 000* грн.

    Продаж квартири вул. Аболмасова Андрія (Панельна) 6 в Києві / R-50391

  • Продаж квартири вул. Антоновича Володимира (Горького) 122 в Києві / G-785405 (вул. Антоновича Володимира (Горького), 122) 11 040 000* грн.

    Продаж квартири вул. Антоновича Володимира (Горького) 122 в Києві / G-785405

  • Продаж квартири вул. Старонаводницька 8а в Києві / R-55183 (вул. Старонаводницька, 8а) 11 040 000* грн.

    Продаж квартири вул. Старонаводницька 8а в Києві / R-55183

  • Продаж квартири вул. Велика Васильківська (Червоноармійська) 9/2 в Києві / W-7402047 (вул. Велика Васильківська (Червоноармійська), 9/2) 11 040 000* грн.

    Продаж квартири вул. Велика Васильківська (Червоноармійська) 9/2 в Києві / W-7402047

  • Продаж квартири вул. Бульварно-Кудрявська (Воровського) 17 в Києві / F-48442 (вул. Бульварно-Кудрявська (Воровського), 17) 11 920 000* грн.

    Продаж квартири вул. Бульварно-Кудрявська (Воровського) 17 в Києві / F-48442

  • Продаж квартири вул. Саксаганського 37к в Києві / Q-12669 (вул. Саксаганського, 37к) 11 920 000* грн.

    Продаж квартири вул. Саксаганського 37к в Києві / Q-12669

  • Продаж квартири вул. Гетьмана Скоропадського Павла (Толстого Льва) 23/1 в Києві / W-6893437 (вул. Гетьмана Скоропадського Павла (Толстого Льва), 23/1) 11 480 000* грн.

    Продаж квартири вул. Гетьмана Скоропадського Павла (Толстого Льва) 23/1 в Києві / W-6893437

  • Продаж квартири вул. Бульварно-Кудрявська (Воровського) 17а в новобудові в Києві / L-25677 (вул. Бульварно-Кудрявська (Воровського), 17а) 11 400 000* грн.

    Продаж квартири вул. Бульварно-Кудрявська (Воровського) 17а в новобудові в Києві / L-25677

  • Продаж квартири вул. Чорновола Вячеслава 27 в Києві / W-7442492 (вул. Чорновола Вячеслава, 27) 11 700 000* грн.

    Продаж квартири вул. Чорновола Вячеслава 27 в Києві / W-7442492