Реєстрація /

Продаж квартири вул. Лисенка 1 в Києві / W-7441547

3-кімнатна квартира
Ціна:
14 620 000* грн.
$
330 000 $ (1$ = 44.3 грн.)
281 000 € (1€ = 52.05 грн.)
К-сть кімнат/Розташування:
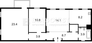
Площа (загальна/житлова/кухні):
75/33/8
Поверх/К-сть поверхів:
3/4
Тип (серія) будинку:
доревол.
Матеріал стін:
Цегла
Матеріал підлоги:
Паркетна дошка
Матеріал перекриття:
Залізобетон
Кількість, тип санвузлів:
1, Сумісний
Парковка:
так
Ремонт (стан):
з євроремонтом
меблі
балкон
Лисенка, 1, ; Дореволюційний будинок в самому центрі столиці поруч з визначною памяткою архітектури Київської Русі 11століття • 3-х кімнатна квартира, 3-й поверх, площа: 75,7\15,0\8,2; Сучасна квартира з ремонтом в стилі Лофт розташована в історичному центрі Києва навроти Золотих Воріт та скверу. Простра кухня-вітальня та спальня кімната з відкритим балконом, та кабінет. Ліквидна локація для орендного бізнеса. Повна комплектація меблями та побутовою технікою. Буднинок без ліфту.
Завантажити .pdf

Посередник

Олена

Оновлено: 28 Квітня 2026
Код об'єкта: W-7441547
CAPTCHA Фото Капча
Введіть символи, зображені на малюнку.

Поскаржитися на оголошення

W-7441547 |

Вкажіть причину скарги

Максимальна кількість символів 500
CAPTCHA Фото Капча
Введіть символи, зображені на малюнку.

Схожі оголошення

  • Продаж квартири вул. Бульварно-Кудрявська (Воровського) 17 в Києві / I-38690 (вул. Бульварно-Кудрявська (Воровського), 17) 13 510 000* грн.

    Продаж квартири вул. Бульварно-Кудрявська (Воровського) 17 в Києві / I-38690

  • Продаж квартири вул. Назарівська (Вєтрова) в Києві / W-7432864 (вул. Назарівська (Вєтрова)) 13 290 000* грн.

    Продаж квартири вул. Назарівська (Вєтрова) в Києві / W-7432864

  • Продаж квартири вул. Іллєнка Юрія (Мельникова) 18б в Києві / Q-7927 (вул. Іллєнка Юрія (Мельникова), 18б) 15 020 000* грн.

    Продаж квартири вул. Іллєнка Юрія (Мельникова) 18б в Києві / Q-7927

  • Продаж квартири вул. Велика Васильківська (Червоноармійська) 14 в Києві / W-7433340 (вул. Велика Васильківська (Червоноармійська), 14) 13 730 000* грн.

    Продаж квартири вул. Велика Васильківська (Червоноармійська) 14 в Києві / W-7433340

  • Продаж квартири вул. Кониського Олександра (Тургенєвська) 52/58 в Києві / R-47050 (вул. Кониського Олександра (Тургенєвська), 52/58) 14 400 000* грн.

    Продаж квартири вул. Кониського Олександра (Тургенєвська) 52/58 в Києві / R-47050

  • Продаж квартири вул. Бульварно-Кудрявська (Воровського) 21 в Києві / W-7297091 (вул. Бульварно-Кудрявська (Воровського), 21) 15 510 000* грн.

    Продаж квартири вул. Бульварно-Кудрявська (Воровського) 21 в Києві / W-7297091

  • Продаж квартири вул. Велика Васильківська (Червоноармійська) 14 в Києві / Q-30263 (вул. Велика Васильківська (Червоноармійська), 14) 13 730 000* грн.

    Продаж квартири вул. Велика Васильківська (Червоноармійська) 14 в Києві / Q-30263

  • Продаж квартири Берестейський просп. (Перемоги просп.) 42а в Києві / R-49333 (Берестейський просп. (Перемоги просп.), 42а) 13 330 000* грн.

    Продаж квартири Берестейський просп. (Перемоги просп.) 42а в Києві / R-49333

  • Продаж квартири вул. Михайлівська 18а в Києві / R-66179 (вул. Михайлівська, 18а) 13 290 000* грн.

    Продаж квартири вул. Михайлівська 18а в Києві / R-66179

  • Продаж квартири вул. Дмитрівська 82 в Києві / G-602598 (вул. Дмитрівська, 82) 13 730 000* грн.

    Продаж квартири вул. Дмитрівська 82 в Києві / G-602598

  • Продаж квартири вул. Ярославів Вал в Києві / W-7432462 (вул. Ярославів Вал) 13 250 000* грн.

    Продаж квартири вул. Ярославів Вал в Києві / W-7432462

  • Продаж квартири вул. Хмельницького Богдана 58а в Києві / Q-22291 (вул. Хмельницького Богдана, 58а) 13 290 000* грн.

    Продаж квартири вул. Хмельницького Богдана 58а в Києві / Q-22291