Реєстрація /

Продаж Спорткомплекс вул. Мишуги О. 10 в Києві / W-7440840

Комерційна нерухомість
Ціна:
8 879 000* грн.
$
200 000 $ (1$ = 44.35 грн.)
174 000 € (1€ = 51.1 грн.)
Профіль:
Площа:
182 м²
Ціна за м²:
48 800 грн.
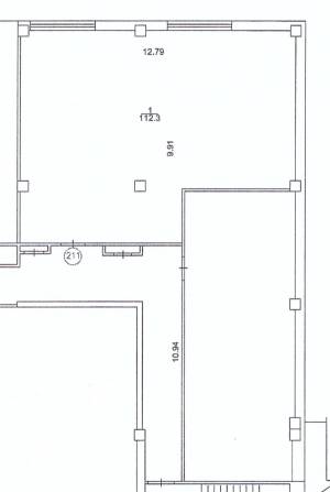
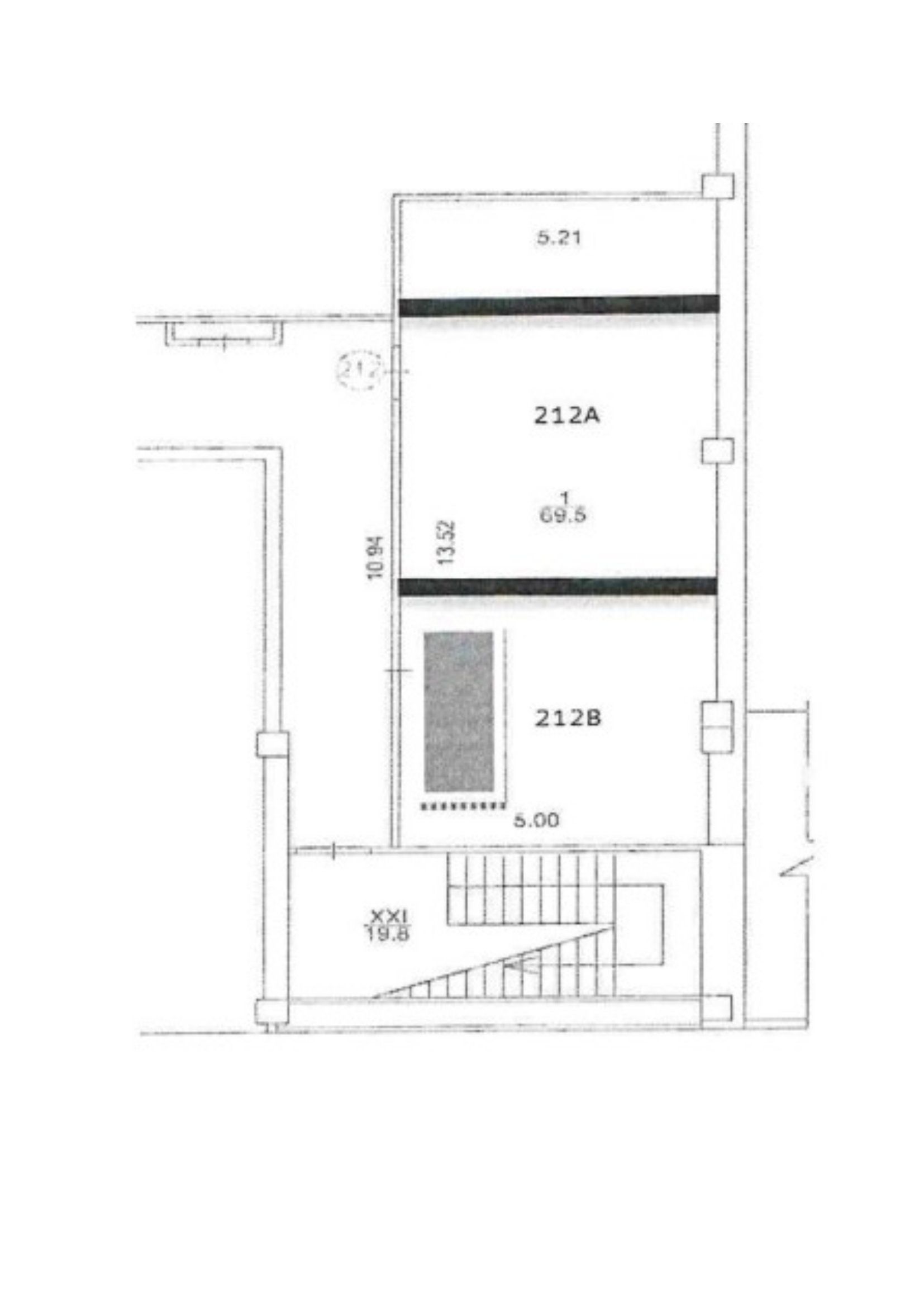
ПРОДАМ своє нежитлове приміщення загал. площею = 182 м2. Приміщення розташоване на 2-му поверсі Бізнес центра Паралель. Вхід загальний чарез охоронця – спостерегача. БЦ має свій потужний генератор ! Завжди є світло, тепло, вода гаряча та холодна ! БЦ розташований на території заселеного ЖК, з високою щільністю населення. Ст.м .Позняки – 70 м. Приміщення належить до комерційної нерухомості. На даний час приміщення винаймають орендарі. Спорткомплекс. Приміщення розділено на декілька кімнат: велика спортивна зала, масажний кабінет, душові, туалет, роздягальні. Кондиціювання, Відеоспостереження, інтернет. Світле та просторе приміщення, з дорогим, якісним ремонтом. Висота стелі 2.8 м. БЦ – збудован у 2016р. Санвузли на поверсі М / Ж. Вартість – 1100 $ / m2. Загальна вартість = 200.200 $. Запрошую до співпраці сертифікованих ріелторів, комісійна виногорода – 3 % Власник юридична особа. Контактний тел.: 096-050-66-50
Завантажити .pdf

Посередник

Власник

Оновлено: 14 Березня 2026
Код об'єкта: W-7440840
CAPTCHA Фото Капча
Введіть символи, зображені на малюнку.

Поскаржитися на оголошення

W-7440840 |

Вкажіть причину скарги

Максимальна кількість символів 500
CAPTCHA Фото Капча
Введіть символи, зображені на малюнку.

Схожі оголошення

  • Продаж Торгові площі Харківське шосе 56 в Києві / W-7440369 (Торгові площі, Харківське шосе) 8 870 000* грн.

    Продаж Торгові площі Харківське шосе 56 в Києві / W-7440369

  • Продаж Магазин вул. Мишуги О. 10 в Києві / W-7440827 (Магазин, вул. Мишуги О.) 9 580 000* грн.

    Продаж Магазин вул. Мишуги О. 10 в Києві / W-7440827

  • Продаж Нежитлове приміщення Бажана Миколи просп. в Києві / J-35706 (Нежитлове приміщення, Бажана Миколи просп.) 9 047 000* грн.

    Продаж Нежитлове приміщення Бажана Миколи просп. в Києві / J-35706

  • Продаж Нежитлове приміщення вул. Осокорська в Києві / R-60668 (Нежитлове приміщення, вул. Осокорська) 8 427 000* грн.

    Продаж Нежитлове приміщення вул. Осокорська в Києві / R-60668

  • Продаж Нежитлове приміщення вул. Ахматової Анни в Києві / G-1955344 (Нежитлове приміщення, вул. Ахматової Анни) 8 072 000* грн.

    Продаж Нежитлове приміщення вул. Ахматової Анни в Києві / G-1955344

  • Продаж Офіс вул. Чавдар Єлизавети в Києві / G-229841 (Офіс, вул. Чавдар Єлизавети) 9 314 000* грн.

    Продаж Офіс вул. Чавдар Єлизавети в Києві / G-229841