Реєстрація /

Продаж Магазин вул. Мишуги О. в Києві / W-7440818

Комерційна нерухомість
Ціна:
10 760 000* грн.
$
243 000 $ (1$ = 44.35 грн.)
211 000 € (1€ = 51.1 грн.)
Профіль:
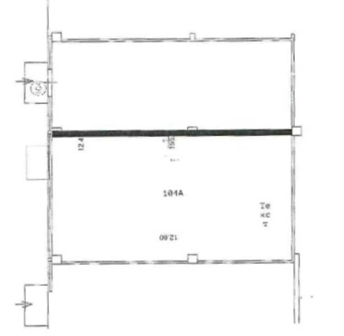
Площа:
156.5 м²
Ціна за м²:
68 700 грн.
Пропозиція від Власника: ПРОДАМ своє нежитлове приміщення загал. площею = 156,5 м2. Приміщення розташоване на 1-му поверсі, 4-х поверхового Бізнес центра. Завжди є світло, тепло, вода гаряча та холодна. БЦ має свій потужний генератор! БЦ розташований на території нового ЖК. Ст.м .Позняки – 70 м. Поруч ТРЦ Аладін та Піраміда. Приміщення належить до комерційної нерухомості. Краще за все використовувати як торгову площу, салон краси. На даний час приміщення винаймають орендарі: магазин. Приміщення 156,5 м2 розділено капітальною стіною вдовж: 67 m2 // 90 m2, кожне має окремий вхід, вітринні вікна, окремі санвузли. Кондиціювання, Відеоспостереження, Охорона, інтернет оптволокно. Світле та просторе приміщення, з дорогим, якісним ремонтом. Висота стелі ~ 2.8 m. БЦ – збудован та здан в експлуатацію у 2016р. Вартість – 1550 $ / m?. Загальна вартість = 242.575 $ Запрошую до співпраці сертифікованих ріелторів, комісійна виногорода – 3 % Власник: 096-050-66-50
Завантажити .pdf

Власник

Власник

Оновлено: 14 Березня 2026
Код об'єкта: W-7440818
CAPTCHA Фото Капча
Введіть символи, зображені на малюнку.

Поскаржитися на оголошення

W-7440818 |

Вкажіть причину скарги

Максимальна кількість символів 500
CAPTCHA Фото Капча
Введіть символи, зображені на малюнку.

Схожі оголошення

  • Продаж Нежитлове приміщення Бажана Миколи просп. 177 в Києві / W-7439652 (Нежитлове приміщення, Бажана Миколи просп.) 11 090 000* грн.

    Продаж Нежитлове приміщення Бажана Миколи просп. 177 в Києві / W-7439652

  • Продаж Виробниче приміщення вул. Автопаркова в Києві / W-7440406 (Виробниче приміщення, вул. Автопаркова) 10 640 000* грн.

    Продаж Виробниче приміщення вул. Автопаркова в Києві / W-7440406

  • Продаж Нежитлове приміщення вул. Трускавецька в Києві / R-69585 (Нежитлове приміщення, вул. Трускавецька) 10 640 000* грн.

    Продаж Нежитлове приміщення вул. Трускавецька в Києві / R-69585

  • Продаж Нежитлове приміщення вул. Бабича Гліба (Канальна) в Києві / R-53122 (Нежитлове приміщення, вул. Бабича Гліба (Канальна)) 10 520 000* грн.

    Продаж Нежитлове приміщення вул. Бабича Гліба (Канальна) в Києві / R-53122