Реєстрація /

Оренда Офіс вул. Рейгана Рональда (Драйзера Теодора) 24 в Києві / W-7439597

Комерційна нерухомість
Ціна:
52 000 грн.
/місяць
$
1 190 $ (1$ = 43.95 грн.)
1 020 € (1€ = 51 грн.)
Профіль:
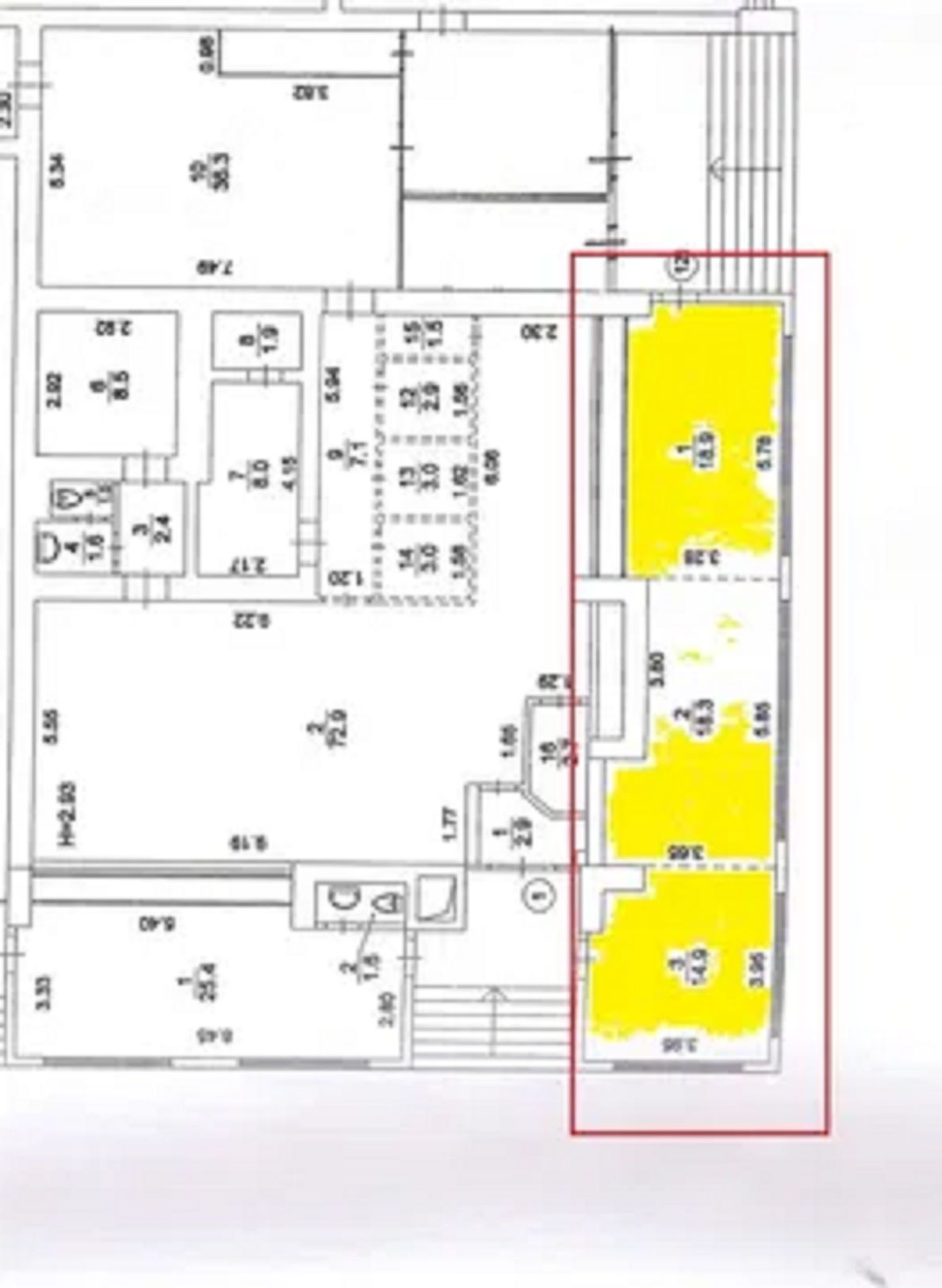
Площа:
52 м²
Ціна за м²:
1 000 грн.
Троєщіна,вул Рональда Рейгана(Драйзера)24, приміщення,1 поверх,не житловий фонд,2 окремих входа,52м добрий стан,кондіционер,безперибійники на світла,вільне планування та с\в,52000грн + комунальні.(Комісія 50%)
Завантажити .pdf

Посередник

Олександр

Оновлено: 9 Березня 2026
Код об'єкта: W-7439597
CAPTCHA Фото Капча
Введіть символи, зображені на малюнку.

Поскаржитися на оголошення

W-7439597 |

Вкажіть причину скарги

Максимальна кількість символів 500
CAPTCHA Фото Капча
Введіть символи, зображені на малюнку.

Схожі оголошення

  • Оренда Нежитлове приміщення вул. Бальзака Оноре де в Києві / P-34043 (Нежитлове приміщення, вул. Бальзака Оноре де) 52 700* грн./місяць

    Оренда Нежитлове приміщення вул. Бальзака Оноре де в Києві / P-34043

  • Оренда Нежитлове приміщення вул. Бальзака Оноре де 66 в Києві / W-7431651 (Нежитлове приміщення, вул. Бальзака Оноре де) 52 700* грн./місяць

    Оренда Нежитлове приміщення вул. Бальзака Оноре де 66 в Києві / W-7431651