Реєстрація /

Оренда Офіс Дарницький бул. 5 в Києві / W-7438926

Комерційна нерухомість
Ціна:
25 000 грн.
/місяць
$
567 $ (1$ = 44.15 грн.)
487 € (1€ = 51.35 грн.)
Профіль:
Площа:
110 м²
Ціна за м²:
227 грн.
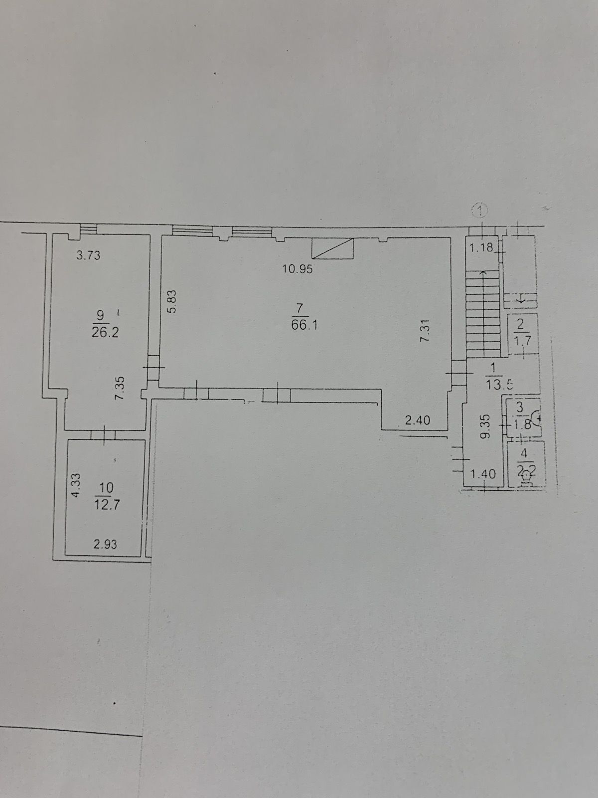
Дарниця метро,Дарницький бульв 5, приміщення цокольний поверх,не житловий фонд,окремий вхід,110м добрий стан,2 зала 66м та 2 кабінета (26м + 12,7м) ресепція, добрий стан,кондіционери,сігналізация,метро 5хв.25000грн + комунальні.(Комісія 50%)
Завантажити .pdf

Посередник

Олександр

Оновлено: 5 Березня 2026
Код об'єкта: W-7438926
CAPTCHA Фото Капча
Введіть символи, зображені на малюнку.

Поскаржитися на оголошення

W-7438926 |

Вкажіть причину скарги

Максимальна кількість символів 500
CAPTCHA Фото Капча
Введіть символи, зображені на малюнку.

Схожі оголошення

  • Оренда Офіс вул. Сверстюка Євгена (Раскової Марини) 11б в Києві / W-7437948 (Офіс, вул. Сверстюка Євгена (Раскової Марини)) 24 500 грн./місяць

    Оренда Офіс вул. Сверстюка Євгена (Раскової Марини) 11б в Києві / W-7437948

  • Оренда Офіс вул. Сверстюка Євгена (Раскової Марини) 11б в Києві / W-7412744 (Офіс, вул. Сверстюка Євгена (Раскової Марини)) 23 100 грн./місяць

    Оренда Офіс вул. Сверстюка Євгена (Раскової Марини) 11б в Києві / W-7412744

  • Оренда Офіс вул. Сверстюка Євгена (Раскової Марини) 11б в Києві / W-7437945 (Офіс, вул. Сверстюка Євгена (Раскової Марини)) 25 100 грн./місяць

    Оренда Офіс вул. Сверстюка Євгена (Раскової Марини) 11б в Києві / W-7437945

  • Оренда Офіс вул. Сверстюка Євгена (Раскової Марини) 11 в Києві / W-7437956 (Офіс, вул. Сверстюка Євгена (Раскової Марини)) 24 500 грн./місяць

    Оренда Офіс вул. Сверстюка Євгена (Раскової Марини) 11 в Києві / W-7437956

  • Оренда Нежитлове приміщення вул. Микільсько-Слобідська в Києві / P-33245 (Нежитлове приміщення, вул. Микільсько-Слобідська) 25 000 грн./місяць

    Оренда Нежитлове приміщення вул. Микільсько-Слобідська в Києві / P-33245

  • Оренда Офіс вул. Сверстюка Євгена (Раскової Марини) 11б в Києві / W-7435628 (Офіс, вул. Сверстюка Євгена (Раскової Марини)) 24 500 грн./місяць

    Оренда Офіс вул. Сверстюка Євгена (Раскової Марини) 11б в Києві / W-7435628

  • Оренда Офіс вул. Сверстюка Євгена (Раскової Марини) 11 в Києві / W-7435631 (Офіс, вул. Сверстюка Євгена (Раскової Марини)) 23 100 грн./місяць

    Оренда Офіс вул. Сверстюка Євгена (Раскової Марини) 11 в Києві / W-7435631