Реєстрація /

Оренда Офіс вул. Золотоустівська 50-52 в Києві / W-7438818

Комерційна нерухомість
Ціна:
15 000 грн.
/місяць
$
343 $ (1$ = 43.75 грн.)
294 € (1€ = 50.95 грн.)
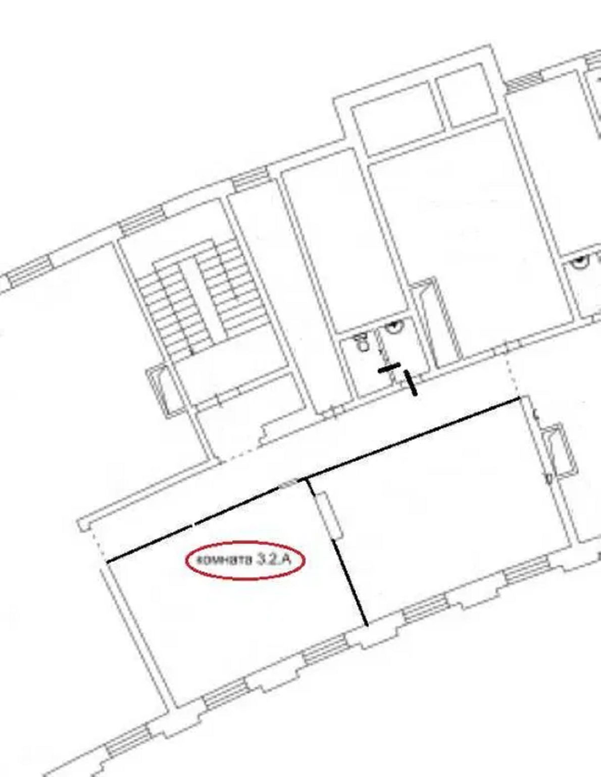
Золотоустівська вул 50-52, офіс 3 поверх,не житловий фонд, 1 кабінет 40м добрий стан,кондіционер,меблі,метро 10-15хв,15000грн + комунальні.(Комісія 50%)
Завантажити .pdf

Посередник

Олександр

Оновлено: 5 Березня 2026
Код об'єкта: W-7438818
CAPTCHA Фото Капча
Введіть символи, зображені на малюнку.

Поскаржитися на оголошення

W-7438818 |

Вкажіть причину скарги

Максимальна кількість символів 500
CAPTCHA Фото Капча
Введіть символи, зображені на малюнку.

Схожі оголошення