Реєстрація /

Оренда Нежитлове приміщення вул. Ґарета Джонса (Хохлових Сім'ї) 12а в Києві / W-7437619

Комерційна нерухомість
Ціна:
70 000 грн.
/місяць
$
1 590 $ (1$ = 44.1 грн.)
1 370 € (1€ = 50.95 грн.)
Житловий комплекс:
К-сть кімнат:
1
Площа:
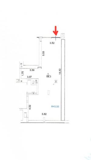
68.3 м²
Тип (серія) будинку:
Спецпроект 2021-2025 рр
Поверх/К-сть поверхів:
1/8
Ціна за м²:
1 020 грн.
Матеріал стін:
Цегла
Ремонт (стан):
з ремонтом
Парковка:
так
Без комісії Фото реальні Шевченківський р-н, Лук’янівка, територія UNIT.City (перший на Україні іноваційний технопарк), забезпечених та успішних громадян, ЖК UNIT.Home, вул.Джонса Гарета 12-А (Сім'ї Хохлових), 1/8пов, фасад, окремий вхід, нежитлове приміщення S = 68,3м2, Н=3,33м, ремонт лофт (фарбовані стіни, плитка, кахель), освітлення, розводка води, розетки, каналізація, сан.вузол, потужність 20кВт, вентиляція та кондиціонування, місце для реклами. Навпроти вхід в Бізнес центр, пожвавлений трафік респектабельних мешканців. Можливість завозу товарів, паркування для орендаря та клієнтів. Ідеально під студію, салон, барбер-шоп, майстерня, міні магазин, аптека, оптика,пункт видачі, хімчистка, інші види діяльності крім громадськ.харчування. В доступності UBI Конференц Холл, Новус, Сільпо, АТБ, Фора, НоваПошта, ж/м Сирець, парк Бабин Яр, метро Дорогожичі та вул. Олені Теліги 15хв, Лук’янівська 20хв пішки. Канікули на заселення Власник Юр.особа 69990грн(1700уе)/міс+комунальн.Без% Є відео
Завантажити .pdf

Посередник

Володимир Едуардович Левицький

Оновлено: 19 Березня 2026
Код об'єкта: W-7437619
CAPTCHA Фото Капча
Введіть символи, зображені на малюнку.

Поскаржитися на оголошення

W-7437619 |

Вкажіть причину скарги

Максимальна кількість символів 500
CAPTCHA Фото Капча
Введіть символи, зображені на малюнку.

Схожі оголошення