Реєстрація /

Продаж Окремо розташована будівля вул. Гришка в Києві / W-7436419

Комерційна нерухомість
Ціна:
328 190 000* грн.
$
7 400 000 $ (1$ = 44.35 грн.)
6 348 000 € (1€ = 51.7 грн.)
Площа:
4116 м²
Площа ділянки:
14 сот.
К-сть поверхів:
6
Ціна за м²:
79 700 грн.
Ремонт (стан):
з ремонтом
Парковка:
так
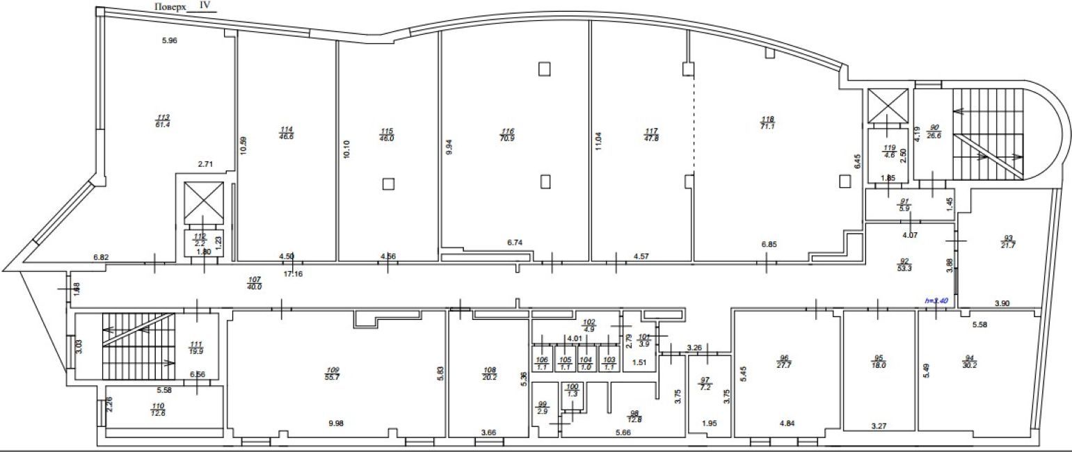
Продаж офісної будівлі (4116,1 кв.м.), без комісії Без комісії Дарницький район, вул. Гришка Бізнес-центр, Б класу Загальна площа 4116,1 кв.м., 6 поверхів Площа типового поверху – 710 кв.м. Земельна ділянка 14 соток у власності. 2 ліфта, централізовані системи вентиляції та кондиціонування, газова котельня. Всі приміщення з ремонтом. До станції метро Позняки 100 метрів, поруч ТЦ «Аладдін», Novus. Ціна 7,4 млн доларів США без урахування ПДВ.
Завантажити .pdf

Посередник

Лев

Оновлено: 18 Травня 2026
Код об'єкта: W-7436419
CAPTCHA Фото Капча
Введіть символи, зображені на малюнку.

Поскаржитися на оголошення

W-7436419 |

Вкажіть причину скарги

Максимальна кількість символів 500
CAPTCHA Фото Капча
Введіть символи, зображені на малюнку.