Реєстрація /

Продаж квартири Лабораторний пров. 24 в Києві / W-7435089

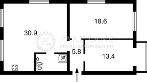
3-кімнатна квартира
Ціна:
6 480 000* грн.
$
150 000 $ (1$ = 43.2 грн.)
127 000 € (1€ = 51.15 грн.)
Квартира після капітального ремонту в 2022 році. Замінена електрика, сантехніка, радіатори. На підлозі паркетна дошка, кондиціонери в кожній кімнаті. Дві окремі кімнати та простора кухня вітальня, сумісний санвузол. вікна виходять у двір. Гарна локація, піша доступність метро печерськ, Олімпійська. поруч є все для комфортного проживання.
Завантажити .pdf

Посередник

Павел

Оновлено: 9 Лютого 2026
Код об'єкта: W-7435089
CAPTCHA Фото Капча
Введіть символи, зображені на малюнку.

Поскаржитися на оголошення

W-7435089 |

Вкажіть причину скарги

Максимальна кількість символів 500
CAPTCHA Фото Капча
Введіть символи, зображені на малюнку.

Схожі оголошення

  • Продаж квартири вул. Тютюнника Василя (Барбюса Анрі) 51/1а в Києві / W-7417723 (вул. Тютюнника Василя (Барбюса Анрі), 51/1а) 6 134 000* грн.

    Продаж квартири вул. Тютюнника Василя (Барбюса Анрі) 51/1а в Києві / W-7417723

  • Продаж квартири вул. Круглоуніверситетська 13 в Києві / W-7349487 (вул. Круглоуніверситетська, 13) 6 264 000* грн.

    Продаж квартири вул. Круглоуніверситетська 13 в Києві / W-7349487

  • Продаж квартири вул. Алмазова Генерала (Кутузова) 18/7 в Києві / G-1923596 (вул. Алмазова Генерала (Кутузова), 18/7) 6 696 000* грн.

    Продаж квартири вул. Алмазова Генерала (Кутузова) 18/7 в Києві / G-1923596

  • Продаж квартири Фортечний тупик (Тверський тупик) 7б в Києві / W-7400725 (Фортечний тупик (Тверський тупик), 7б) 6 739 000* грн.

    Продаж квартири Фортечний тупик (Тверський тупик) 7б в Києві / W-7400725

  • Продаж квартири вул. Бойчука Михайла (Кіквідзе) 41б в Києві / G-769729 (вул. Бойчука Михайла (Кіквідзе), 41б) 5 875 000* грн.

    Продаж квартири вул. Бойчука Михайла (Кіквідзе) 41б в Києві / G-769729

  • Продаж квартири вул. Маккейна Джона (Кудрі Івана) 7 в Києві / W-7434541 (вул. Маккейна Джона (Кудрі Івана), 7) 6 869 000* грн.

    Продаж квартири вул. Маккейна Джона (Кудрі Івана) 7 в Києві / W-7434541

  • Продаж квартири вул. Тютюнника Василя (Барбюса Анрі) 5б в Києві / W-7434742 (вул. Тютюнника Василя (Барбюса Анрі), 5б) 6 912 000* грн.

    Продаж квартири вул. Тютюнника Василя (Барбюса Анрі) 5б в Києві / W-7434742

  • Продаж квартири вул. Верхогляда Андрія (Драгомирова Михайла) 2 в Києві / G-1932986 (вул. Верхогляда Андрія (Драгомирова Михайла), 2) 6 523 000* грн.

    Продаж квартири вул. Верхогляда Андрія (Драгомирова Михайла) 2 в Києві / G-1932986

  • Продаж квартири вул. Бойчука Михайла (Кіквідзе) в Києві / W-7431976 (вул. Бойчука Михайла (Кіквідзе)) 5 962 000* грн.

    Продаж квартири вул. Бойчука Михайла (Кіквідзе) в Києві / W-7431976

  • Продаж квартири вул. Болбочана Петра (Каменєва Командарма) 4 в Києві / Q-8711 (вул. Болбочана Петра (Каменєва Командарма), 4) 6 048 000* грн.

    Продаж квартири вул. Болбочана Петра (Каменєва Командарма) 4 в Києві / Q-8711

  • Продаж квартири вул. Міхновського Миколи бульвар (Дружби Народів бульвар) 14/16 в Києві / I-38057 (вул. Міхновського Миколи бульвар (Дружби Народів бульвар), 14/16) 5 962 000* грн.

    Продаж квартири вул. Міхновського Миколи бульвар (Дружби Народів бульвар) 14/16 в Києві / I-38057

  • Продаж квартири вул. Дарвіна 10 в Києві / W-7417645 (вул. Дарвіна, 10) 6 912 000* грн.

    Продаж квартири вул. Дарвіна 10 в Києві / W-7417645