Реєстрація /

Оренда Офіс вул. Антоновича Володимира (Горького) 109 в Києві / W-7433522

Комерційна нерухомість
Ціна:
141 000* грн.
/місяць
$
3 200 $ (1$ = 44.07 грн.)
2 770 € (1€ = 50.9 грн.)
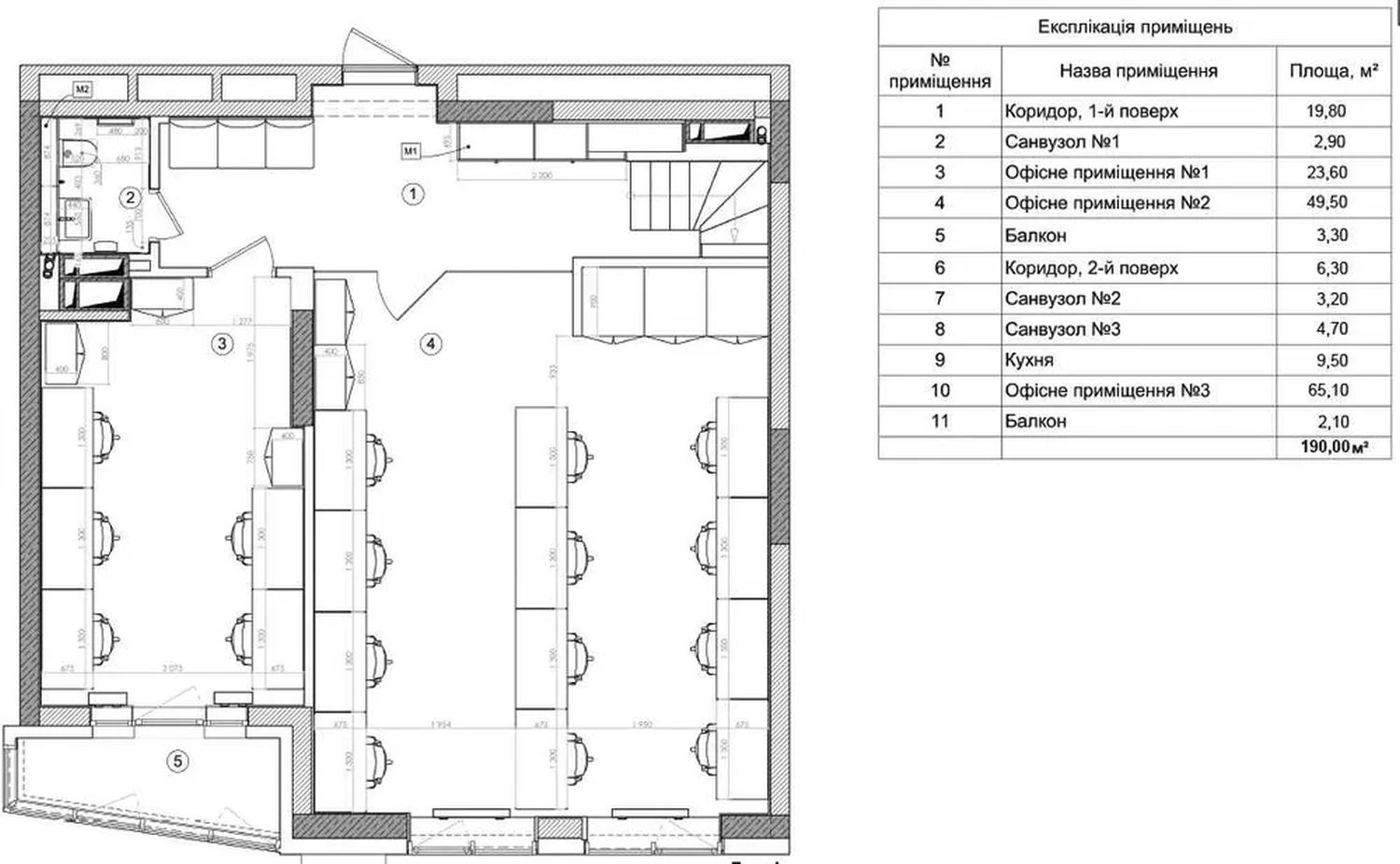
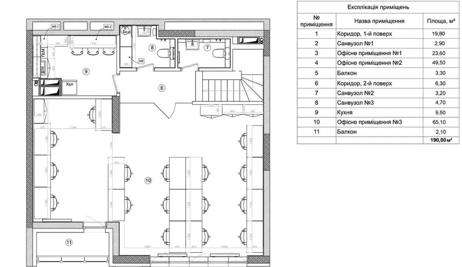
Двохрівневий офіс 190 м2. Два великі опенспейси (65,10 м 49,5 м 23,60 м кухня 9,5 м, три санвузли, два балкони). Офіс розташований на верхніх поверхах ЖК – 23-24 поверх. Адреса вул. Антоновича, 109. ЖК бізнес-класу «Володимирський». В офіс заведено оптоволоконний інтернет. Зроблено розведення під інтернет, відеоспостереження. Встановлено домофон. Поруч метро Палац України. Офіс представницького рівня у престижному комплексі "Володимирський", авторський дизайн, якісний ремонт, презентабельна вхідна група. Цілодобова охорона ЖК. На території ЖК є підземний паркінг. Вартість оренди парко місця - 5000грн/міс. Приміщення знаходиться у житловому фонді, що значно впливає на вартість комунальних послуг. Експлуатація та охорона 4200 грн е/е, вода та опалення за лічильниками. 3200дол 50%комісія
Завантажити .pdf

Посередник

Юрій

Оновлено: 27 Березня 2026
Код об'єкта: W-7433522
CAPTCHA Фото Капча
Введіть символи, зображені на малюнку.

Поскаржитися на оголошення

W-7433522 |

Вкажіть причину скарги

Максимальна кількість символів 500
CAPTCHA Фото Капча
Введіть символи, зображені на малюнку.

Схожі оголошення