Реєстрація /

Продаж квартири вул. Бойчука Михайла (Кіквідзе) 19а в Києві / W-7432677

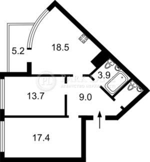
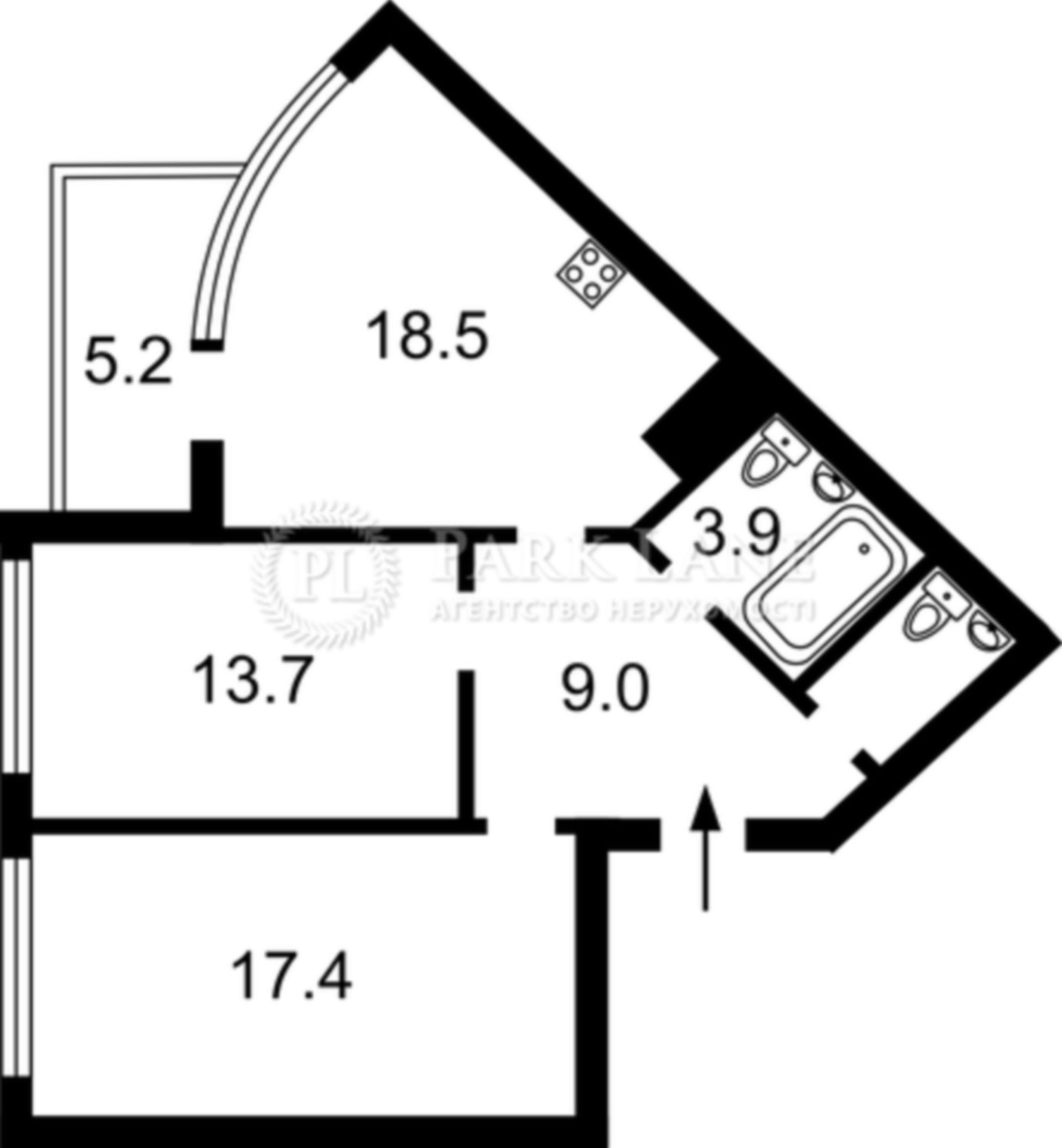
2-кімнатна квартира
Ціна:
10 730 000* грн.
$
245 000 $ (1$ = 43.8 грн.)
208 000 € (1€ = 51.6 грн.)
Житловий комплекс:
К-сть кімнат/Розташування:
Площа (загальна/житлова/кухні):
66/30/19
Поверх/К-сть поверхів:
7/10
Тип (серія) будинку:
Спецпроект 2021-2025 рр
Матеріал стін:
Цегла
Матеріал підлоги:
Комбінов.
Матеріал перекриття:
Залізобетон
Кількість, тип санвузлів:
1, Сумісний
Парковка:
так
Ремонт (стан):
з євроремонтом
меблі
балкон
Шановні покупці! Пропонуємо до уваги стильну 2-кімнатну квартиру площею 66 м² на 7-му поверсі елітного ЖК "52 Перлина (Pechersk Plaza)" за адресою вул. Бойчука Михайла (Кіквідзе), 19а, Київ. Це сучасна новобудова, зведена з повнотілої керамічної цегли, залізобетонними перекриттями та утепленням базальтовою ватою з силіконовою штукатуркою CERESIT (Австрія), що забезпечує відмінну тепло- та звукоізоляцію для комфортного проживання. Поруч — парки, школи, дитячі садки, магазини, кафе та медичні заклади, що ідеально для сімей з дітьми. Закрита територія з відеоспостереженням та професійною охороною гарантує безпеку та спокій. Квартира з високоякісним дизайнерським ремонтом: висота стелі 3,2 м створює відчуття простору, тепла підлога в санвузлі та кухні, іспанська плитка, кам'яна стільниця, паркетна дошка. Повністю укомплектована: посудомийна машина Bosch, 3 Smart TV, 2 кондиціонери в спальнях, розкладний диван, 3 шафи, ліжка з підйомним механізмом та велюровою оббивкою преміум-класу.
Завантажити .pdf

Посередник

Ірина

Оновлено: 14 Квітня 2026
Код об'єкта: W-7432677
CAPTCHA Фото Капча
Введіть символи, зображені на малюнку.

Поскаржитися на оголошення

W-7432677 |

Вкажіть причину скарги

Максимальна кількість символів 500
CAPTCHA Фото Капча
Введіть символи, зображені на малюнку.

Схожі оголошення

  • Продаж квартири вул. Бойчука Михайла (Кіквідзе) 41б в Києві / C-113085 (вул. Бойчука Михайла (Кіквідзе), 41б) 10 290 000* грн.

    Продаж квартири вул. Бойчука Михайла (Кіквідзе) 41б в Києві / C-113085

  • Продаж квартири вул. Бойчука Михайла (Кіквідзе) 41б в Києві / D-41149 (вул. Бойчука Михайла (Кіквідзе), 41б) 11 170 000* грн.

    Продаж квартири вул. Бойчука Михайла (Кіквідзе) 41б в Києві / D-41149

  • Продаж квартири вул. Предславинська 35 в Києві / L-31781 (вул. Предславинська, 35) 9 929 000* грн.

    Продаж квартири вул. Предславинська 35 в Києві / L-31781

  • Продаж квартири Фортечний тупик (Тверський тупик) 7б в Києві / R-41026 (Фортечний тупик (Тверський тупик), 7б) 11 390 000* грн.

    Продаж квартири Фортечний тупик (Тверський тупик) 7б в Києві / R-41026

  • Продаж квартири вул. Ковпака 17 в Києві / W-7407322 (вул. Ковпака, 17) 11 340 000* грн.

    Продаж квартири вул. Ковпака 17 в Києві / W-7407322

  • Продаж квартири вул. Інститутська 19в в Києві / W-7433657 (вул. Інститутська, 19в) 10 730 000* грн.

    Продаж квартири вул. Інститутська 19в в Києві / W-7433657

  • Продаж квартири вул. Бойчука Михайла (Кіквідзе) 19а в Києві / L-32196 (вул. Бойчука Михайла (Кіквідзе), 19а) 10 070 000* грн.

    Продаж квартири вул. Бойчука Михайла (Кіквідзе) 19а в Києві / L-32196

  • Продаж квартири вул. Предславинська 35 в Києві / L-31780 (вул. Предславинська, 35) 9 921 000* грн.

    Продаж квартири вул. Предславинська 35 в Києві / L-31780

  • Продаж квартири Лабораторний пров. в Києві / W-7433292 (Лабораторний пров.) 11 390 000* грн.

    Продаж квартири Лабораторний пров. в Києві / W-7433292

  • Продаж квартири вул. Звіринецька 70а в Києві / B-107982 (вул. Звіринецька, 70а) 9 855 000* грн.

    Продаж квартири вул. Звіринецька 70а в Києві / B-107982

  • Продаж квартири вул. Тютюнника Василя (Барбюса Анрі) 37/1 в новобудові в Києві / W-7443994 (вул. Тютюнника Василя (Барбюса Анрі), 37/1) 10 510 000* грн.

    Продаж квартири вул. Тютюнника Василя (Барбюса Анрі) 37/1 в новобудові в Києві / W-7443994

  • Продаж квартири вул. Іоанна Павла ІІ (Лумумби Патріса) 12 корпус 2 в Києві / D-41206 (вул. Іоанна Павла ІІ (Лумумби Патріса), 12 корпус 2) 10 730 000* грн.

    Продаж квартири вул. Іоанна Павла ІІ (Лумумби Патріса) 12 корпус 2 в Києві / D-41206