Реєстрація /

Продаж квартири вул. Кургузова 1а Вишгород / W-7432583

1-кімнатна квартира
Ціна:
2 680 000* грн.
$
62 000 $ (1$ = 43.22 грн.)
52 000 € (1€ = 51.5 грн.)
К-сть кімнат:
Площа (загальна):
48.8
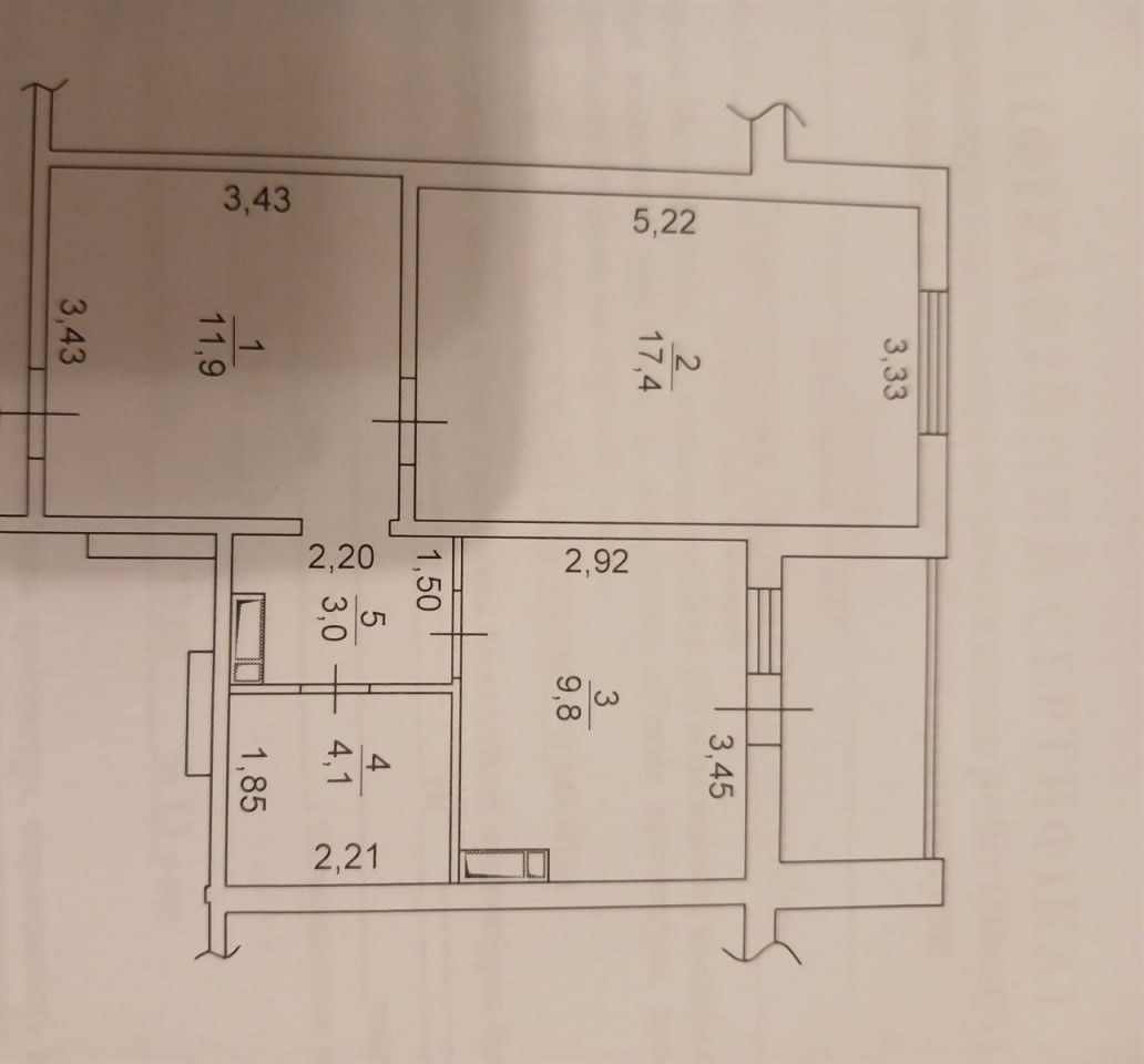
Пропонується до продажу затишна та світла однокімнатна квартира загальною площею 48,8 м², розташована на 5-му поверсі 20-поверхового будинку. Окрема кімната — 17,4 м², кухня - 9,8 м², балкон. Простора квартира з чудовим видом. Квартира у гарному житловому стані — заїжджай і живи! Вхідні двері нові (заміна після забудовника) з якісним замком. Духова шафа і витяжка нові (2025 року). Встановлена система очитки води. Всі меблі залишаються (крім кухонного столу) Засклений балкон, охайний санвузол. Усі необхідні комунікації підключені, квартира доглянута та тепла. У комплексі під час відключень безперебійно працюють ліфти, зберігається опалення та подача води, що забезпечує комфортне проживання за будь-яких умов. В будинку є консьєрж та відеоспостереженя. Поруч ліс, паркова зона, спортивні та дитячі майданчики, школа, магазини та кав'ярні, кінцева зупинка громадського транспорту. До станцій метро Почайна — 15-20 хвилин.
Завантажити .pdf

Посередник

Юлія

Оновлено: 22 Січня 2026
Код об'єкта: W-7432583
CAPTCHA Фото Капча
Введіть символи, зображені на малюнку.

Поскаржитися на оголошення

W-7432583 |

Вкажіть причину скарги

Максимальна кількість символів 500
CAPTCHA Фото Капча
Введіть символи, зображені на малюнку.

Схожі оголошення

  • Продаж квартири вул. Хмельницького Вишгород / W-7433912 (вул. Хмельницького) 2 550 000* грн.

    Продаж квартири вул. Хмельницького Вишгород / W-7433912

  • Продаж квартири вул. Шолуденка 24 в новобудові Вишгород / W-7435327 (вул. Шолуденка, 24) 2 615 000* грн.

    Продаж квартири вул. Шолуденка 24 в новобудові Вишгород / W-7435327

  • Продаж квартири Шевченка просп. 2б Вишгород / P-29986 (Шевченка просп., 2б) 2 831 000* грн.

    Продаж квартири Шевченка просп. 2б Вишгород / P-29986