Реєстрація /

Продаж квартири вул. Змієнка Всеволода 30 в Києві / W-7431965

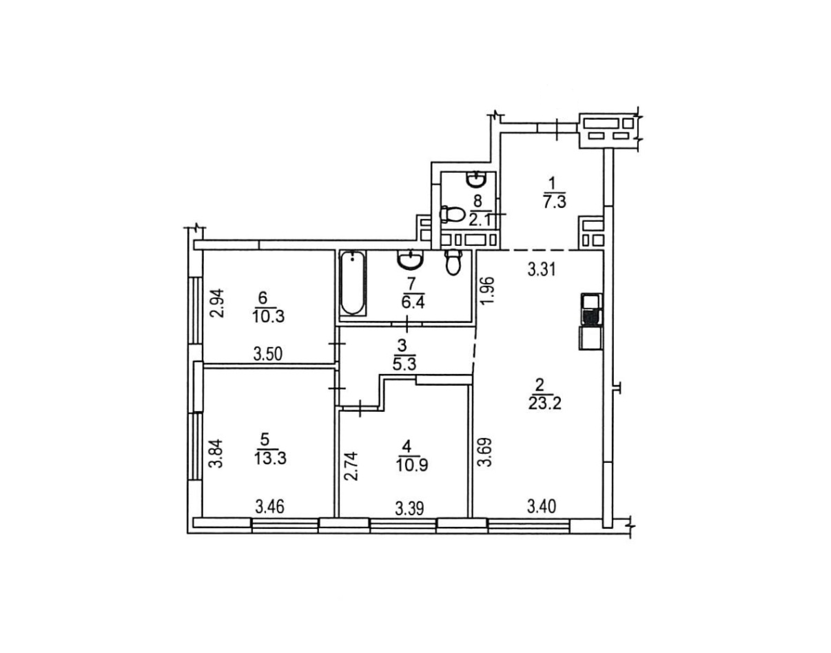
3-кімнатна квартира
Ціна:
5 060 000* грн.
$
117 000 $ (1$ = 43.25 грн.)
98 900 € (1€ = 51.15 грн.)
К-сть кімнат:
Площа (загальна):
78.8
Продаж 3-кімнатної квартири в ЖК Варшавський-3 м. Київ, вул. Всеволода Змієнка, 30. Ідеальний варіант для життя або інвестиції в одному з найпопулярніших ЖК столиці. Про квартиру: 16/25 поверх. Загальна площа — 78,8 м² Правильне, продумане планування: простора кухня-вітальня, 3 окремі спальні, 2 окремі санвузли та засклена лоджія Квартира світла, зручна та функціональна — без зайвих метрів. Не кутова, тепла. ЖК «Варшавський» — топовий житловий комплекс Києва Розвинена інфраструктура: магазини, кафе, сервіси, дитячі майданчики. Наземний багаторівневий паркінг. Є укриття. Повна автономність будинку: генератор на ліфти, водопостачання та опалення Комфортне та безпечне життя за будь-яких умов. Документи готові, будинок введений в експлуатацію в 2025 році Без податків для покупця Без комісії для покупця! Розглядаються усі державні програми! та безготівковий розрахунок! Це той варіант, який краще один раз побачити — телефонуйте за номером або пишіть на Viber\WhatApp\Telegram
Завантажити .pdf

Посередник

Віталій

Оновлено: 16 Січня 2026
Код об'єкта: W-7431965
CAPTCHA Фото Капча
Введіть символи, зображені на малюнку.

Поскаржитися на оголошення

W-7431965 |

Вкажіть причину скарги

Максимальна кількість символів 500
CAPTCHA Фото Капча
Введіть символи, зображені на малюнку.

Схожі оголошення

  • Продаж квартири вул. Олеся Олександра 5а в Києві / Q-30199 (вул. Олеся Олександра, 5а) 4 931 000* грн.

    Продаж квартири вул. Олеся Олександра 5а в Києві / Q-30199

  • Продаж квартири вул. Набережно-Рибальська дорога 11 в Києві / G-1923330 (вул. Набережно-Рибальська дорога, 11) 4 995 000* грн.

    Продаж квартири вул. Набережно-Рибальська дорога 11 в Києві / G-1923330

  • Продаж квартири вул. Олеся Олександра 9а в новобудові в Києві / W-7415567 (вул. Олеся Олександра, 9а) 4 758 000* грн.

    Продаж квартири вул. Олеся Олександра 9а в новобудові в Києві / W-7415567

  • Продаж квартири вул. Змієнка Всеволода 34/21 в Києві / W-7434696 (вул. Змієнка Всеволода, 34/21) 4 974 000* грн.

    Продаж квартири вул. Змієнка Всеволода 34/21 в Києві / W-7434696

  • Продаж квартири вул. Виговського Івана (Гречка Маршала) 42 в Києві / Q-6597 (вул. Виговського Івана (Гречка Маршала), 42) 5 298 000* грн.

    Продаж квартири вул. Виговського Івана (Гречка Маршала) 42 в Києві / Q-6597

  • Продаж квартири вул. Ужвій Наталії 7 в Києві / I-38417 (вул. Ужвій Наталії, 7) 4 580 000* грн.

    Продаж квартири вул. Ужвій Наталії 7 в Києві / I-38417

  • Продаж квартири вул. Кирилівська (Фрунзе) 37а в Києві / I-36144 (вул. Кирилівська (Фрунзе), 37а) 4 974 000* грн.

    Продаж квартири вул. Кирилівська (Фрунзе) 37а в Києві / I-36144

  • Продаж квартири вул. Вишгородська 45 в Києві / H-44205 (вул. Вишгородська, 45) 4 758 000* грн.

    Продаж квартири вул. Вишгородська 45 в Києві / H-44205

  • Продаж квартири вул. Крістерів родини 14в в Києві / W-7430840 (вул. Крістерів родини, 14в) 4 758 000* грн.

    Продаж квартири вул. Крістерів родини 14в в Києві / W-7430840

  • Продаж квартири вул. Крістерів родини 20б в Києві / W-7434462 (вул. Крістерів родини, 20б) 4 714 000* грн.

    Продаж квартири вул. Крістерів родини 20б в Києві / W-7434462

  • Продаж квартири вул. Кирилівська (Фрунзе) 37а в Києві / I-36490 (вул. Кирилівська (Фрунзе), 37а) 4 974 000* грн.

    Продаж квартири вул. Кирилівська (Фрунзе) 37а в Києві / I-36490

  • Продаж квартири вул. Щекавицька 42/48 в Києві / W-7370497 (вул. Щекавицька, 42/48) 4 628 000* грн.

    Продаж квартири вул. Щекавицька 42/48 в Києві / W-7370497