Реєстрація /

Оренда Офіс вул. Маккейна Джона (Кудрі Івана) 26 в Києві / W-7431077

Комерційна нерухомість
Ціна:
95 600* грн.
/місяць
$
2 200 $ (1$ = 43.45 грн.)
1 860 € (1€ = 51.5 грн.)
Житловий комплекс:
К-сть кімнат:
3
Профіль:
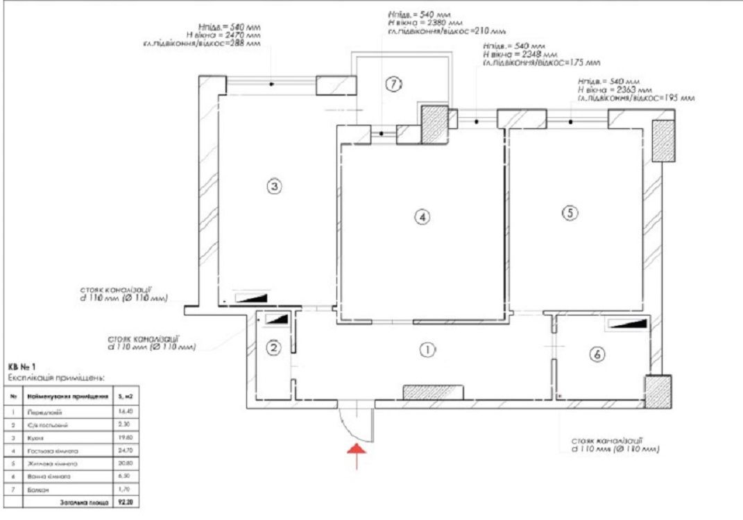
Площа:
92 м²
Поверх:
3
Ціна за м²:
1 040 грн.
Ремонт (стан):
з євроремонтом
БЕЗ КОМІСІЇ! Оренда офісного приміщення 92 м2 на вулиці Джона Маккейна. Задається без меблів, розташоване на 3-му поверсі (тільки офіси), висота стелі 3 м. Планування: 3 кабінети, мебльована кухня, балкон, С/в. Оснащено: кондиціюванням, пожежною та охороною сигналізаціями, відео спостереженням. У будівлі система контролю доступу, цілодобова охорона. Є можливість орендувати паркове місце в підземному паркінгу. Поруч метро «Дружби Народів» та «Либідська». Додатково сплачуються комунальні платежі. Код оголошення RC-175-174.
Завантажити .pdf

Посередник

Alan

Оновлено: 16 Лютого 2026
Код об'єкта: W-7431077
CAPTCHA Фото Капча
Введіть символи, зображені на малюнку.

Поскаржитися на оголошення

W-7431077 |

Вкажіть причину скарги

Максимальна кількість символів 500
CAPTCHA Фото Капча
Введіть символи, зображені на малюнку.

Схожі оголошення