Реєстрація /

Оренда Офіс вул. Теліги Олени 6 в Києві / W-7429998

Комерційна нерухомість
Ціна:
446 000* грн.
/місяць
$
10 500 $ (1$ = 42.45 грн.)
8 900 € (1€ = 50.1 грн.)
Профіль:
Площа:
500 м²
Ціна за м²:
891 грн.
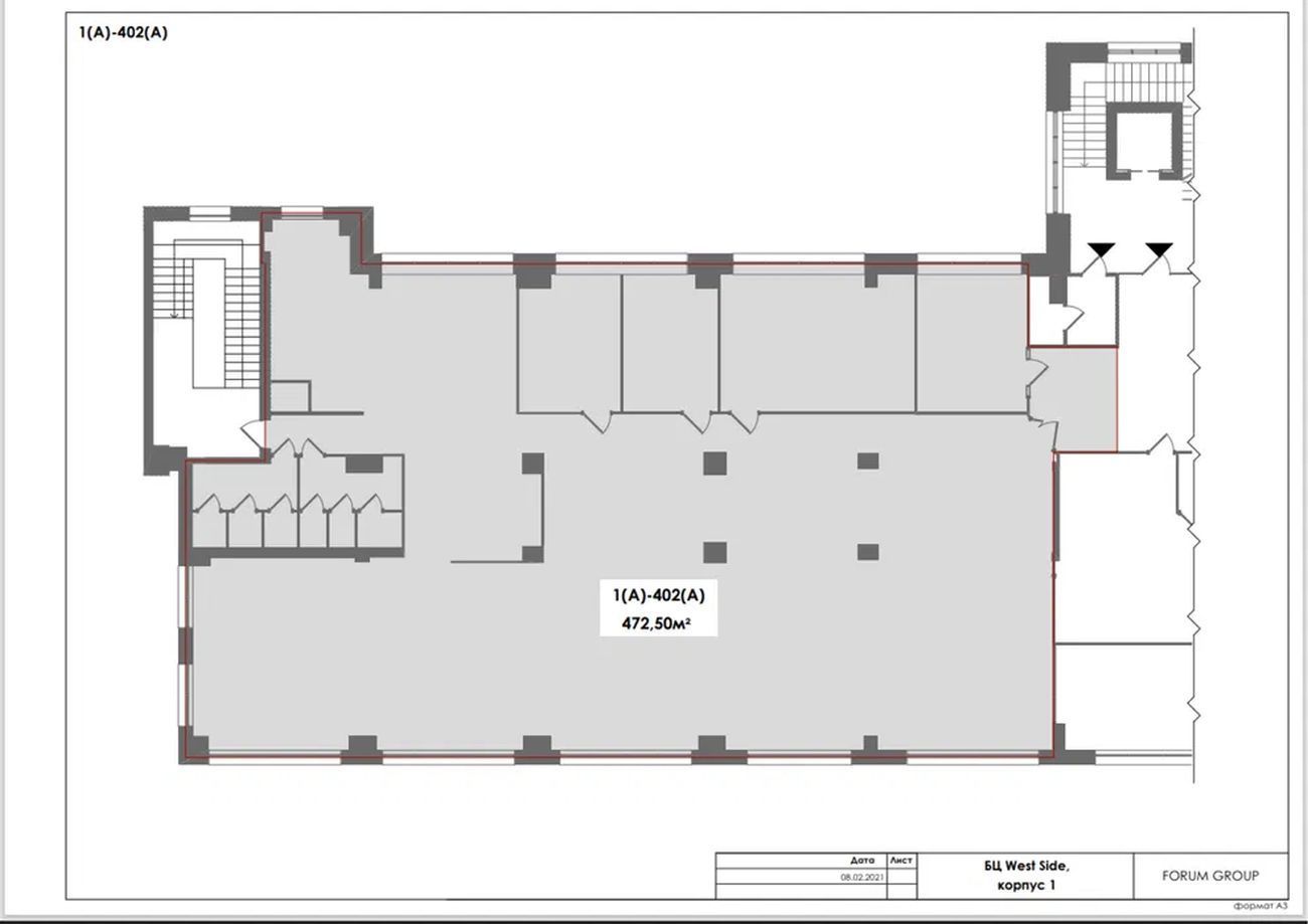
Пропонується в оренду просторий та світлий офіс площею 472 м² (розрахункова площа 534 м²) у сучасному бізнес-центрі “WEST SIDE”. Офіс розташований на 3 поверсі корпусу 2. Завдяки вдалому плануванню та панорамним вікнам, приміщення наповнене природним світлом, що створює комфортні умови для роботи. Офіс змішаного планування: open space + 2 окремі кабінети. Кухня та санвузол у приміщенні. Сучасний ремонт. Потужна інфраструктура бізнес-центру: Затишний дворик з ландшафтним дизайном для перерви на каву та зелена територія, обладнана зоною відпочинку для резидентів з альтанками з BBQ Зелена територія з вуличними тренажерами Стильні лаунж-зони у холах корпусів Термінали та банкомати Кав’ярня та їдальня Кімната для йоги Паркінг на 257 автомобілів, стоянка для велосипедів та зарядні станції для електрокарів Зона укриття для вашої безпеки БЦ WEST SIDE, вул. Олени Теліги, 6. Вартість оренди: $11.00 / м² + OPEX $5.50 / м² + ПДВ. Фінальна вартість приміщення – $10572 / місяць (з ПДВ).
Завантажити .pdf

Посередник

Ярослав

Оновлено: 30 Грудня 2025
Код об'єкта: W-7429998
CAPTCHA Фото Капча
Введіть символи, зображені на малюнку.

Поскаржитися на оголошення

W-7429998 |

Вкажіть причину скарги

Максимальна кількість символів 500
CAPTCHA Фото Капча
Введіть символи, зображені на малюнку.

Схожі оголошення