Реєстрація /

Оренда Офіс вул. Провіантська (Тимофєєвої Галі) 3 в Києві / W-7429806

Комерційна нерухомість
Ціна:
100 000* грн.
/місяць
$
2 280 $ (1$ = 44.05 грн.)
1 970 € (1€ = 51.1 грн.)
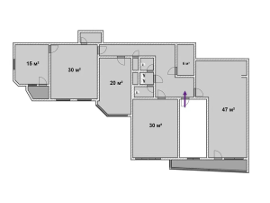
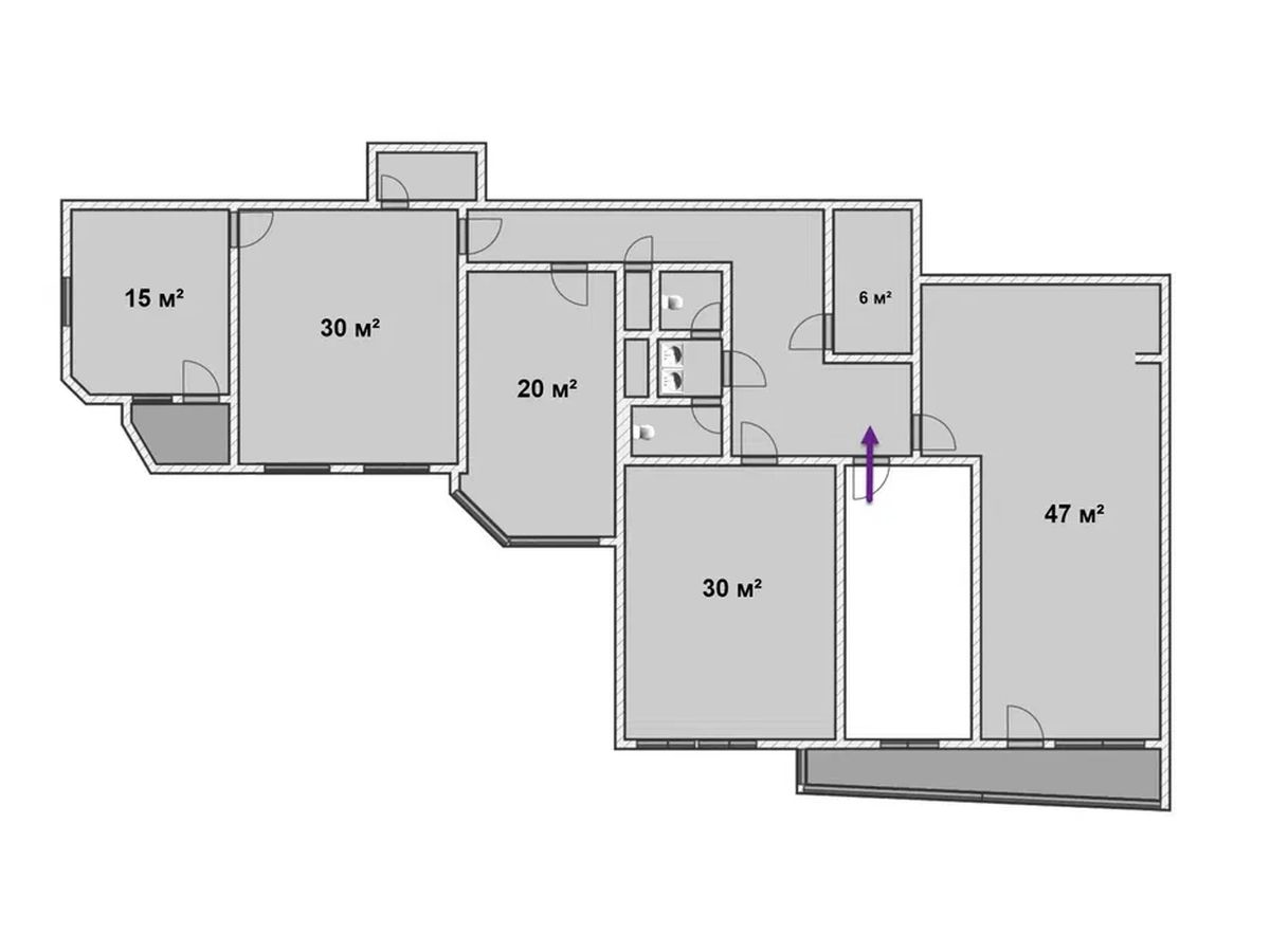
Оренда офісу площею 190 м2. 5 кабінетів, міні-кухня, серверна, 2 с/в. До метро Політехнічний Інститут (КПІ) 550 метрів (7 хвилин пішки). Телефонія, швидкісний інтернет, кондиціювання. Приміщення з окремим входом в житлово-офісному комплексі, є цілодобова охорона. Нежитловий фонд. Адреса: вул. Провіантська (колишня Галі Тимофєєвої), 3. Шевченківський район. Метро Політехнічний Інститут. Вартість: 2280 дол. (12 дол./м2) Експлуатаційні: 4000 грн./міс. Комунальні за лічильником. Приміщення включає в себе: - Кабінет 15 м2 - Кабінет 30 м2 - Кабінет 20 м2 - Кабінет 30 м2 - Кабінет 47 м2 - Міні-кухня з холодильником і мікрохвильовкою - Підсобне приміщення з можливістю підключення посудомийної машини і технічним краном - Серверна - 2 туалети - 2 балкона У кабінетах виведено багато розеток живлення, а також мережевих і телефонних розеток для гнучкої розстановки робочих місць і обладнання. Встановлена міні-АТС. Офіційний договір оренди, безготівковий розрахунок.
Завантажити .pdf

Посередник

Юрій

Оновлено: 20 Березня 2026
Код об'єкта: W-7429806
CAPTCHA Фото Капча
Введіть символи, зображені на малюнку.

Поскаржитися на оголошення

W-7429806 |

Вкажіть причину скарги

Максимальна кількість символів 500
CAPTCHA Фото Капча
Введіть символи, зображені на малюнку.

Схожі оголошення