Реєстрація /

Оренда Офіс вул. Жилянська в Києві / W-7428017

Комерційна нерухомість
Ціна:
425 000* грн.
/місяць
$
9 990 $ (1$ = 42.52 грн.)
8 500 € (1€ = 49.95 грн.)
К-сть кімнат:
10
Профіль:
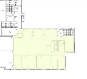
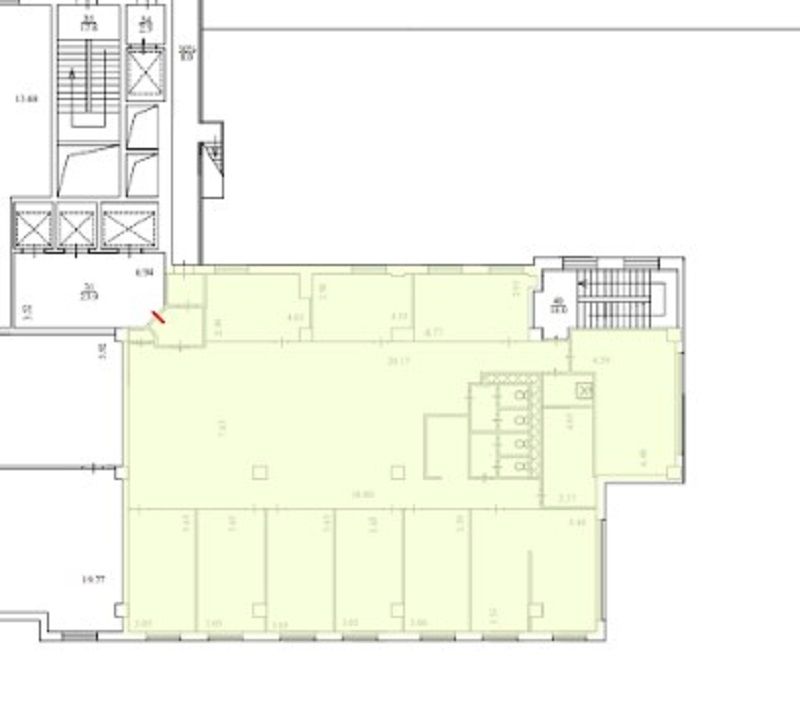
Площа:
416 м²
Поверх/К-сть поверхів:
13/14
Ціна за м²:
1 020 грн.
Ремонт (стан):
з євроремонтом
Парковка:
так
БЕЗ КОМІСІЇ! Оренда офісу 416 м2 у бізнес центрі класу А по вулиці Жилянська. Технічна оснащеність: 8 швидкісних ліфтів компанії Schindler, сучасна система протипожежної безпеки; система вентиляції, кондиціювання та клімат-контролю в кожному офісному приміщенні; відеоспостереження; СКД, цілодобова охорона; паркування. Приміщення розташоване на 13 поверсі, планування: Open space, кабінети, переговорні кімнати, кухня, 4 санвузли. Вартість оренди вказана без урахування ПДВ, окремо сплачуються комунальні платежі. Код оголошення RC-219-306.
Завантажити .pdf

Посередник

Alan

Оновлено: 17 Грудня 2025
Код об'єкта: W-7428017
CAPTCHA Фото Капча
Введіть символи, зображені на малюнку.

Поскаржитися на оголошення

W-7428017 |

Вкажіть причину скарги

Максимальна кількість символів 500
CAPTCHA Фото Капча
Введіть символи, зображені на малюнку.

Схожі оголошення