Реєстрація /

Оренда Офіс вул. Саксаганського 120 в Києві / W-7427402

Комерційна нерухомість
Ціна:
136 000* грн.
/місяць
$
3 200 $ (1$ = 42.48 грн.)
2 720 € (1€ = 49.9 грн.)
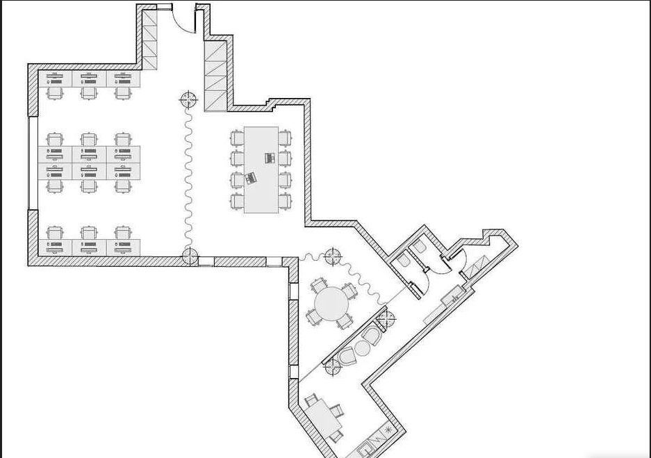
Без комісії. Оренда офісу 135 м2 у Шевченківському районі по вулиці Саксаганського. Приміщення розташоване на 2-му поверсі Бізнес центру, планування: Open space, кабінет, переговорна кімната, 2 санвузли, кухня. Офісний ремонт, здається з меблями. Система вентиляції і кондиціювання, високошвидкісний інтернет, СКД, охоронна та пожежна сигналізації. У будівлі презентабельна вхідна група, цілодобова охорона, пропускна система, критий паркінг та клієнтське паркування. Додатково сплачуються комунальні та експлуатаційні платежі. Е/енергія не вимикається.
Завантажити .pdf

Посередник

ALAN

Оновлено: 12 Грудня 2025
Код об'єкта: W-7427402
CAPTCHA Фото Капча
Введіть символи, зображені на малюнку.

Поскаржитися на оголошення

W-7427402 |

Вкажіть причину скарги

Максимальна кількість символів 500
CAPTCHA Фото Капча
Введіть символи, зображені на малюнку.

Схожі оголошення