Реєстрація /

Оренда Офіс вул. Глибочицька 40 в Києві / W-7427359

Комерційна нерухомість
Ціна:
33 000 грн.
/місяць
$
778 $ (1$ = 42.4 грн.)
660 € (1€ = 49.95 грн.)
К-сть кімнат:
4
Профіль:
Площа:
92 м²
Поверх/К-сть поверхів:
4/6
Ціна за м²:
358 грн.
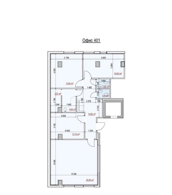
Оренда офісу 92 м2 в бізнес-центрі по вулиці Глибочицька. Офіс розташований на 4-му поверсі. Планування: Open space, переговорна, 2 кабінети, міні-кухня, 2 з/в. У будівлі система протипожежної безпеки, вентиляції, встановлені кондиціонери, централізовані системи опалення, водопостачання та каналізації, пропускний режим, швидкісний інтернет та телефонія від різних провайдерів, ліфт компанії OTIS, парковка відрита, цілодобова охорона, відеоспостереження, презентабельна вхідна група та прилегла. Орендну плату вказано з урахуванням ПДВ, комунальні послуги та обслуговування оплачуються окремо. Код оголошення RC-080-927.
Завантажити .pdf

Посередник

ALAN

Оновлено: 29 Грудня 2025
Код об'єкта: W-7427359
CAPTCHA Фото Капча
Введіть символи, зображені на малюнку.

Поскаржитися на оголошення

W-7427359 |

Вкажіть причину скарги

Максимальна кількість символів 500
CAPTCHA Фото Капча
Введіть символи, зображені на малюнку.

Схожі оголошення