Реєстрація /

Продаж квартири вул. Крістерів родини 16 в Києві / W-7425267

1-кімнатна квартира
Ціна:
4 960 000* грн.
$
117 000 $ (1$ = 42.39 грн.)
99 400 € (1€ = 49.9 грн.)
Житловий комплекс:
К-сть кімнат:
Площа (загальна):
48
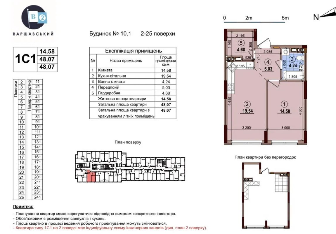
Продається стильна та простора квартира 48,2 м² у будинку 10.1 на вулиці Родини Крістерів, 16 (ЖК Варшавський-2). 11-й поверх, панорамні вікна та продумане планування з окремим вбудованим гардеробом створюють максимальний комфорт. Ремонт щойно завершено — ніхто не проживав. У квартирі встановлена преміальна техніка WHIRLPOOL, тепла підлога з системою “розумний будинок” та керуванням зі смартфона. Все продумано до деталей: від якісних матеріалів до сучасного освітлення. У будинку вже монтується резервне живлення для безперебійної роботи ліфтів та насосів — важлива перевага для комфорту та безпеки. Інфраструктура: Комплекс має власні дитячі та спортивні майданчики, зелені зони та внутрішні двори без авто. Поруч — школи, садочки, супермаркети, кафе, фітнес-центри, медичні клініки. До метро Нивки та Сирець — кілька хвилин транспортом. Зручний виїзд на проспект Правди та Кільцеву. Ідеальний варіант для життя або інвестиції — квартира, у яку можна заїжджати одразу!
Завантажити .pdf

Посередник

Максим

Оновлено: 9 Грудня 2025
Код об'єкта: W-7425267
CAPTCHA Фото Капча
Введіть символи, зображені на малюнку.

Поскаржитися на оголошення

W-7425267 |

Вкажіть причину скарги

Максимальна кількість символів 500
CAPTCHA Фото Капча
Введіть символи, зображені на малюнку.

Схожі оголошення

  • Продаж квартири вул. Змієнка Всеволода 15/23 в Києві / W-7428492 (вул. Змієнка Всеволода, 15/23) 4 938 000* грн.

    Продаж квартири вул. Змієнка Всеволода 15/23 в Києві / W-7428492

  • Продаж квартири вул. Вишгородська 45г в Києві / R-62935 (вул. Вишгородська, 45г) 4 958 000* грн.

    Продаж квартири вул. Вишгородська 45г в Києві / R-62935

  • Продаж квартири вул. Змієнка Всеволода 30 в Києві / W-7428720 (вул. Змієнка Всеволода, 30) 5 201 000* грн.

    Продаж квартири вул. Змієнка Всеволода 30 в Києві / W-7428720

  • Продаж квартири вул. Змієнка Всеволода 34/21 в Києві / W-7428362 (вул. Змієнка Всеволода, 34/21) 4 875 000* грн.

    Продаж квартири вул. Змієнка Всеволода 34/21 в Києві / W-7428362

  • Продаж квартири вул. Виговського Івана (Гречка Маршала) 42 в Києві / Q-27815 (вул. Виговського Івана (Гречка Маршала), 42) 5 299 000* грн.

    Продаж квартири вул. Виговського Івана (Гречка Маршала) 42 в Києві / Q-27815

  • Продаж квартири вул. Кирилівська (Фрунзе) 37 в Києві / Q-29366 (вул. Кирилівська (Фрунзе), 37) 4 536 000* грн.

    Продаж квартири вул. Кирилівська (Фрунзе) 37 в Києві / Q-29366

  • Продаж квартири вул. Набережно-Рибальська дорога 7 в Києві / R-62364 (вул. Набережно-Рибальська дорога, 7) 5 299 000* грн.

    Продаж квартири вул. Набережно-Рибальська дорога 7 в Києві / R-62364

  • Продаж квартири вул. Кирилівська (Фрунзе) 37 в Києві / I-36493 (вул. Кирилівська (Фрунзе), 37) 4 663 000* грн.

    Продаж квартири вул. Кирилівська (Фрунзе) 37 в Києві / I-36493

  • Продаж квартири вул. Костянтинівська 27 в Києві / W-7124196 (вул. Костянтинівська, 27) 4 832 000* грн.

    Продаж квартири вул. Костянтинівська 27 в Києві / W-7124196

  • Продаж квартири вул. Змієнка Всеволода 30 в Києві / W-7428491 (вул. Змієнка Всеволода, 30) 4 621 000* грн.

    Продаж квартири вул. Змієнка Всеволода 30 в Києві / W-7428491

  • Продаж квартири вул. Олеся Олександра 4 в Києві / W-7428311 (вул. Олеся Олександра, 4) 5 248 000* грн.

    Продаж квартири вул. Олеся Олександра 4 в Києві / W-7428311