Реєстрація /

Продаж квартири вул. Регенераторна 4 в Києві / W-7424652

3-кімнатна квартира
Ціна:
5 292 000* грн.
$
120 000 $ (1$ = 44.1 грн.)
103 000 € (1€ = 51.5 грн.)
К-сть кімнат/Розташування:
Площа (загальна/житлова/кухні):
96/40/20
Поверх/К-сть поверхів:
9/10
Тип (серія) будинку:
спецпроект 2011-2015 рр.
Матеріал стін:
Цегла
Матеріал підлоги:
Плитка
Матеріал перекриття:
Залізобетон
Кількість, тип санвузлів:
2, Сумісний
Парковка:
так
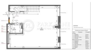
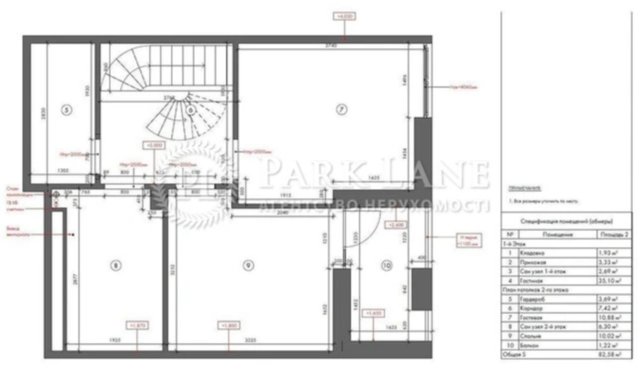
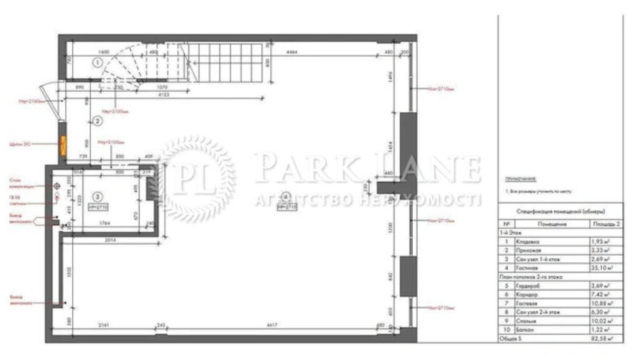
Пропонуємо до продажу видову дворівневу квартиру в престижному ЖК "Комфорт Таун" на вулиці Регенераторна, 4, корпус 16, Київ. Загальна площа 96 кв. м, будинок 2015 року будівництва – надійний спецпроект з цегляними стінами та залізобетонними перекриттями. Комплекс бізнес-класу з 10-поверховими будинками, сучасною архітектурою та яскравими фасадами забезпечує комфортне проживання в закритій території під цілодобовою охороною. Квартира в процесі ремонту, зроблені брудні роботи: залиті бетонні сходи, облаштоване "друге світло" для двох кабінетів, часткове перепланування за професійним дизайн-проектом, поштукатурені стіни та проведена електрика відповідно до проекту. Це дозволяє швидко завершити ремонт під ваші потреби, заощаджуючи час і кошти. В подарунок надаємо повний дизайн-проект – ідеальна основа для персоналізації простору. Локація – одна з найкращих у місті: 5 хвилин до метро Дарниця та Лівобережна, зручний доступ до центру Києва та основних магістралей.
Завантажити .pdf

Посередник

Ірина

Оновлено: 25 Лютого 2026
Код об'єкта: W-7424652
CAPTCHA Фото Капча
Введіть символи, зображені на малюнку.

Поскаржитися на оголошення

W-7424652 |

Вкажіть причину скарги

Максимальна кількість символів 500
CAPTCHA Фото Капча
Введіть символи, зображені на малюнку.

Схожі оголошення

  • Продаж квартири вул. Азербайджанська 16-4 в Києві / R-55537 (вул. Азербайджанська, 16-4) 4 763 000* грн.

    Продаж квартири вул. Азербайджанська 16-4 в Києві / R-55537

  • Продаж квартири вул. Князя Романа Мстиславича (Жмаченка Генерала) 22а в Києві / Q-6740 (вул. Князя Романа Мстиславича (Жмаченка Генерала), 22а) 4 895 000* грн.

    Продаж квартири вул. Князя Романа Мстиславича (Жмаченка Генерала) 22а в Києві / Q-6740

  • Продаж квартири вул. Князя Романа Мстиславича (Жмаченка Генерала) в Києві / W-7429573 (вул. Князя Романа Мстиславича (Жмаченка Генерала)) 5 513 000* грн.

    Продаж квартири вул. Князя Романа Мстиславича (Жмаченка Генерала) в Києві / W-7429573

  • Продаж квартири вул. Князя Романа Мстиславича (Жмаченка Генерала) 22 в Києві / B-108103 (вул. Князя Романа Мстиславича (Жмаченка Генерала), 22) 5 204 000* грн.

    Продаж квартири вул. Князя Романа Мстиславича (Жмаченка Генерала) 22 в Києві / B-108103

  • Продаж квартири вул. Каховська (Микільська Слобідка) 62а в Києві / L-31728 (вул. Каховська (Микільська Слобідка), 62а) 4 939 000* грн.

    Продаж квартири вул. Каховська (Микільська Слобідка) 62а в Києві / L-31728

  • Продаж квартири вул. Микільсько-Слобідська 11 в Києві / L-31912 (вул. Микільсько-Слобідська, 11) 5 821 000* грн.

    Продаж квартири вул. Микільсько-Слобідська 11 в Києві / L-31912

  • Продаж квартири Тичини Павла просп. 8 в Києві / W-7439380 (Тичини Павла просп., 8) 5 027 000* грн.

    Продаж квартири Тичини Павла просп. 8 в Києві / W-7439380

  • Продаж квартири вул. Князя Романа Мстиславича (Жмаченка Генерала) 22а в Києві / W-7350473 (вул. Князя Романа Мстиславича (Жмаченка Генерала), 22а) 5 821 000* грн.

    Продаж квартири вул. Князя Романа Мстиславича (Жмаченка Генерала) 22а в Києві / W-7350473

  • Продаж квартири вул. Микільсько-Слобідська 8 в Києві / W-7405237 (вул. Микільсько-Слобідська, 8) 5 512 000* грн.

    Продаж квартири вул. Микільсько-Слобідська 8 в Києві / W-7405237

  • Продаж квартири вул. Будівельників 24 в Києві / R-48832 (вул. Будівельників, 24) 5 292 000* грн.

    Продаж квартири вул. Будівельників 24 в Києві / R-48832

  • Продаж квартири вул. Князя Романа Мстиславича (Жмаченка Генерала) 22а в Києві / A-114668 (вул. Князя Романа Мстиславича (Жмаченка Генерала), 22а) 5 513 000* грн.

    Продаж квартири вул. Князя Романа Мстиславича (Жмаченка Генерала) 22а в Києві / A-114668

  • Продаж квартири вул. Навої А.просп. 69 в Києві / W-7217077 (вул. Навої А.просп., 69) 5 733 000* грн.

    Продаж квартири вул. Навої А.просп. 69 в Києві / W-7217077