Реєстрація /

Оренда Нежитлове приміщення вул. Стальського Сулеймана 32 в Києві / W-7424418

Комерційна нерухомість
Ціна:
97 800* грн.
/місяць
$
2 300 $ (1$ = 42.5 грн.)
1 980 € (1€ = 49.35 грн.)
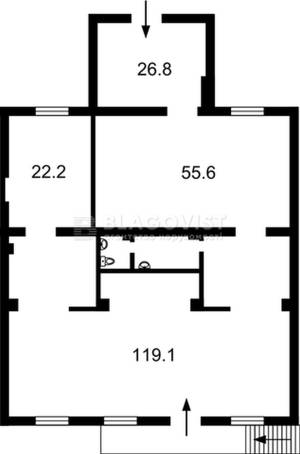
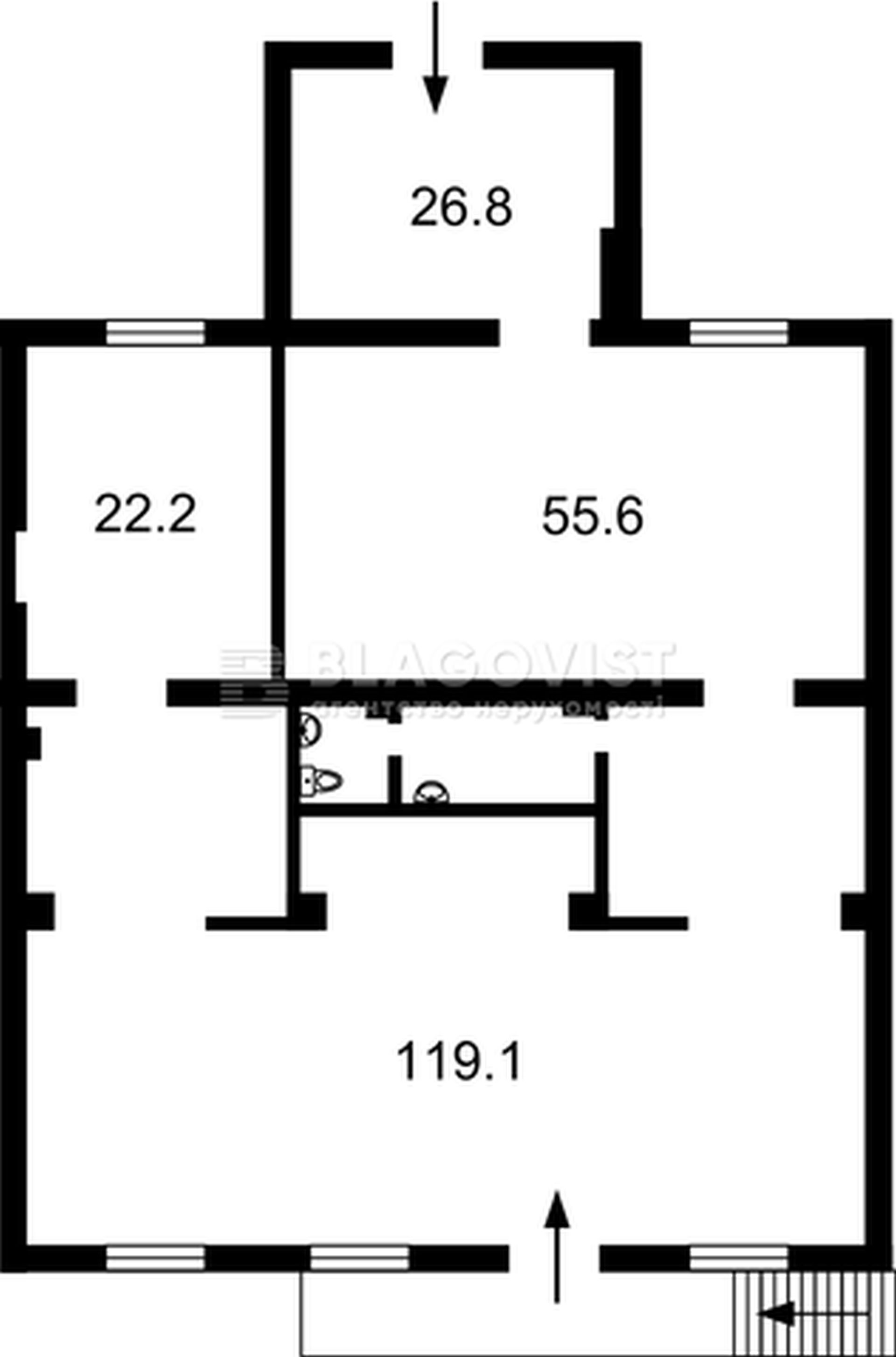
Здається офіс без/з меблями (столи, шафи), у підсобному приміщенні металеві стелажі (у разі потреби - усе вивеземо). Електрика 220, 19, 6 кВт. Інтернет 1 гігабайт. Пульт охорони, датчики на відкриття дверей та вікон, датчики руху. 8 кондиціонерів, два туалети, бойлер гарячої води, лічильник холодної води. Є невеличка кухня з електро плитою та мийкою. Окрема серверна з обладнаним кондиціонером. Велике складське приміщення. Рампа зі двору, є зручний під"їзд для розвантаження.
Завантажити .pdf

Посередник

Виктория Эрдив

Оновлено: 26 Листопада 2025
Код об'єкта: W-7424418
CAPTCHA Фото Капча
Введіть символи, зображені на малюнку.

Поскаржитися на оголошення

W-7424418 |

Вкажіть причину скарги

Максимальна кількість символів 500
CAPTCHA Фото Капча
Введіть символи, зображені на малюнку.

Схожі оголошення

  • Оренда Офіс Шухевича Романа просп. (Ватутіна Генерала просп.) в Києві / A-93874 (Офіс, Шухевича Романа просп. (Ватутіна Генерала просп.)) 103 000 грн./місяць

    Оренда Офіс Шухевича Романа просп. (Ватутіна Генерала просп.) в Києві / A-93874

  • Оренда Нежитлове приміщення вул. Черчилля Вінстона (Червоноткацька) 43 в Києві / W-7420105 (Нежитлове приміщення, вул. Черчилля Вінстона (Червоноткацька)) 106 000* грн./місяць

    Оренда Нежитлове приміщення вул. Черчилля Вінстона (Червоноткацька) 43 в Києві / W-7420105

  • Оренда Офіс вул. Сверстюка Євгена (Раскової Марини) в Києві / W-7398042 (Офіс, вул. Сверстюка Євгена (Раскової Марини)) 92 000 грн./місяць

    Оренда Офіс вул. Сверстюка Євгена (Раскової Марини) в Києві / W-7398042

  • Оренда Нежитлове приміщення вул. Сверстюка Євгена (Раскової Марини) в Києві / G-788513 (Нежитлове приміщення, вул. Сверстюка Євгена (Раскової Марини)) 89 300* грн./місяць

    Оренда Нежитлове приміщення вул. Сверстюка Євгена (Раскової Марини) в Києві / G-788513

  • Оренда Офіс вул. Шумського Юрія в Києві / Q-27558 (Офіс, вул. Шумського Юрія) 93 500* грн./місяць

    Оренда Офіс вул. Шумського Юрія в Києві / Q-27558

  • Оренда Офіс вул. Сверстюка Євгена (Раскової Марини) в Києві / R-45387 (Офіс, вул. Сверстюка Євгена (Раскової Марини)) 96 000 грн./місяць

    Оренда Офіс вул. Сверстюка Євгена (Раскової Марини) в Києві / R-45387

  • Оренда Нежитлове приміщення вул. Микитенка Івана в Києві / P-32283 (Нежитлове приміщення, вул. Микитенка Івана) 100 000 грн./місяць

    Оренда Нежитлове приміщення вул. Микитенка Івана в Києві / P-32283

  • Оренда Склад Дарницька пл. (Ленінградська пл.) в Києві / W-7424344 (Склад, Дарницька пл. (Ленінградська пл.)) 94 500 грн./місяць

    Оренда Склад Дарницька пл. (Ленінградська пл.) в Києві / W-7424344

  • Оренда Нежитлове приміщення вул. Малишка А. в Києві / Q-28658 (Нежитлове приміщення, вул. Малишка А.) 100 000 грн./місяць

    Оренда Нежитлове приміщення вул. Малишка А. в Києві / Q-28658