Реєстрація /

Продаж квартири вул. Липківського Василя митрополита (Урицького) 16г в Києві / W-7423335

3-кімнатна квартира
Ціна:
9 422 000* грн.
$
223 000 $ (1$ = 42.25 грн.)
192 000 € (1€ = 49 грн.)
Житловий комплекс:
К-сть кімнат:
Площа (загальна):
74
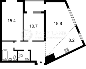
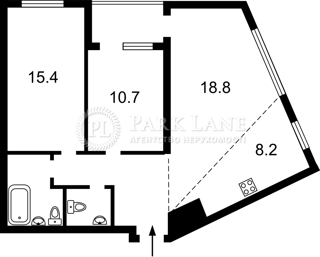
ЖК "Квартет", Київ, вул. Липківського митрополита (Урицького), 16г — сучасний житловий комплекс, збудований у рамках спецпроекту 2016-2020 рр. Комплекс має 24 поверхи, стіни виконані з цегли, перекриття — залізобетонне. Розташування є одним з головних переваг: поруч — лісопарк "Солом'янський" і парк Островського з дитячими майданчиками. Також поблизу знаходяться супермаркет "Novus", спортзал "Sport Life", ТЦ "Європорт", медичні установи та спеціалізована англійська школа ім. Огієнка. Особливою зимовою перевагою є близькість до Протасового яру, популярного гірськолижного курорту Києва. 3-кімнатна квартира на 12-му поверсі, загальна площа — 74 м² (кімнати — 32 м² і 22 м², кухня-студія — 22 м²). Квартира з авторським ремонтом, виконаним за індивідуальним проектом, де продумана кожна деталь. Планування включає дві окремі спальні, простору кухню-студію, балкон з панорамним видом, велику гардеробну та роздільний санвузол.
Завантажити .pdf

Посередник

Оновлено: 20 Листопада 2025
Код об'єкта: W-7423335
CAPTCHA Фото Капча
Введіть символи, зображені на малюнку.

Поскаржитися на оголошення

W-7423335 |

Вкажіть причину скарги

Максимальна кількість символів 500
CAPTCHA Фото Капча
Введіть символи, зображені на малюнку.

Схожі оголошення

  • Продаж квартири Лобановського просп. (Червонозоряний пр) 4б в Києві / R-72274 (Лобановського просп. (Червонозоряний пр), 4б) 8 873 000* грн.

    Продаж квартири Лобановського просп. (Червонозоряний пр) 4б в Києві / R-72274

  • Продаж квартири вул. Липківського Василя митрополита (Урицького) 16а в Києві / W-7408260 (вул. Липківського Василя митрополита (Урицького), 16а) 8 870 000* грн.

    Продаж квартири вул. Липківського Василя митрополита (Урицького) 16а в Києві / W-7408260

  • Продаж квартири Гавела Вацлава бульв. (Лепсе Івана) 6/7а в Києві / W-7393637 (Гавела Вацлава бульв. (Лепсе Івана), 6/7а) 8 872 000* грн.

    Продаж квартири Гавела Вацлава бульв. (Лепсе Івана) 6/7а в Києві / W-7393637

  • Продаж квартири вул. Шаповала Генерала (Механізаторів) 2 в Києві / W-7419691 (вул. Шаповала Генерала (Механізаторів), 2) 9 929 000* грн.

    Продаж квартири вул. Шаповала Генерала (Механізаторів) 2 в Києві / W-7419691

  • Продаж квартири вул. Патріарха Мстислава Скрипніка (Островського Миколи) 40 в Києві / W-7378685 (вул. Патріарха Мстислава Скрипніка (Островського Миколи), 40) 8 873 000* грн.

    Продаж квартири вул. Патріарха Мстислава Скрипніка (Островського Миколи) 40 в Києві / W-7378685

  • Продаж квартири вул. Липківського Василя митрополита (Урицького) 37б в Києві / G-821827 (вул. Липківського Василя митрополита (Урицького), 37б) 9 295 000* грн.

    Продаж квартири вул. Липківського Василя митрополита (Урицького) 37б в Києві / G-821827

  • Продаж квартири вул. Шаповала Генерала (Механізаторів) 2 в Києві / J-35839 (вул. Шаповала Генерала (Механізаторів), 2) 9 084 000* грн.

    Продаж квартири вул. Шаповала Генерала (Механізаторів) 2 в Києві / J-35839

  • Продаж квартири вул. Антонова Авіаконструктора 2б в Києві / R-54924 (вул. Антонова Авіаконструктора, 2б) 9 126 000* грн.

    Продаж квартири вул. Антонова Авіаконструктора 2б в Києві / R-54924

  • Продаж квартири вул. Мокра (Кудряшова) 20г в Києві / B-109042 (вул. Мокра (Кудряшова), 20г) 9 084 000* грн.

    Продаж квартири вул. Мокра (Кудряшова) 20г в Києві / B-109042

  • Продаж квартири вул. Мокра (Кудряшова) 8б в Києві / L-31791 (вул. Мокра (Кудряшова), 8б) 9 084 000* грн.

    Продаж квартири вул. Мокра (Кудряшова) 8б в Києві / L-31791

  • Продаж квартири Лобановського просп. (Червонозоряний пр) 4в в Києві / G-1957298 (Лобановського просп. (Червонозоряний пр), 4в) 8 661 000* грн.

    Продаж квартири Лобановського просп. (Червонозоряний пр) 4в в Києві / G-1957298

  • Продаж квартири вул. Мокра (Кудряшова) 8б в Києві / W-7410508 (вул. Мокра (Кудряшова), 8б) 9 084 000* грн.

    Продаж квартири вул. Мокра (Кудряшова) 8б в Києві / W-7410508