Реєстрація /

Оренда Офіс вул. Ярославська в Києві / W-7421501

Комерційна нерухомість
Ціна:
840 000* грн.
/місяць
$
19 900 $ (1$ = 42.22 грн.)
17 100 € (1€ = 49.15 грн.)
К-сть кімнат:
17
Профіль:
Площа:
1100 м²
Поверх/К-сть поверхів:
8/10
Ціна за м²:
763 грн.
Ремонт (стан):
з ремонтом
Парковка:
так
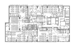
БЕЗ КОМІСІЇ! Оренда офісу 1105 м2 у центрі Подолу по вулиці Ярославська. Приміщення розташоване на 8 поверсі Бізнес центру класу "А", планування: зони Open space, переговорні кімнати, кабінети, конференц-зал, санвузли, серверна, підсобні приміщення, зона рецепції, приміщення під кухню, душова. Будівля оснащена центральною системою вентиляції та кондиціювання, пожежною та охоронною сигналізаціями, СКД цілодобова фізична охорона. На території є ресторан, кав'ярні, кухня домашнього харчування, банк, салон краси, Нова пошта, нотаріус. Орендна ставка 18$/м2 без урахування ПДВ, додатково сплачуються комунальні та експлуатаційні платежі. Генератор, підземний паркинг. Код оголошення RC-217-729.
Завантажити .pdf

Посередник

Alan

Оновлено: 17 Листопада 2025
Код об'єкта: W-7421501
CAPTCHA Фото Капча
Введіть символи, зображені на малюнку.

Поскаржитися на оголошення

W-7421501 |

Вкажіть причину скарги

Максимальна кількість символів 500
CAPTCHA Фото Капча
Введіть символи, зображені на малюнку.

Схожі оголошення