Реєстрація /

Оренда Офіс вул. Лейпцизька 15 в Києві / W-7418889

Комерційна нерухомість
Ціна:
476 000* грн.
/місяць
$
11 300 $ (1$ = 42.25 грн.)
9 690 € (1€ = 49.15 грн.)
Профіль:
Площа:
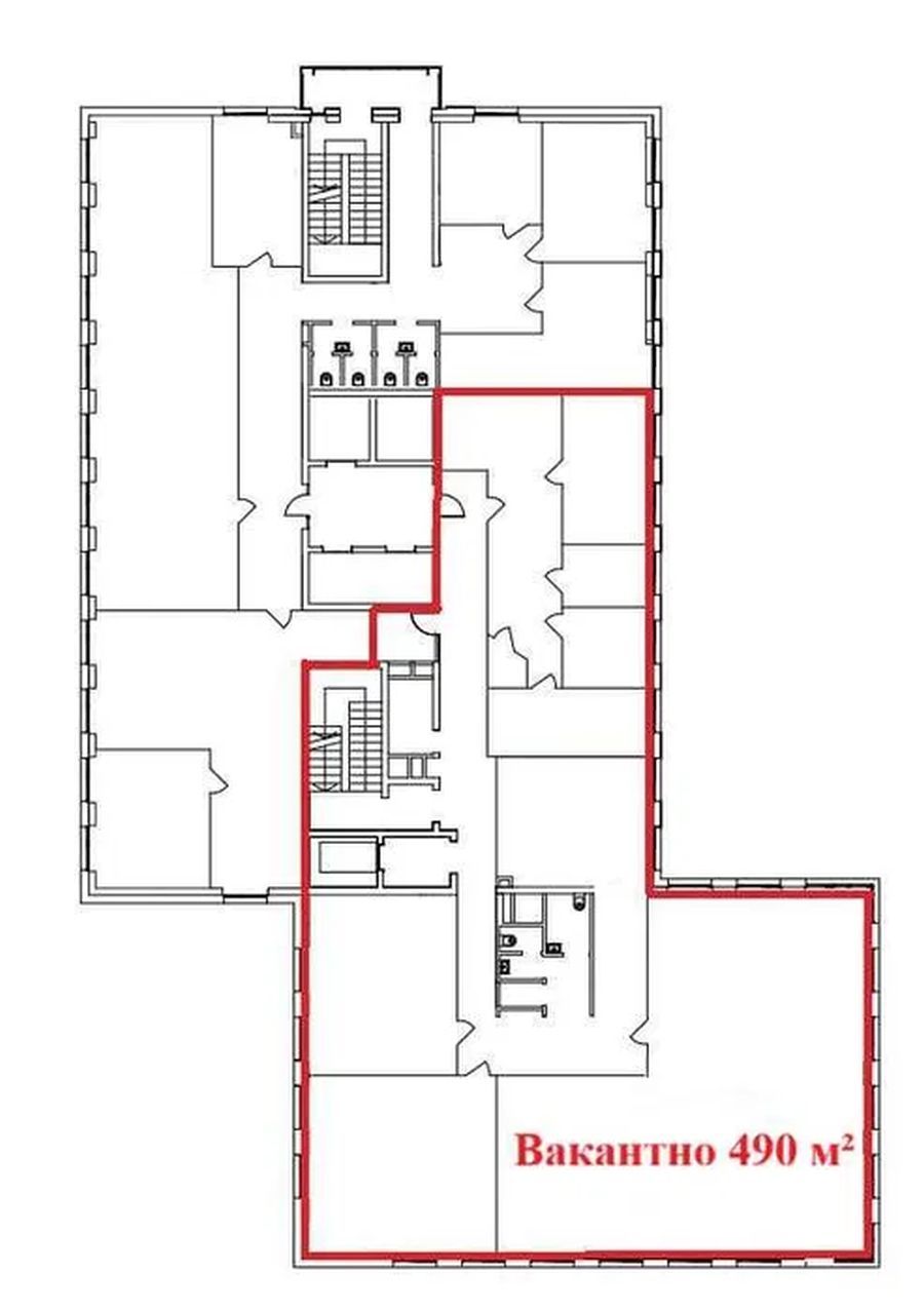
500 м²
Ціна за м²:
952 грн.
Оренда офісу в БЦ MERX III черга (клас А) на Лейпцизькій, 15. Площа: 490 кв.м (3й поверх). Особливості: Альтернативні джерела енергії (теплові насоси) Центральна вентиляція з рекуперацією тепла («AL-KO», Німеччина) Система кондиціонування VRV («LG») Газова котельня з конденсаційними котлами та внутрішньопідлоговими конвекторами («Mühlenhoff», Німеччина) Ліфти SIGMA (час очікування 20 секунд) Диспетчеризація будівлі Пожежна сигналізація, спринклерна система пожежогасіння, система димовидалення Пішохідна доступність: 15 хвилин до м. "Арсенальна" 10 хвилин до м. "Печерська". Оренда: 23 у.о./кв.м з ПДВ та OPEX. Комунальні платежі - по факту споживання.
Завантажити .pdf

Посередник

Юрій

Оновлено: 19 Листопада 2025
Код об'єкта: W-7418889
CAPTCHA Фото Капча
Введіть символи, зображені на малюнку.

Поскаржитися на оголошення

W-7418889 |

Вкажіть причину скарги

Максимальна кількість символів 500
CAPTCHA Фото Капча
Введіть символи, зображені на малюнку.

Схожі оголошення