Реєстрація /

Оренда Офіс вул. Дегтярівська 27 в Києві / W-7416918

Комерційна нерухомість
Ціна:
464 000* грн.
/місяць
$
11 000 $ (1$ = 42.17 грн.)
9 490 € (1€ = 48.9 грн.)
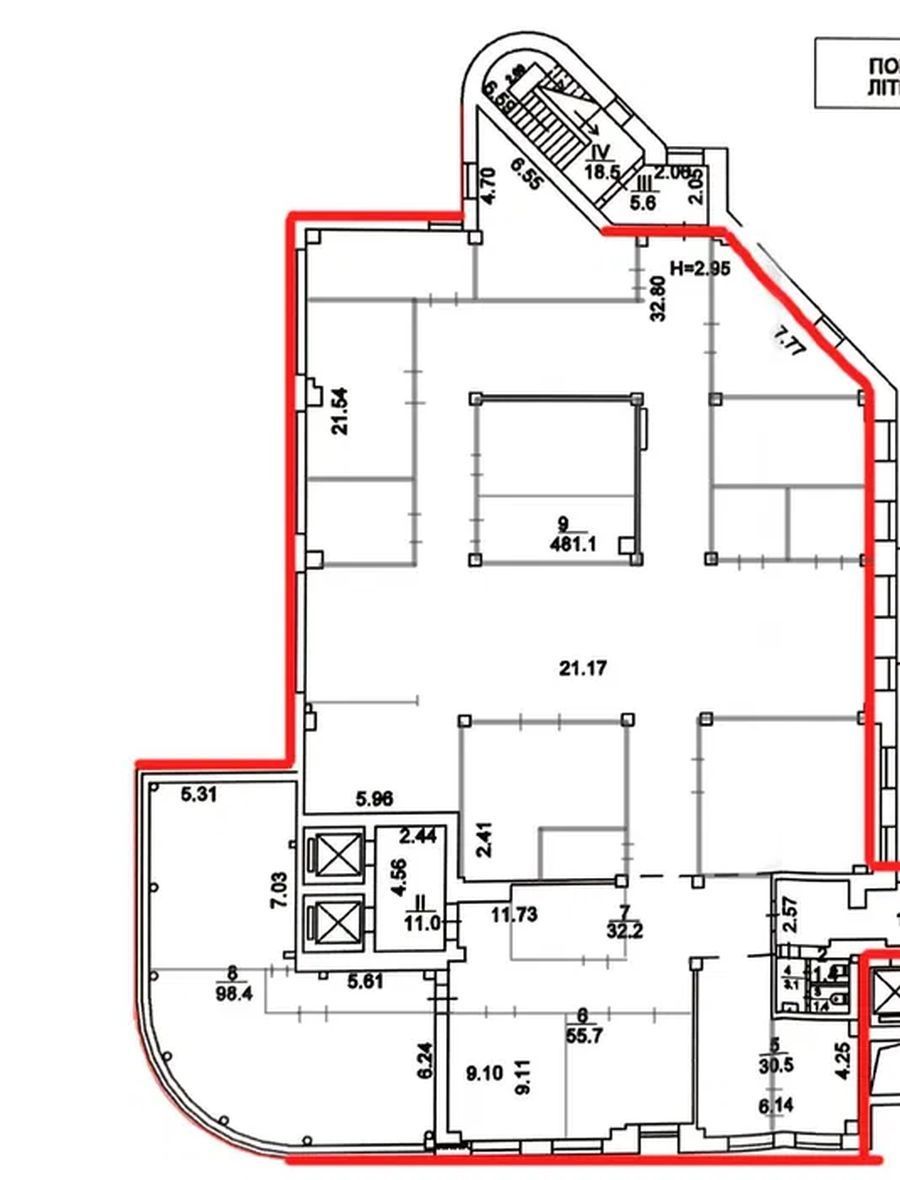
Бізнес-центр Mikom Palace (Міком Палац) - сучасний офісний центр в Шевченківському районі м. Києва, де пропонується оренда офісу на 4 поверсі з ремонтом в стані "після поперднього орендаря". В приміщенні власна кухня та 2 санвузла. У числі орендарів БЦ Mikom Palace провідні українські та міжнародні компанії фармацевтичної, фінансової, інвестиційної та інших галузей діяльності. Бізнес-центр відрізняється фасадним розташуванням, презентабельною вхідною групою, високою стелею, з двома входами в будівлю, наявністю великого паркінгу. Найближчі ст.м. Лук'янівська, Дорогожичі і ст.м. Шулявська розташовані в пішохідній доступності до бізнес-центру. 4 поверх - 1000 кв.м. корисної площі. (меблі відсутні); Коефіцієнт загальних площ: 11% Орендна ставка - 8 дол. з ПДВ за 1 кв.м.; Експлуатаційні витрати: 3 дол. з ПДВ за 1 кв.м. Комунальні витрати: по факту Наявні паркомісця - 15 11000дол
Завантажити .pdf

Посередник

Юрій

Оновлено: 12 Листопада 2025
Код об'єкта: W-7416918
CAPTCHA Фото Капча
Введіть символи, зображені на малюнку.

Поскаржитися на оголошення

W-7416918 |

Вкажіть причину скарги

Максимальна кількість символів 500
CAPTCHA Фото Капча
Введіть символи, зображені на малюнку.

Схожі оголошення