Реєстрація /

Оренда Офіс вул. Межигірська в Києві / W-7413341

Комерційна нерухомість
Ціна:
20 300 грн.
/місяць
$
489 $ (1$ = 41.55 грн.)
416 € (1€ = 48.8 грн.)
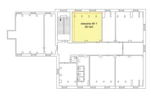
Поділ,вул Межигірська 87А, офіс 4 поверх,не житловий фонд,1 кабінет 38.1м гарний стан,кондіционер,метро Т Шевченко 3хв.20300грн у вартість входять усі комунальні послуги.(Комісія 50%)
Завантажити .pdf

Посередник

Олександр

Оновлено: 6 Жовтня 2025
Код об'єкта: W-7413341
CAPTCHA Фото Капча
Введіть символи, зображені на малюнку.

Поскаржитися на оголошення

W-7413341 |

Вкажіть причину скарги

Максимальна кількість символів 500
CAPTCHA Фото Капча
Введіть символи, зображені на малюнку.

Схожі оголошення