Реєстрація /

Оренда Офіс вул. Межигірська в Києві / W-7413340

Комерційна нерухомість
Ціна:
6 000 грн.
/місяць
$
144 $ (1$ = 41.55 грн.)
123 € (1€ = 48.8 грн.)
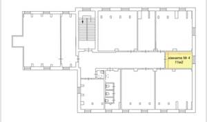
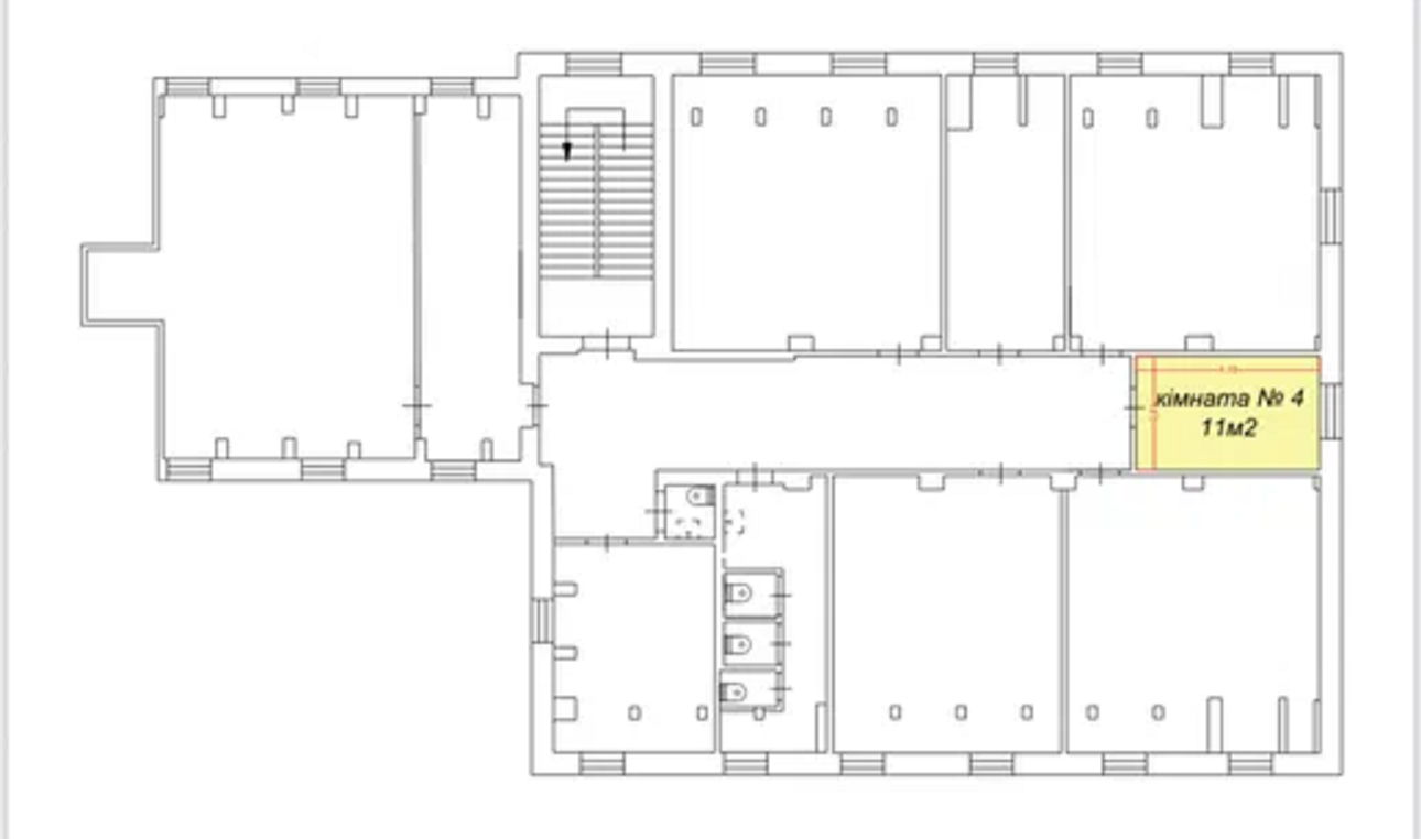
Поділ,вул Межигірська 87А, офіс 4 поверх,не житловий фонд,1 кабінет 11м гарний стан,кондіционер,метро Т Шевченко 3хв.6000грн у вартість входять усі комунальні послуги.(Комісія 50%)
Завантажити .pdf

Посередник

Олександр

Оновлено: 6 Жовтня 2025
Код об'єкта: W-7413340
CAPTCHA Фото Капча
Введіть символи, зображені на малюнку.

Поскаржитися на оголошення

W-7413340 |

Вкажіть причину скарги

Максимальна кількість символів 500
CAPTCHA Фото Капча
Введіть символи, зображені на малюнку.

Схожі оголошення