Реєстрація /

Оренда Офіс вул. Хорива 1 в Києві / W-7412374

Комерційна нерухомість
Ціна:
153 000 грн.
/місяць
$
3 630 $ (1$ = 42.2 грн.)
3 110 € (1€ = 49.2 грн.)
Профіль:
Площа:
332 м²
Ціна за м²:
460 грн.
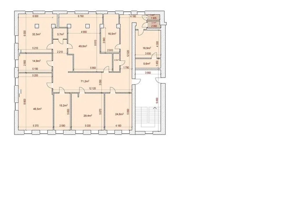
Пропонується в оренду офіс площею 332,1 кв.м. в торгово-офісному центрі в самому центрі Подолу на вулиці Хорива, 1А. Офіс розташований на 3-му поверсі 3-поверхового будинку. Один офіс на поверх. В офісі зроблений ремонт, є кондиціонери, вбудована кухня, два санвузли, рецепція. Офіс частково мебльований і є можливість обладнати офіс на 20 робочих місць. Дуже красивий, світлий, фасад офісу. Будівля розташована навпроти Житнього ринку, в 2 хвилинах від станції метро «Контрактова площа». Дуже розвинена інфраструктура, презентабельна вхідна група, в торгово-офісному центрі є нічна охорона, відеоспостереження, а також відділення Приват Банку, ресторан, салон краси. 153000грн+к.п. 50%комісія
Завантажити .pdf

Посередник

Ярослав

Оновлено: 14 Листопада 2025
Код об'єкта: W-7412374
CAPTCHA Фото Капча
Введіть символи, зображені на малюнку.

Поскаржитися на оголошення

W-7412374 |

Вкажіть причину скарги

Максимальна кількість символів 500
CAPTCHA Фото Капча
Введіть символи, зображені на малюнку.

Схожі оголошення