Зарегистрироваться /

Аренда Ресторана Контрактовая пл. 2 в Киеве / W-7446857

Коммерческая недвижимость
Цена:
709 000* грн.
/месяц
$
16 000 $ (1$ = 44.3 грн.)
13 500 € (1€ = 52.5 грн.)
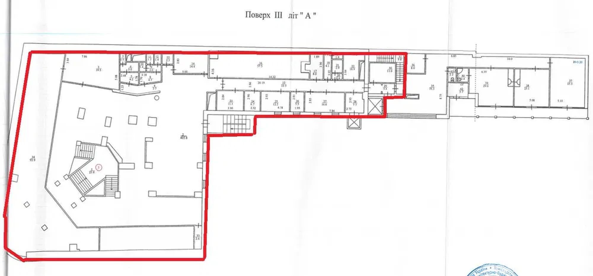
Аренда помещения под ресторан, бар Помещение находится в культурном центре Киева, на Подоле. Улица Сагайдачного. Любимое место прогулок киевлян и туристов. Неподалеку находятся станции метро Почтовая и Контрактовая, а также множество офисов и Киево-Могилянская академия. Конфигурация: 3 этаж 790 м2 - арендная ставка 20$ Мощность 100 кВт
Скачать .pdf

Посредник

Юрій

Обновлено: 18 Апреля 2026
Код объекта: W-7446857
CAPTCHA CAPTCHA на основе изображений
Введите символы, изображенные на рисунке.

Пожаловаться на объявление

W-7446857 |

Укажите причину жалобы

Максимальное количество символов 500
CAPTCHA CAPTCHA на основе изображений
Введите символы, изображенные на рисунке.

Схожі оголошення