Зарегистрироваться /

Аренда Офиса ул. Нижний Вал в Киеве / W-7423926

Коммерческая недвижимость
Цена:
109 000* грн.
/месяц
$
2 500 $ (1$ = 43.45 грн.)
2 120 € (1€ = 51.35 грн.)
Кол-во комнат:
3
Профиль:
Площадь:
160 м²
Этаж:
2
Цена за м²:
678 грн.
Ремонт (состояние):
с косметическим ремонтом
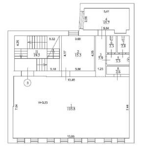
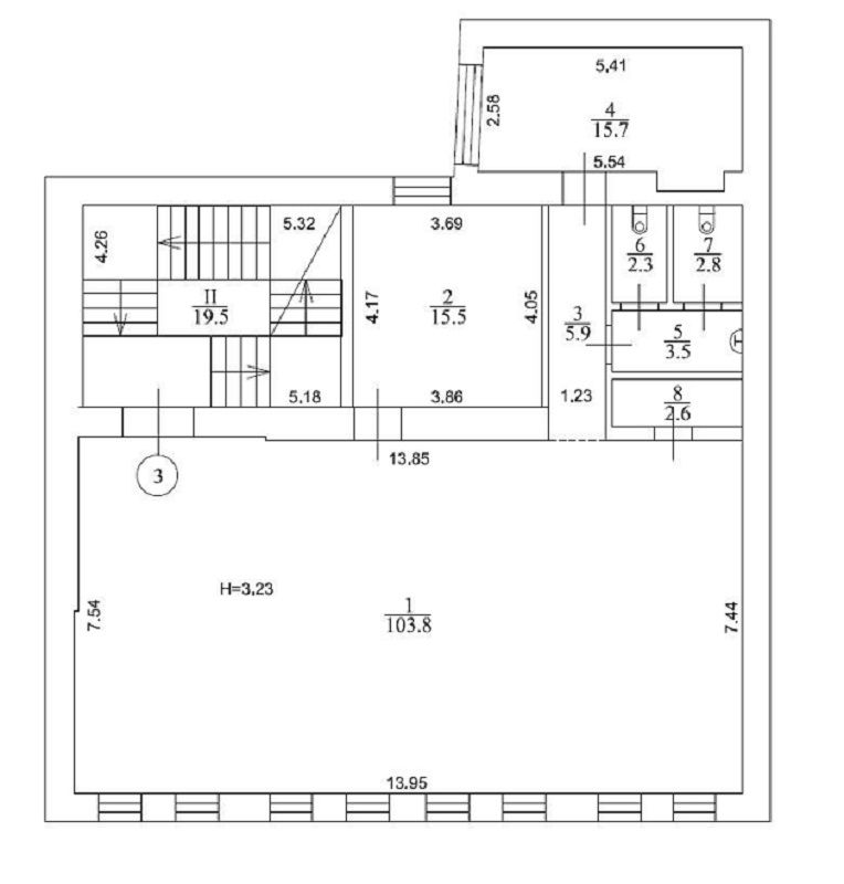
Оренда офісу 160 м2 у центрі Подолу по вулиці Нижній вал. Нежитловий фонд, розташований на 2 поверсі адміністративної будівлі, планування: Open space, кабінет, хол, кухня, 2 с/в. Оснащено кондиціюванням, вентиляцією, охоронною та пожежною сигналізаціями, СКД, електрогенератор. Додатково сплачуються комунальні платежі. Офіс здається без меблів. Наявність автономного живлення, Старлінк. Код оголошення RC-189-402.
Скачать .pdf

Посредник

Alan

Обновлено: 19 Февраля 2026
Код объекта: W-7423926
CAPTCHA CAPTCHA на основе изображений
Введите символы, изображенные на рисунке.

Пожаловаться на объявление

W-7423926 |

Укажите причину жалобы

Максимальное количество символов 500
CAPTCHA CAPTCHA на основе изображений
Введите символы, изображенные на рисунке.

Схожі оголошення