Зарегистрироваться /

Аренда Офиса Спортивная пл. 3 в Киеве / W-7411889

Коммерческая недвижимость
Цена:
224 000* грн.
/месяц
$
5 300 $ (1$ = 42.28 грн.)
4 490 € (1€ = 49.95 грн.)
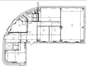
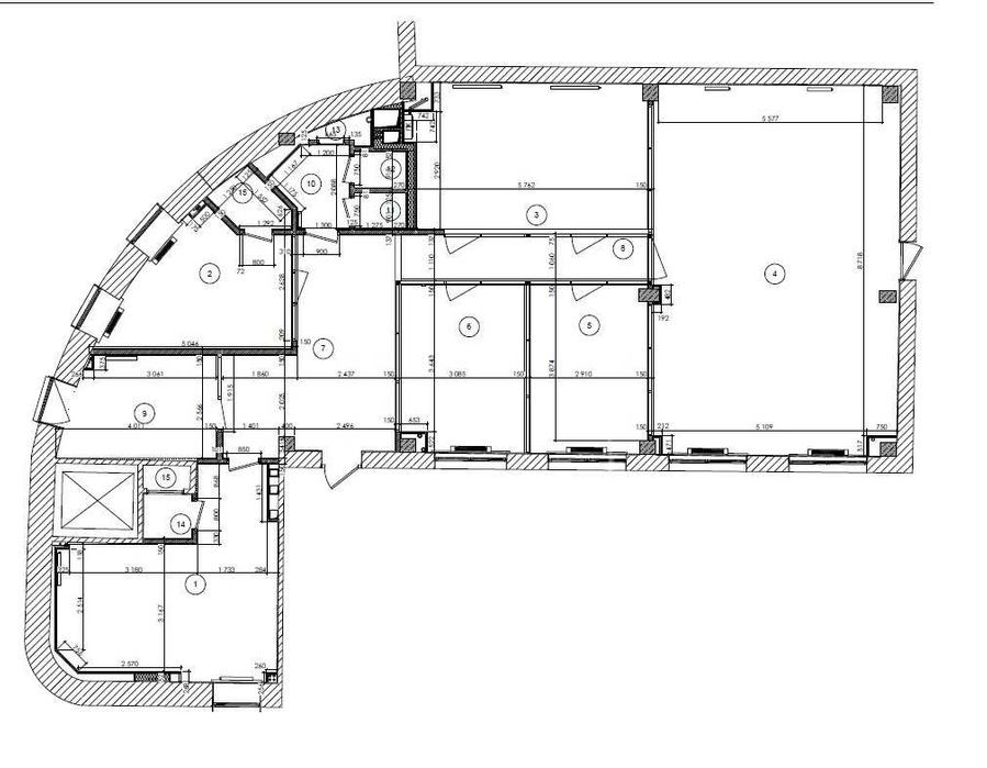
Пропонуємо в оренду офіс площею 240 м2, бізнес центр класу А Встановлено нові енергозберігаючі вікна, автономну систему вентиляції VTS та підігрів води. Центр Києва, за адресою площа Спортивна 3, 2 поверх. Поруч метро Палац Спорту та ТК Гулівер. 6 робочих кабінетів, серверна, 2 санвузли, кухня з виходом на власну терасу. Висота стелі 3м. Офіс комбінованого типу, open space – 60 кв.м. та 5 окремих кабінетів (14 кв.м., 14 кв.м., 15 кв.м., 24 кв.м., 24 кв.м.) У вартість оренди входить 2 паркомісця на паркінгу БЦ. Виконано мережеве розведення, розведення під сигналізацію та відеоспостереження. Пожежна сигналізація з виведенням на пульт охорони. Територія бізнес центру, що охороняється. Задається без меблів, укомплектована тільки кухня. Надається готовий дизайн-проект офісу. Можливість реєстрації юридичної адреси. 5300дол
Скачать .pdf

Посредник

Юрій

Обновлено: 24 Декабря 2025
Код объекта: W-7411889
CAPTCHA CAPTCHA на основе изображений
Введите символы, изображенные на рисунке.

Пожаловаться на объявление

W-7411889 |

Укажите причину жалобы

Максимальное количество символов 500
CAPTCHA CAPTCHA на основе изображений
Введите символы, изображенные на рисунке.

Схожі оголошення