Зарегистрироваться /

Продажа Офиса ул. Владимирская 86а в Киеве / W-7448660

Коммерческая недвижимость
Цена:
17 390 000* грн.
$
392 000 $ (1$ = 44.35 грн.)
336 000 € (1€ = 51.7 грн.)
Жилой комплекс:
Профиль:
Площадь:
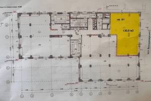
130.8 м²
Тип (серия) дома:
Отельного типа
Этаж/Этажность:
3/17
Цена за м²:
133 000 грн.
Материал стен:
Кирпич
Парковка:
да
Об’єкт знаходиться на 3 поверсі та має вид на фасадну частину вулиці, що забезпечує хорошу візуальну присутність та привабливість для бізнесу. Основні характеристики - Висота стелі 4 метри - площа — 130,8 м² - 3 поверх - вільне планування (open space) - стан — від забудовника (shell&core) - панорамні вікна з видом на вул. Володимирську Приміщення ідеально підходить для реалізації будь-якого бізнес-проєкту Про комплекс Resident Concept House — клубний будинок бізнес-класу від девелопера SAGA Development, розташований у історичному та діловому центрі столиці. Переваги комплексу: - сучасна архітектура та преміальне середовище - обмежена кількість резидентів - підземний паркінг - сучасні інженерні системи - комерційні площі у складі комплексу Локація - вул. Володимирська — центр Києва - піший доступ до метро Олімпійська
Скачать .pdf

Посредник

Павло

Обновлено: 28 Апреля 2026
Код объекта: W-7448660
CAPTCHA CAPTCHA на основе изображений
Введите символы, изображенные на рисунке.

Пожаловаться на объявление

W-7448660 |

Укажите причину жалобы

Максимальное количество символов 500
CAPTCHA CAPTCHA на основе изображений
Введите символы, изображенные на рисунке.

Схожі оголошення

  • Продажа Офиса ул. Саксаганского 28 в Киеве / W-7368382 (Офис, ул. Саксаганского) 17 740 000* грн.

    Продажа Офиса ул. Саксаганского 28 в Киеве / W-7368382

  • Продажа Нежилого помещения ул. Антоновича Владимира (Горького) в Киеве / C-110900 (Нежилое помещение, ул. Антоновича Владимира (Горького)) 17 520 000* грн.

    Продажа Нежилого помещения ул. Антоновича Владимира (Горького) в Киеве / C-110900

  • Продажа Нежилого помещения ул. Набережно-Корчеватская в Киеве / I-38948 (Нежилое помещение, ул. Набережно-Корчеватская) 17 610 000* грн.

    Продажа Нежилого помещения ул. Набережно-Корчеватская в Киеве / I-38948

  • Продажа Отдельно стоящее здание ул. Жилянская 26а в Киеве / W-7257246 (Отдельно стоящее здание, ул. Жилянская) 15 970 000* грн.

    Продажа Отдельно стоящее здание ул. Жилянская 26а в Киеве / W-7257246

  • Продажа Нежилого помещения ул. Паньковская в Киеве / J-33434 (Нежилое помещение, ул. Паньковская) 17 520 000* грн.

    Продажа Нежилого помещения ул. Паньковская в Киеве / J-33434

  • Продажа Отдельно стоящее здание ул. Лауреатская 8 в Киеве / W-7435701 (Отдельно стоящее здание, ул. Лауреатская) 19 070 000* грн.

    Продажа Отдельно стоящее здание ул. Лауреатская 8 в Киеве / W-7435701

  • Продажа Нежилого помещения ул. Здановской Юлии (Ломоносова) в Киеве / Q-14260 (Нежилое помещение, ул. Здановской Юлии (Ломоносова)) 18 320 000* грн.

    Продажа Нежилого помещения ул. Здановской Юлии (Ломоносова) в Киеве / Q-14260

  • Продажа Отдельно стоящее здание ул. Жилянская в Киеве / A-114866 (Отдельно стоящее здание, ул. Жилянская) 15 970 000* грн.

    Продажа Отдельно стоящее здание ул. Жилянская в Киеве / A-114866

  • Продажа Офиса Лобановского просп. (Краснозвездный просп.) в Киеве / Q-27677 (Офис, Лобановского просп. (Краснозвездный просп.)) 16 600 000 грн.

    Продажа Офиса Лобановского просп. (Краснозвездный просп.) в Киеве / Q-27677

  • Продажа Нежилого помещения ул. Саксаганского в Киеве / D-40581 (Нежилое помещение, ул. Саксаганского) 18 850 000* грн.

    Продажа Нежилого помещения ул. Саксаганского в Киеве / D-40581

  • Продажа ул. Немецкая (Тельмана) в Киеве / P-34365 (ул. Немецкая (Тельмана)) 16 850 000* грн.

    Продажа ул. Немецкая (Тельмана) в Киеве / P-34365

  • Продажа Офиса ул. Никольско-Ботаническая в Киеве / R-57292 (Офис, ул. Никольско-Ботаническая) 17 790 000* грн.

    Продажа Офиса ул. Никольско-Ботаническая в Киеве / R-57292