Зарегистрироваться /

Аренда Офиса ул. Кирилловская (Фрунзе) в Киеве / W-7442709

Коммерческая недвижимость
Цена:
688 000* грн.
/месяц
$
15 700 $ (1$ = 43.85 грн.)
13 300 € (1€ = 51.85 грн.)
Профиль:
Площадь:
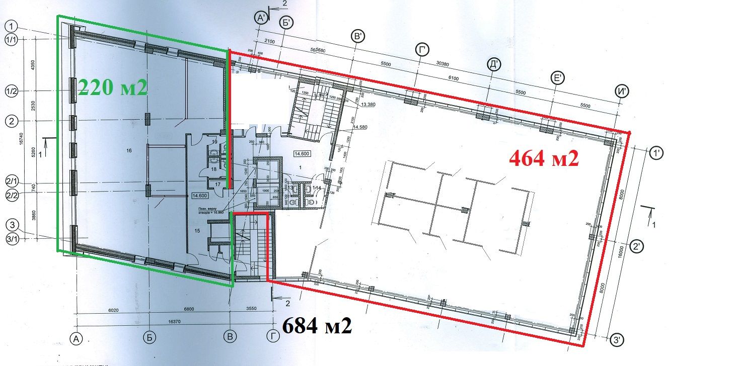
684 м²
Цена за м²:
1 010 грн.
Оренда офисного приміщення в Бізнес-центрі на Подолі, вул. Кирилівська. П'ятий окремий поверх. Два блоки : 464 м2 та 220 м2 ( разом 684 м2). Опенспейс і кабінети. Потужний промисловий генератор, бомбосховище. Цілодобова охорона бізнес-центру. Охоронна, пожежна сигналізація. Системи контролю доступу, відео-спостереження, паркомісце. Сучасний ремонт, системи кондиціювання та приточно-витяжної вентиляції. Метро Контрактова площа - 10 хвилин пішки. Вартість - 23 дол/м2 з ПДВ плюс комунальні платежі. Без комісії.
Скачать .pdf

Посредник

Олександр

Обновлено: 16 Апреля 2026
Код объекта: W-7442709
CAPTCHA CAPTCHA на основе изображений
Введите символы, изображенные на рисунке.

Пожаловаться на объявление

W-7442709 |

Укажите причину жалобы

Максимальное количество символов 500
CAPTCHA CAPTCHA на основе изображений
Введите символы, изображенные на рисунке.

Схожі оголошення