Зарегистрироваться /

Аренда Офиса ул. Кирилловская (Фрунзе) в Киеве / W-7442591

Коммерческая недвижимость
Цена:
686 000* грн.
/месяц
$
15 700 $ (1$ = 43.7 грн.)
13 400 € (1€ = 51.2 грн.)
Профиль:
Площадь:
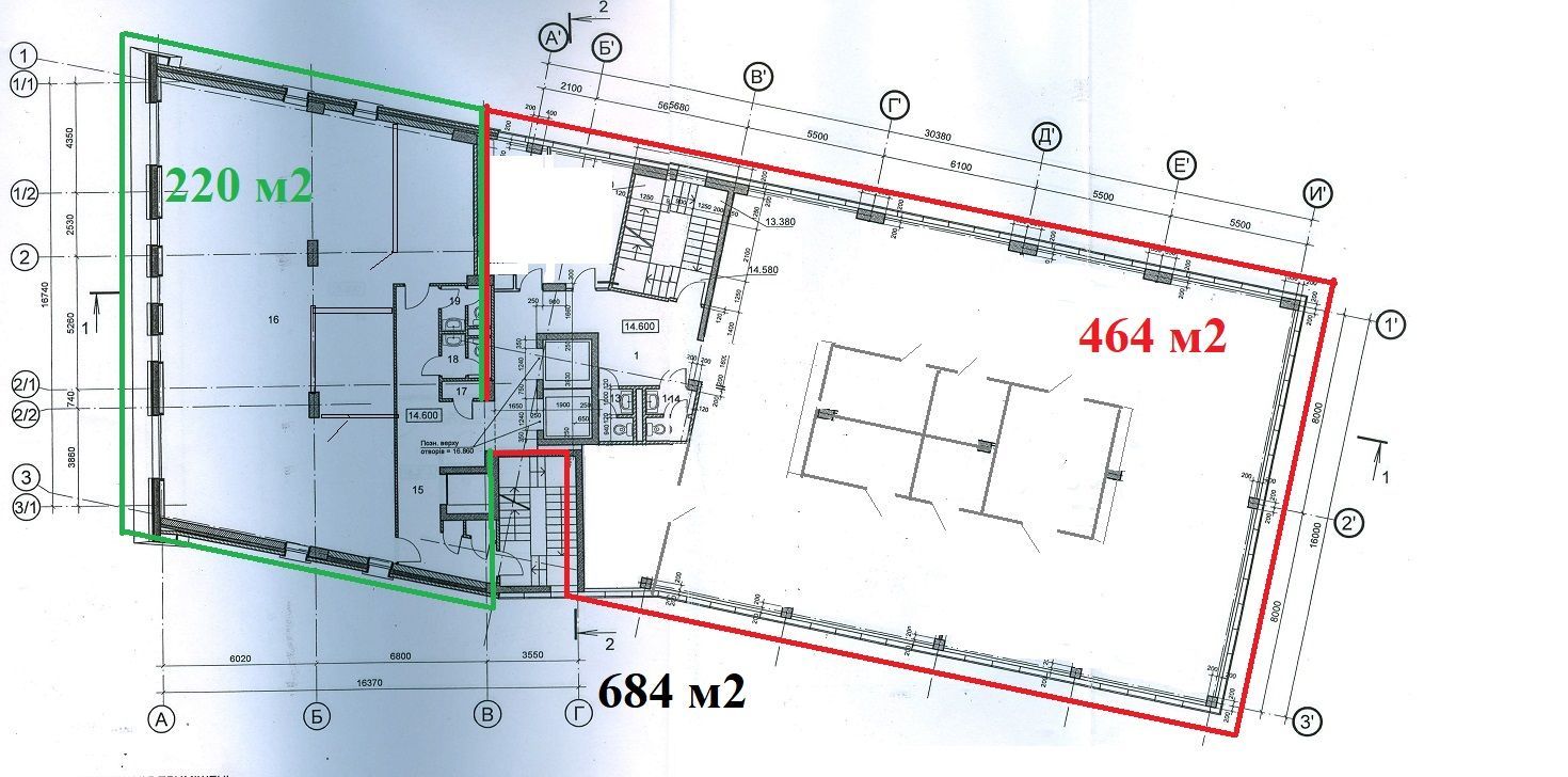
684 м²
Цена за м²:
1 000 грн.
Без комісії. Оренда офісного приміщення 684 м.кв., вул. Кирилівська, Подільський район, Бізнес-центр, клас В+, 5/8 поверх, ліфт, нежитловий фонд, цілодобова охорона, пропускна система, доступ 24/7. В приміщенні виконано сучасний ремонт, вільне планування плюс кабінетна система, вентиляція та кондиціювання, клімат-контроль, СКД, відеоспостереження, пожежна сигналізація, інтернет. В будівлі: Підземний та наземний паркінг, встановлений дизель генератор, укриття. Орендна ставка 23 дол./м.кв. з ПДВ (в гривні по курсу НБУ), експлуатація 1.5 дол./м.кв. з ПДВ + комунальні платежі. Метро "Контрактова площа", "Т.Шевченко" 7 хвилин. Можлива оренда 464 кв.м., і 220 кв.м.
Скачать .pdf

Посредник

Светлана

Обновлено: 13 Апреля 2026
Код объекта: W-7442591
CAPTCHA CAPTCHA на основе изображений
Введите символы, изображенные на рисунке.

Пожаловаться на объявление

W-7442591 |

Укажите причину жалобы

Максимальное количество символов 500
CAPTCHA CAPTCHA на основе изображений
Введите символы, изображенные на рисунке.

Схожі оголошення