Зарегистрироваться /

Аренда Офиса ул. Верхний Вал в Киеве / W-7441306

Коммерческая недвижимость
Цена:
299 000* грн.
/месяц
$
6 840 $ (1$ = 43.75 грн.)
5 850 € (1€ = 51.15 грн.)
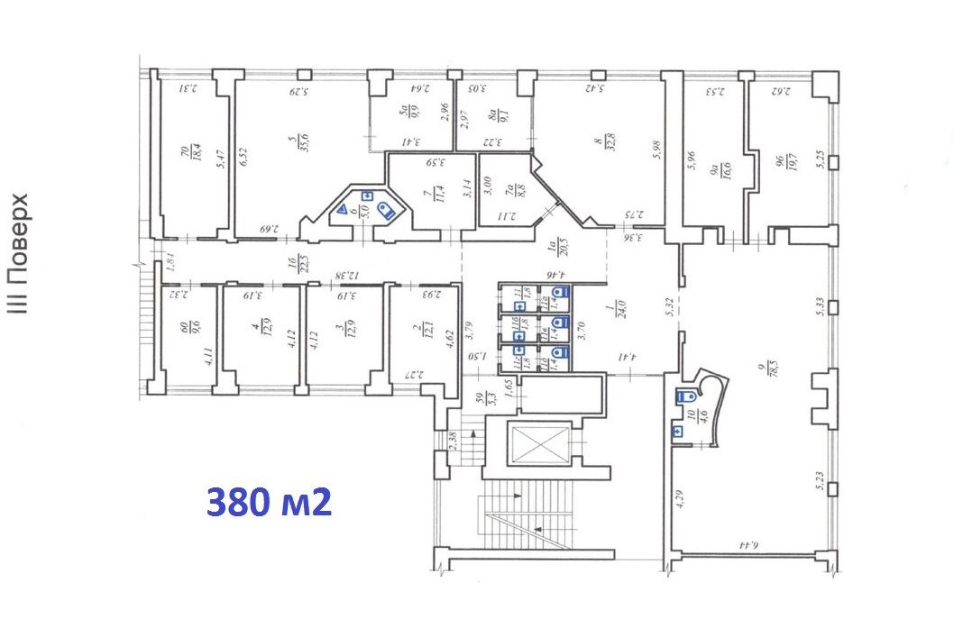
Оренда офісу 380 кв.м., в БЦ на Подолі, вулиця Верхній Вал 72. Метро "Контрактова площа" 10 хвилин. 3 поверх, кабінетна система, потужний промисловий генератор. Бомбосховище. Цілодобова охорона, пожежна сигналізація, відео-спостереження, сучасний ремонт, кондиціонери. Наземне і підземне паркування. Ціна 14 дол. кв.м., плюс ПДВ, плюс експлуатація 4 дол. кв.м.. Парковка 100 дол. кв.м., плюс ПДВ.
Скачать .pdf

Посредник

Светлана

Обновлено: 8 Апреля 2026
Код объекта: W-7441306
CAPTCHA CAPTCHA на основе изображений
Введите символы, изображенные на рисунке.

Пожаловаться на объявление

W-7441306 |

Укажите причину жалобы

Максимальное количество символов 500
CAPTCHA CAPTCHA на основе изображений
Введите символы, изображенные на рисунке.

Схожі оголошення