Зарегистрироваться /

Аренда Офиса ул. Верхний Вал 72 в Киеве / W-7440690

Коммерческая недвижимость
Цена:
441 000* грн.
/месяц
$
10 000 $ (1$ = 44.05 грн.)
8 660 € (1€ = 50.85 грн.)
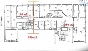
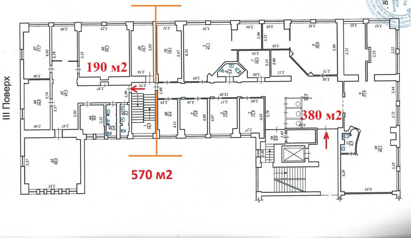
Оренда офисного приміщення в Бізнес-центрі Подолі, вул. Верхній вал 72. Третій поверх, окремий блок. Площа - 380 м2 та 190 м2 (можливо разом 570 м2). Потужний промисловий генератор. бомбосховище. Цілодобова охорона бізнес-центру. Охоронна, пожежна сигналізація. Системи контролю доступу, відео-спостереження, парковка для співробітників. Сучасний ремонт, системи кондиціювання та приточно-витяжної вентиляції. Метро Контрактова площа - 10 хвилин пішки. Вартість - 18 дол/м2 плюс комунальні платежі. Без комісії.
Скачать .pdf

Посредник

Олександр

Обновлено: 3 Апреля 2026
Код объекта: W-7440690
CAPTCHA CAPTCHA на основе изображений
Введите символы, изображенные на рисунке.

Пожаловаться на объявление

W-7440690 |

Укажите причину жалобы

Максимальное количество символов 500
CAPTCHA CAPTCHA на основе изображений
Введите символы, изображенные на рисунке.

Схожі оголошення