Зарегистрироваться /

Продажа квартиры ул. Назария Яремчука 18 в новостройке в Петровском (Киево-Святошинский) / W-7439341

1-комнатная квартира
Цена:
1 275 000* грн.
$
28 900 $ (1$ = 44.12 грн.)
25 000 € (1€ = 51.05 грн.)
Кол-во комнат:
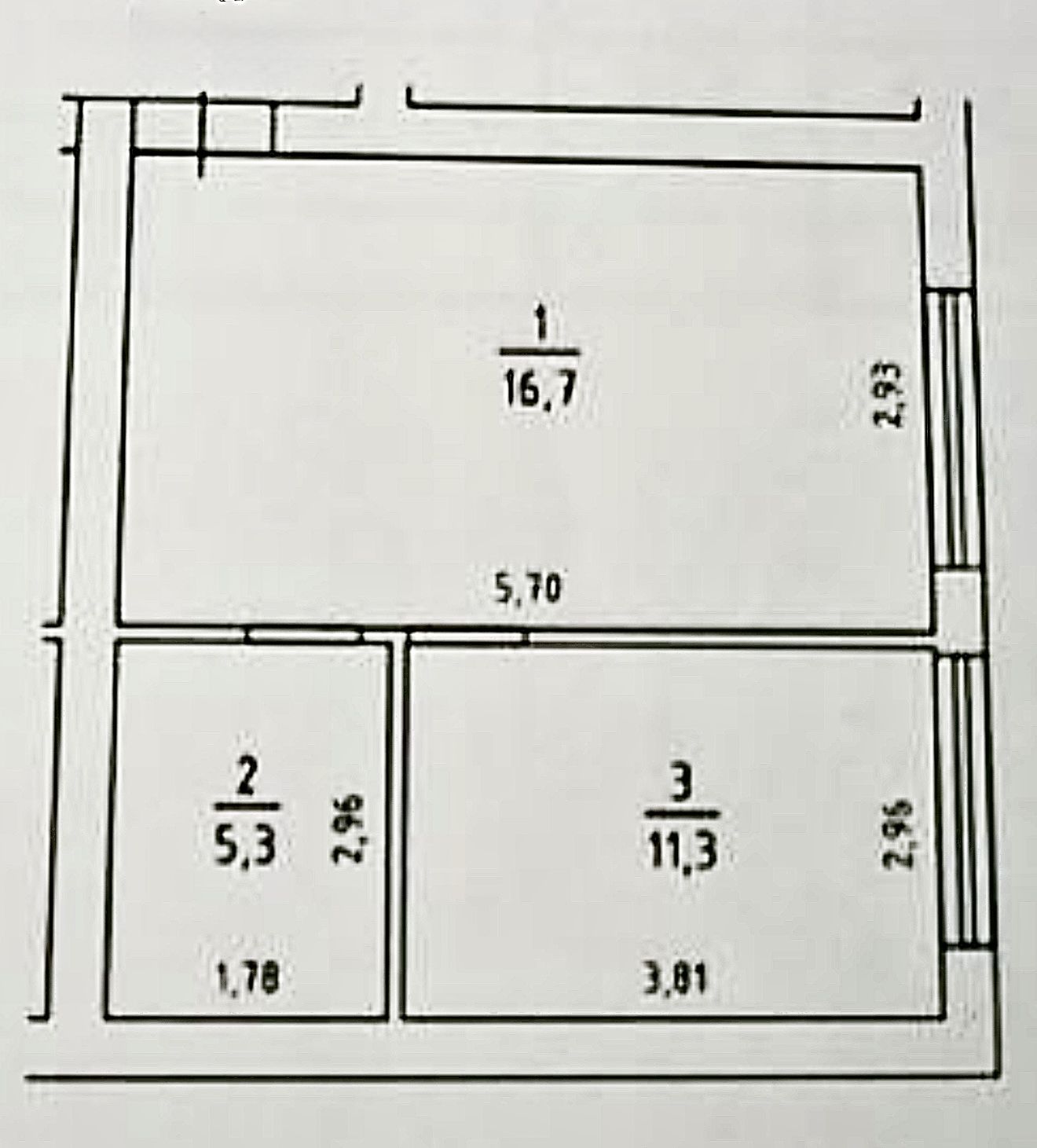
Площадь (общая/жилая/кухни):
33.3/11.3/16.7
Этаж/Этажность:
2/4
Тип (серия) дома:
Клубный дом
Материал стен:
Керамоблок
Материал пола:
Стяжка
Материал перекрытий:
Железобетон
Количество, тип санузлов:
1, Совместный
Парковка:
да
Продам 1 кімнатну квартиру у Святопетрівському по вул.Назарія Яремчука 18,КБ «Моя Баварія». Будинок введено в експлуатацію.Загальна пл.33.3м2,житлова 11.3м2,кухня 16.7м2 Поверх 2 із 4,висота стелі 2.6м Керамічні блоки,звукоізоляція між стінами.Міжкімнатні перегородки з цегли з двома панорамними вікнами.У квартирі зробили всю електропроводку,заштукатурені стіни на підлозі стяжка,лічильники води,газу,2-контурний газовий котел,електроенергія,газ.Під'їзд у стилі лофт.Центральна каналізація,своя свердловина.Територія обгороджена.Вхід у двір та у під'їзд із кодовим замком. Документи–свідоцтво про право власності більше 3-х років Ніхто не прописаний Не кутова,дуже тепла та затишна квартира з відмінним плануванням. Розвинена інфраструктура в пішій доступності знаходяться:АТБ,зупинка транспорту,дитсадок,школа,ТРЦ,кафе. Розташування від Києва 8 км До метро Академмістечко чи Житомирська–20хв їзди Комісія 5% ДЕРЖПРОГРАМИ-ТАК! Величезне прохання до ріелторів та агентств не турбувати,не співпрацюю!
Скачать .pdf

Посредник

Андрей

Обновлено: 25 Марта 2026
Код объекта: W-7439341
CAPTCHA CAPTCHA на основе изображений
Введите символы, изображенные на рисунке.

Пожаловаться на объявление

W-7439341 |

Укажите причину жалобы

Максимальное количество символов 500
CAPTCHA CAPTCHA на основе изображений
Введите символы, изображенные на рисунке.

Схожі оголошення

  • Продажа квартиры 3 в Петровском (Киево-Святошинский) / W-7443206 (Святопетровское (Петровское)) 1 235 000* грн.

    Продажа квартиры 3 в Петровском (Киево-Святошинский) / W-7443206