Зарегистрироваться /

Аренда Офиса ул. Верхний Вал 4 в Киеве / W-7437484

Коммерческая недвижимость
Цена:
32 000 грн.
/месяц
$
736 $ (1$ = 43.45 грн.)
624 € (1€ = 51.4 грн.)
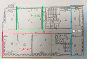
Оренда офісного приміщення у бізнес-центрі на Верхньому валу. Корисна площа – 58 м2. (70 м2 – залікова). П'ятий поверх. Охорона, всі комунікації, метро Контрактова площа – 5 хвилин. Нова презентабельна будівля. Дизель-генератор. Вартість – 450 гр/м2 з ПДВ. Додатково оплачується лише електрика та опалення. Без комісії.
Скачать .pdf

Посредник

Олександр

Обновлено: 25 Февраля 2026
Код объекта: W-7437484
CAPTCHA CAPTCHA на основе изображений
Введите символы, изображенные на рисунке.

Пожаловаться на объявление

W-7437484 |

Укажите причину жалобы

Максимальное количество символов 500
CAPTCHA CAPTCHA на основе изображений
Введите символы, изображенные на рисунке.

Схожі оголошення