Зарегистрироваться /

Аренда Офиса ул. Коновальца Евгения (Щорса) 36 в Киеве / W-7436699

Коммерческая недвижимость
Цена:
294 000* грн.
/месяц
$
6 780 $ (1$ = 43.45 грн.)
5 720 € (1€ = 51.5 грн.)
Профиль:
Площадь:
308 м²
Этаж:
5
Цена за м²:
955 грн.
Ремонт (состояние):
с евроремонтом
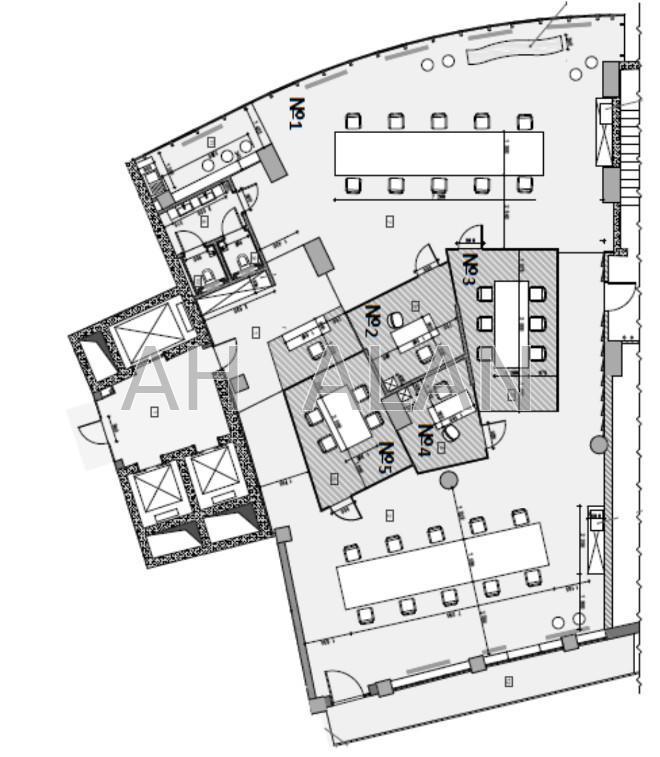
Оренда офісного приміщення на Печерську, вул. Євгена Коновальця, 308 м² з євроремонтом. Поруч із метро Печерська, Київ. Приміщення в бізнес центрі на 5 поверсі . Планування 2 зони опен спейс, 2 кабінета, переговорна кімната , кухня, санвузли . Додатково оплачуються: електрика та опалення, кондиціювання. Є підземний та клієнтський паркінг. Експлуатаційні входять в ціну. Безпека забезпечена охороною, пожежною та охоронною сигналізаціями, відеоспостереженням. Вид з вікон – на вулицю та у двір.
Скачать .pdf

Посредник

ALAN

Обновлено: 19 Февраля 2026
Код объекта: W-7436699
CAPTCHA CAPTCHA на основе изображений
Введите символы, изображенные на рисунке.

Пожаловаться на объявление

W-7436699 |

Укажите причину жалобы

Максимальное количество символов 500
CAPTCHA CAPTCHA на основе изображений
Введите символы, изображенные на рисунке.

Схожі оголошення