Зарегистрироваться /

Аренда Офиса Спортивная пл. 3 в Киеве / W-7445387

Коммерческая недвижимость
Цена:
288 000* грн.
/месяц
$
6 500 $ (1$ = 44.3 грн.)
5 530 € (1€ = 52.05 грн.)
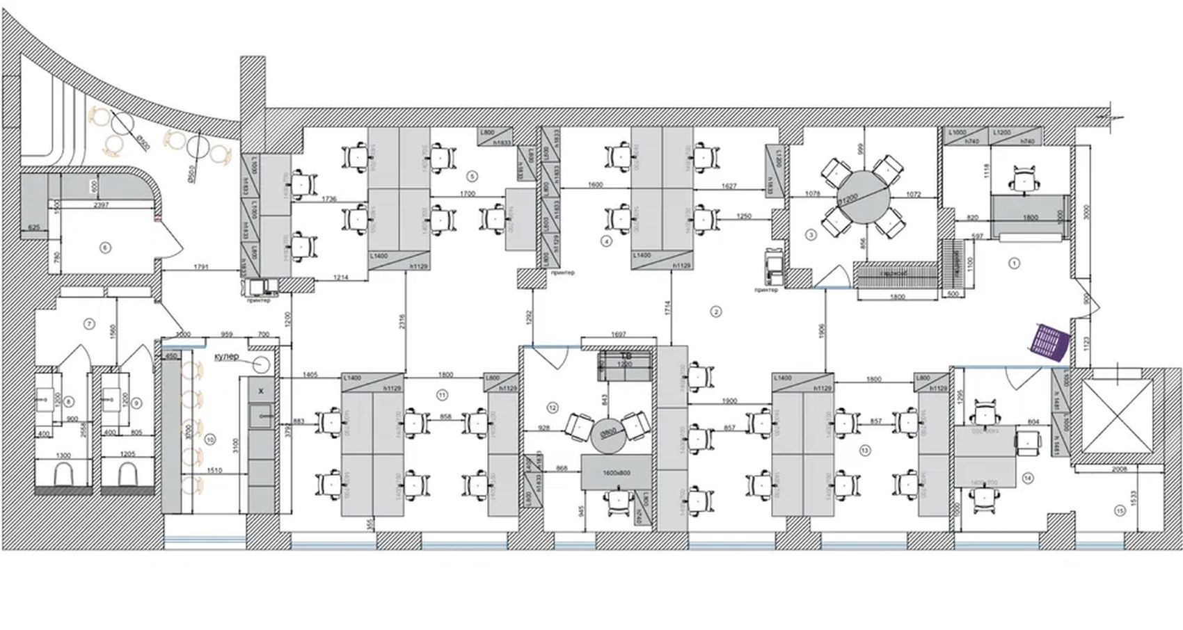
Довгострокова оренда дуже гарного, автономного, зручного та унікального офісу Адреса: м. Київ, Спортивна площа 3 «В» ( метро Палац Спорту ) Комерційні умови: 2-й поверх (офіс 210м2 + МЗК 45,4м2) – один офіс на поверх. 3 паркомісця включені у вартість (2 на закритій території + 1 у підземному паркінгу) Орендна ставка 6500 $/міс Експлуатаційні витрати 21252 грн/міс з ПДВ Комунальні по факту споживання за лічильниками з ПДВ Автономне електроживлення (потужний дизель генератор + 2 окремих вводи) Бомбосховище Також наявний офіс поверхом вище 247м2 ( можна обʼєднати 2й та 3й поверхи - загальна площа 457м2) 2-й поверх (офіс 210м2 + МЗК 45,4м2) – один офіс на поверх. 3 паркомісця включені у вартість (2 на закритій території + 1 у підземному паркінгу) Орендна ставка 6500 $/міс Експлуатаційні витрати 21252 грн/міс з ПДВ Комунальні по факту споживання за лічильниками з ПДВ
Скачать .pdf

Посредник

Юрій

Обновлено: 28 Апреля 2026
Код объекта: W-7445387
CAPTCHA CAPTCHA на основе изображений
Введите символы, изображенные на рисунке.

Пожаловаться на объявление

W-7445387 |

Укажите причину жалобы

Максимальное количество символов 500
CAPTCHA CAPTCHA на основе изображений
Введите символы, изображенные на рисунке.

Схожі оголошення